1
物件掲載企業数:
297
社
|賃貸物件:
3,612
件|売買物件:
3,333
件|今週の登録物件:
276
件
閲覧中のブラウザ(インターネットエクスプローラー)は非推奨ブラウザです。
物件が正しく表示されなかったり、正しく検索されない場合があります。最新のブラウザ(Google Chrome・Edgeなど)にてご利用お願いいたします。
Google Chrome
Microsoft Edge
アパート・マンション・一戸建て
駐車場
貸土地
店舗
事務所
倉庫・工場
新築分譲マンション
中古マンション
新築一戸建て
中古一戸建て
売土地・分譲地
その他(投資物件など)
マンション
一戸建て
土地
ホーム
>
会社情報
>
物件種別選択
> 物件一覧
全エリア
の
新築一戸建て
物件情報
173件
該当しました。
<前のページ
2
3
4
5
6
7
8
9
次のページ>
表示切替:
一覧表示
/
地図表示
並び替え:
指定なし
新着順
価格が安い順
価格が高い順
画像
物件名/所在地/取扱店
詳細
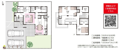
【価格改定】 ☆エアコンプレゼントキャンペーン実施中※1 ☆オープンハウス開催中(予約制) ☆関屋駅徒歩9分、小・中学校徒歩圏内の通勤通学に便利な立地! ☆水まわりを集約した家事動線の良い間取り ☆マイクロバブル給湯器・食洗機・浴室暖房乾燥機・幹太くんを標準装備 ☆ランドリースペース付き ☆南東向きバルコニー ☆駐車並列3台可
【テイラーハウス】新潟市中央区堀割町(B棟)
新潟県新潟市中央区堀割町2-13-5B棟
株式会社ハーツリアルエステート 新潟支店
価格
:
32,980,000
円
土地面積
:177.93㎡ /53.82坪
建物面積
:104.62㎡ /31.64坪
間取り
:4LDK
築年月
:2025年2月
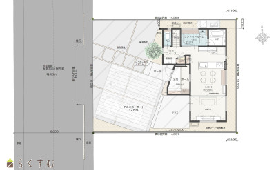
豊田小学校徒歩3分、旭岡中学校徒歩4分、原信花園店徒歩9分!16.7帖の広いLDK!収納が多く、雨の日でも洗濯物が干せるランドリールーム完備!
長岡市 錦 新築デザイン住宅
新潟県長岡市錦1丁目3番25
ダイエープロビス株式会社
価格
:
33,000,000
円
土地面積
:178.18㎡ /53.89坪
建物面積
:84.46㎡ /25.54坪
間取り
:3LDK
築年月
:2024年8月
【仲介料不要】人気の平屋です!年中快適な『全館空調』と大人気の衣類乾燥機『乾太くん』搭載!ワンフロアの生活はいかがですか??
稲保南2丁目 平屋25坪3LDK
新潟県長岡市稲保南2-509-20
株式会社ヒノキヤグループ パパまるハウスカンパニー長岡支店
価格
:
33,400,000
円
土地面積
:204.11㎡ /61.74坪
建物面積
:84.46㎡ /25.54坪
間取り
:3LDK
築年月
:2025年11月
■駐車並列3台可 ■市役所通り至近で交通アクセス◎ ■全居室収納有、ゆとりある室内空間
(新築住宅)長岡市三和 第2 2号棟
新潟県長岡市三和3丁目3-4付近
新潟土地建物販売センター 株式会社
価格
:
33,800,000
円
土地面積
:225.01㎡ /68.06坪
建物面積
:105.3㎡ /31.85坪
間取り
:4LDK
築年月
:2026年1月
【大島小がすぐ目の前の立地に3LDK平屋住宅】■前面道路に消雪パイプ完備■駐車2台可■熱交換換気扇&二重断熱で快適な住まい■エアコン2台完備■2箇所に洗面台設置
( 新築住宅)長岡市大島新町 平屋住宅
新潟県長岡市大島新町3丁目甲1189-1付近
新潟土地建物販売センター 株式会社
価格
:
33,800,000
円
土地面積
:175.2㎡ /52.99坪
建物面積
:82.81㎡ /25.05坪
間取り
:3LDK
築年月
:2025年12月
\三和自社分譲地内新築住宅につき仲介手数料半額、特別キャンペーン実施中!/住宅性能表示制度の5分野7項目の最高等級取得!LDK16帖でゆったりとした空間★TVモニターホン、人感センサー玄関灯、防犯カメラがありセキュリティー面も安心!対面式キッチンなので料理しながらご家族との会話も楽しめます♪
長岡市三和3丁目新築住宅1号棟
新潟県長岡市三和3丁目2-16
株式会社 エヌ・アール・ケー総合企画
価格
:
33,800,000
円
土地面積
:224.82㎡ /68坪
建物面積
:108.54㎡ /32.83坪
間取り
:4LDK
築年月
:2025年12月
\三和自社分譲地内新築住宅につき仲介手数料半額、特別キャンペーン実施中!/住宅性能表示制度の5分野7項目の最高等級取得!LDK18帖でゆったりとした空間★長岡シビックコアショッピングセンターまで車で4分♪お買い物に便利です◎制震装置「SAFE365」を採用し、万が一の地震の揺れも軽減◎
長岡市三和3丁目新築住宅2号棟
新潟県長岡市三和3丁目2-19
株式会社 エヌ・アール・ケー総合企画
価格
:
33,800,000
円
土地面積
:225.01㎡ /68.06坪
建物面積
:105.3㎡ /31.85坪
間取り
:4LDK
築年月
:2025年12月
■駐車並列3台可 ■市役所通り至近で交通アクセス◎ ■全居室収納有、ゆとりある室内空間
(新築住宅)長岡市三和 第2 1号棟
新潟県長岡市三和3丁目3-4付近
新潟土地建物販売センター 株式会社
価格
:
33,800,000
円
土地面積
:224.82㎡ /68坪
建物面積
:108.54㎡ /32.83坪
間取り
:4LDK
築年月
:2026年1月
妙高市高柳・平屋建売1号棟
妙高市高柳・平屋建売1号棟
新潟県妙高市高柳1丁目26-2
株式会社山崎建設
価格
:
34,200,000
円
土地面積
:264.09㎡ /79.88坪
建物面積
:81.9㎡ /24.77坪
間取り
:2LDK
築年月
:2025年8月
キッチンぐるぐる回遊動線で家事楽間取り!1Fにランドリールーム付きでお洗濯がここで完結!3帖のウォークインクロークで家族みんなの収納バッチリ!
大島新町 新築デザイン住宅
新潟県長岡市大島新町1丁目2045番
ダイエープロビス株式会社
価格
:
34,500,000
円
土地面積
:165.43㎡ /50.04坪
建物面積
:91.08㎡ /27.55坪
間取り
:3LDK
築年月
:2025年10月
妙高市高柳・平屋建売2号棟
妙高市高柳・平屋建売2号棟
新潟県妙高市高柳1丁目26-5
株式会社山崎建設
価格
:
34,600,000
円
土地面積
:254.98㎡ /77.13坪
建物面積
:87.77㎡ /26.55坪
間取り
:2LDK
築年月
:2025年9月
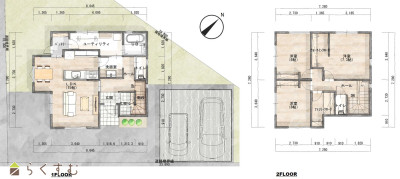
30.7坪に「欲しい」がつまった新築住宅
川崎 新築住宅
新潟県長岡市川崎3丁目2191-2
株式会社 ハーティーホーム
価格
:
34,600,000
円
土地面積
:236.63㎡ /71.58坪
建物面積
:101.7㎡ /30.76坪
間取り
:3LDK
築年月
:2025年7月
\三和自社分譲地内新築住宅につき仲介手数料半額、特別キャンペーン実施中!/住宅性能表示制度の5分野7項目の最高等級取得!LDK16帖でゆったりとした空間★広々としたルーフバルコニー付でお洗濯も安心♪納戸もあり収納スペースも充実◎
長岡市三和町新築住宅1号棟
新潟県長岡市三和町字大坪109-6
株式会社 エヌ・アール・ケー総合企画
価格
:
34,800,000
円
土地面積
:295.39㎡ /89.35坪
建物面積
:108.54㎡ /32.83坪
間取り
:4LDK
築年月
:2025年12月
■前面6m公道 ■複合商業施設まで車約4分 ■駐車並列3台可 ■全居室収納有、ゆとりある室内空間
(新築住宅)長岡市三和町 第1 1号棟
新潟県長岡市三和1丁目7ー23付近
新潟土地建物販売センター 株式会社
価格
:
34,800,000
円
土地面積
:295.39㎡ /89.35坪
建物面積
:108.54㎡ /32.83坪
間取り
:4LDK
築年月
:2025年12月
価格改定しました。☆内見でQUOカードプレゼント☆広々敷地95.25坪、2階建て住宅45.39坪。3LDK、インナーガレージ付き住宅
長岡市陽光台モデルハウス(家具家電付き)
新潟県長岡市陽光台4丁目1379番157
株式会社 エヌ・アール・ケー総合企画
価格
:
35,000,000
円
土地面積
:314.89㎡ /95.25坪
建物面積
:150.05㎡ /45.39坪
間取り
:3LDK
築年月
:2024年4月
\贅沢な広さのエントランスと吹き抜けホールがあるお家/ ■前面道路6m以上の角地 ■駐車3台可能 ■カーテン&LDKエアコン付き ■アクロスプラザ長岡まで徒歩5分
(新築住宅)長岡市川崎1丁目
新潟県長岡市川崎1丁目2664-3付近
新潟土地建物販売センター 株式会社
価格
:
35,500,000
円
土地面積
:226.78㎡ /68.6坪
建物面積
:94.39㎡ /28.55坪
間取り
:3LDK
築年月
:2024年8月
【9/2 価格改定しました】贅沢な広さのエントランスと吹き抜けホール。家族でバーベキューが楽しめる、アウトドアリビング!きれいな空気でいつも快適にすごせる、熱交換換気を搭載!
川崎 新築デザイン住宅
新潟県長岡市川崎1丁目2618-2
ダイエープロビス株式会社
価格
:
35,500,000
円
土地面積
:226.78㎡ /68.6坪
建物面積
:94.39㎡ /28.55坪
間取り
:3LDK
築年月
:2024年8月
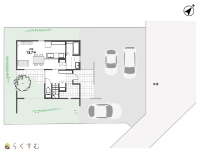
スーパーやドラッグストア、ショッピングモール、コンビニが徒歩10分圏内に揃う好立地。原信や無印良品、西松屋なども近く、毎日の買い物がらくらく。暮らしやすさを実感できる便利な環境です。
川崎1丁目 未入居戸建
新潟県長岡市川崎1丁目2618-2
有限会社 ブライトサクセス
価格
:
35,500,000
円
土地面積
:226.78㎡ /68.6坪
建物面積
:94.39㎡ /28.55坪
間取り
:3LDK
築年月
:2024年8月
モリタ装芸の定額制注文住宅が分譲住宅として完成します!
新築分譲 長岡市左近3丁目
新潟県長岡市左近3丁目39-1区画B
株式会社モリタ装芸
価格
:
35,700,000
円
土地面積
:223.41㎡ /67.58坪
建物面積
:97.71㎡ /29.55坪
間取り
:3LDK
築年月
:2025年12月
【R7年10月価格改定!3,750万円→3,580万円】≪事前の見学予約でQUOカード3,000円分プレゼント!≫家事効率の良い回遊動線+人気のタタミヌックで楽しい子育てライフを実現できます♪自社物件につきキャンペーン中!!
【価格改定≪ミサワホーム≫宮場町MJ分譲B棟
新潟県柏崎市宮場町
ミサワホーム北越 株式会社
価格
:
35,800,000
円
土地面積
:165.73㎡ /50.13坪
建物面積
:105.99㎡ /32.06坪
間取り
:3LDK
築年月
:2024年9月
表示切替:
一覧表示
/
地図表示
並び替え:
指定なし
新着順
価格が安い順
価格が高い順
価格は物件の代金総額を表示しており、消費税が課税される場合は税込み価格です。
建築条件付き土地価格には、建物価格は含まれません。
物件情報の詳細については取り扱い店までお問い合わせください。
完成予想図はいずれも外構・植栽・外観等実際のものと異なることが多少あります。
CG合成の画像の場合実際と異なることが多少あります。
完成後1年以上経過したものが未入居として記載される場合があります。ご了承ください。
販売予定物件は販売開始するまで契約または予約の申し込みはできません。
ご購入の場合物件詳細や契約内容についてご自身で十分ご確認いただきますようよろしく御願いします。
建築条件付きとは…その土地に建築する建物の建築請負契約が、一定期間内に成立することを条件として売買される土地のことをいいます。請負契約成立に向けて設計プランを協議するため、土地購入者が希望する建物にするために一定の期間(概ね3ヶ月)交渉期間としその期間内に希望するプランが実現できたかどうかによって土地の購入の判断をします。納得のいくプランができず請負契約が未成立になった場合、土地契約にかかった代金(手付金など)は、すべて返却されます。
173件
該当しました。
<前のページ
2
3
4
5
6
7
8
9
次のページ>
0件
がマッチ
基本条件
物件種別
新築一戸建て
価格
下限なし
100万円
250万円
500万円
1000万円
1500万円
2000万円
2500万円
3000万円
3500万円
4000万円
4500万円
5000万円
5500万円
6000万円
6500万円
7000万円
7500万円
8000万円
8500万円
9000万円
9500万円
1億円
~
上限なし
100万円
250万円
500万円
1000万円
1500万円
2000万円
2500万円
3000万円
3500万円
4000万円
4500万円
5000万円
5500万円
6000万円
6500万円
7000万円
7500万円
8000万円
8500万円
9000万円
9500万円
1億円
間取り
ワンルーム
1K
1DK
1LDK
2K
2DK
2LDK
3K
3DK
3LDK
4K
4DK
4LDK以上
専有面積
下限なし
20㎡
30㎡
40㎡
50㎡
60㎡
70㎡
80㎡
90㎡
100㎡
~
上限なし
20㎡
30㎡
40㎡
50㎡
60㎡
70㎡
80㎡
90㎡
100㎡
土地面積
下限なし
60㎡ (約18坪)
70㎡ (約21坪)
80㎡ (約24坪)
90㎡ (約27坪)
100㎡ (約30坪)
110㎡ (約33坪)
120㎡ (約36坪)
130㎡ (約39坪)
140㎡ (約42坪)
150㎡ (約45坪)
160㎡ (約48坪)
170㎡ (約51坪)
180㎡ (約54坪)
190㎡ (約57坪)
200㎡ (約60坪)
250㎡ (約75坪)
300㎡ (約90坪)
~
上限なし
60㎡ (約18坪)
70㎡ (約21坪)
80㎡ (約24坪)
90㎡ (約27坪)
100㎡ (約30坪)
110㎡ (約33坪)
120㎡ (約36坪)
130㎡ (約39坪)
140㎡ (約42坪)
150㎡ (約45坪)
160㎡ (約48坪)
170㎡ (約51坪)
180㎡ (約54坪)
190㎡ (約57坪)
200㎡ (約60坪)
250㎡ (約75坪)
300㎡ (約90坪)
建物面積
下限なし
60㎡ (約18坪)
70㎡ (約21坪)
80㎡ (約24坪)
90㎡ (約27坪)
100㎡ (約30坪)
110㎡ (約33坪)
120㎡ (約36坪)
130㎡ (約39坪)
140㎡ (約42坪)
150㎡ (約45坪)
160㎡ (約48坪)
170㎡ (約51坪)
180㎡ (約54坪)
190㎡ (約57坪)
200㎡ (約60坪)
250㎡ (約75坪)
300㎡ (約90坪)
~
上限なし
60㎡ (約18坪)
70㎡ (約21坪)
80㎡ (約24坪)
90㎡ (約27坪)
100㎡ (約30坪)
110㎡ (約33坪)
120㎡ (約36坪)
130㎡ (約39坪)
140㎡ (約42坪)
150㎡ (約45坪)
160㎡ (約48坪)
170㎡ (約51坪)
180㎡ (約54坪)
190㎡ (約57坪)
200㎡ (約60坪)
250㎡ (約75坪)
300㎡ (約90坪)
坪単価
下限なし
5万円
10万円
15万円
20万円
25万円
30万円
35万円
40万円
45万円
50万円
~
上限なし
5万円
10万円
15万円
20万円
25万円
30万円
35万円
40万円
45万円
50万円
築年数
指定なし
新築
3年以内
5年以内
10年以内
15年以内
20年以内
方位
北
北東
東
南東
南
南西
西
北西
おすすめ条件
ペット可・相談
楽器可・相談
情報公開日
指定なし
本日
3日以内
1週間以内
1ヶ月以内
0件
がマッチ
人気のあるこだわり条件
角地(38)
高台に立地(13)
整形地(133)
前面道路6m以上(128)
日当り良好(139)
閑静な住宅街(124)
スーパー近く(93)
長期優良住宅(24)
設計住宅性能評価付き(27)
耐震構造(42)
BELS/省エネ基準適合認定建物(60)
瑕疵担保保険付き(37)
建物確認・完了検査済証あり(43)
フラット35S適合(41)
LDK15畳以上(128)
全室フローリング(129)
天井高2.5m以上(17)
駐車場2台以上(128)
駐車場3台以上(78)
南向き(80)
庭あり(70)
TVインターホン(155)
複層ガラス(147)
ディンプルキー(78)
システムキッチン(164)
カウンターキッチン(106)
IHクッキングヒーター(138)
浄水器(48)
食器洗浄乾燥機(69)
3口コンロ(101)
ガスコンロ設置済み(16)
追いだき機能付き(148)
浴室暖房乾燥機(41)
バス1坪以上(156)
浴室TV(2)
温水洗浄便座(162)
シャワー付き洗面台(151)
エアコン(132)
床暖房(8)
24時間換気システム(137)
全室エアコン(7)
オール電化(101)
太陽光発電システム(10)
省エネ給湯(141)
高気密高断熱住宅(119)
ウッドデッキ・テラス(22)
ルーフバルコニー(6)
都市ガス(72)
LPG(1)
上水道(168)
下水道(163)
浄化槽(7)
電気(156)
その他水道(1)
ウォークインクローゼット(116)
全居室収納あり(152)
床下収納(50)
シューズインクローゼット(67)
シューズBOX(111)
BS端子(15)
CS(2)
CATV(1)
LAN端子(17)
照明器具付き(115)
即引き渡し可能(57)
バリアフリー(54)
条件に合った物件数は、
0 件
です。
立地・環境
角地(38)
高台に立地(13)
整形地(133)
前面道路6m以上(128)
日当り良好(139)
閑静な住宅街(124)
スーパー近く(93)
構造・工法・仕様
長期優良住宅(24)
設計住宅性能評価付き(27)
耐震構造(42)
BELS/省エネ基準適合認定建物(60)
瑕疵担保保険付き(37)
建物確認・完了検査済証あり(43)
フラット35S適合(41)
面積・間取り
LDK15畳以上(128)
全室フローリング(129)
天井高2.5m以上(17)
駐車・駐輪
駐車場2台以上(128)
駐車場3台以上(78)
採光・向き
南向き(80)
ガーデン
庭あり(70)
管理・防犯
TVインターホン(155)
複層ガラス(147)
ディンプルキー(78)
キッチン
システムキッチン(164)
カウンターキッチン(106)
IHクッキングヒーター(138)
浄水器(48)
食器洗浄乾燥機(69)
3口コンロ(101)
ガスコンロ設置済み(16)
浴室
追いだき機能付き(148)
浴室暖房乾燥機(41)
バス1坪以上(156)
浴室TV(2)
トイレ
温水洗浄便座(162)
洗面所
シャワー付き洗面台(151)
冷暖房・空調
エアコン(132)
床暖房(8)
24時間換気システム(137)
全室エアコン(7)
光熱設備
オール電化(101)
太陽光発電システム(10)
省エネ給湯(141)
高気密高断熱住宅(119)
バルコニー・テラス
ウッドデッキ・テラス(22)
ルーフバルコニー(6)
室内仕様・設備
都市ガス(72)
LPG(1)
上水道(168)
下水道(163)
浄化槽(7)
電気(156)
その他水道(1)
収納
ウォークインクローゼット(116)
全居室収納あり(152)
床下収納(50)
シューズインクローゼット(67)
シューズBOX(111)
電気設備
BS端子(15)
CS(2)
CATV(1)
LAN端子(17)
照明器具付き(115)
費用・入居・引渡・条件
即引き渡し可能(57)
その他
バリアフリー(54)
条件に合った物件数は、
0 件
です。
アパート・マンション・一戸建て
/
駐車場
/
貸土地
/
店舗
/
事務所
/
倉庫・工場
新築分譲マンション
/
中古マンション
/
新築一戸建て
/
中古一戸建て
/
売土地
/
投資物件・その他
マンション
/
一戸建て
/
土地
建てる・リフォーム
物件掲載企業一覧
掲載希望の企業様へ
新潟の不動産情報サイト
サービス利用規約
運営会社
サイトマップ
プライバシーポリシー
お問い合わせ
リンク
Copyright (C)
株式会社 コモンライフ・コーポレーション
. All Rights Reserved.
新潟・長岡・柏崎の賃貸・マンション・アパート・住宅の不動産物件情報サイト
不動産検索サイト「らくすむ」及び関連サイトに記載の不動産情報は、会員規約に則り、情報提供会社様の責任のもとに発信されております。
不動産の賃借、購入に関しては賃借者、購入者ご自身が情報を確認され、会社企業様から説明を受けられたうえで判断をお願いいたします。
不動産検索サイト「らくすむ」及び関連サイトに記載の不動産情報、写真、デザイン、コンテンツなどの
無断転載・転用・複製
など禁止します。