物件掲載企業数:301|賃貸物件:3,261件|売買物件:3,251件|今週の登録物件:245
閲覧中のブラウザ(インターネットエクスプローラー)は非推奨ブラウザです。
物件が正しく表示されなかったり、正しく検索されない場合があります。最新のブラウザ(Google Chrome・Edgeなど)にてご利用お願いいたします。
  

新潟県長岡市陽光台4丁目1379-118 新築一戸建て 3LDK 43,000,000円の物件情報

【10/1~大幅価格改定!!】4,800万円→4,300万円   ◆形態と機能がひとつになった、シンプルで美しい住まい

物件名/所在地 詳細 価格
陽光台モデルハウス【ホリゾンタル】見学可
新潟県長岡市陽光台4丁目1379-118
  • 土地面積
    :205.97㎡ /62.3坪
  • 建物面積
    :118.7㎡ /35.9坪
  • 間取り
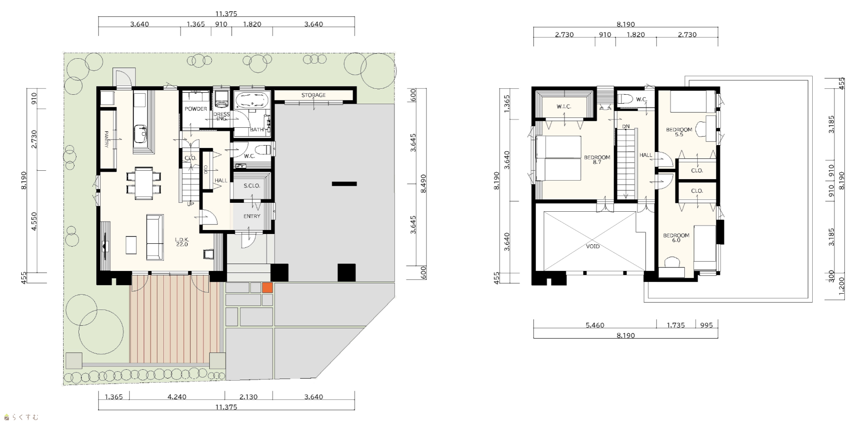
    :3LDK
  • 築年月
    :2021年10月
43,000,000
  • 陽光台モデルハウス【ホリゾンタル】見学可
    株式会社 空間クリエイティブ
  • この物件を問い合わせる/無料
  • TEL: 0258-38-5488

物件画像

外観 間取り
物件画像
※画像クリックで拡大表示
伸びやかな水平ラインを強調した、心安らぐ安定感のある外観
物件画像
※画像クリックで拡大表示
詳細画像


物件概要

「有機的建築」の思想が息づく至高の空間
物件コード 00130-200009
物件名 陽光台モデルハウス【ホリゾンタル】見学可
交通 駅:信越線 来迎寺駅から徒歩94分、バス:陽光台3丁目から徒歩6分
物件所在地 新潟県長岡市陽光台4丁目1379-118
物件種別 新築一戸建て
構造 木造 階建 地上2階建
建ぺい率/容積率 60%/200%
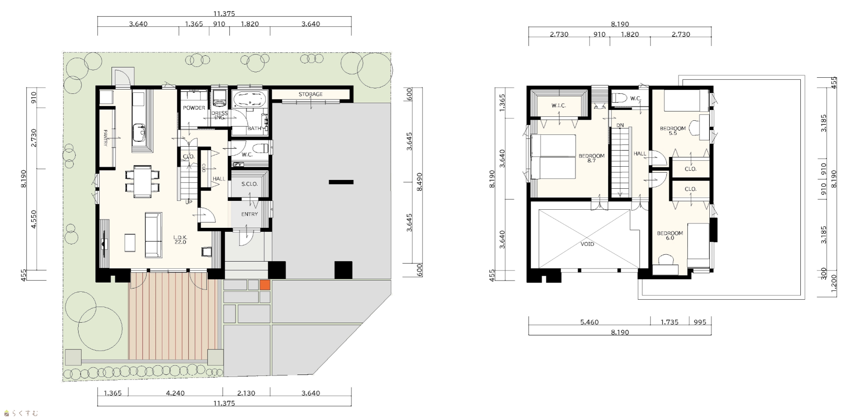
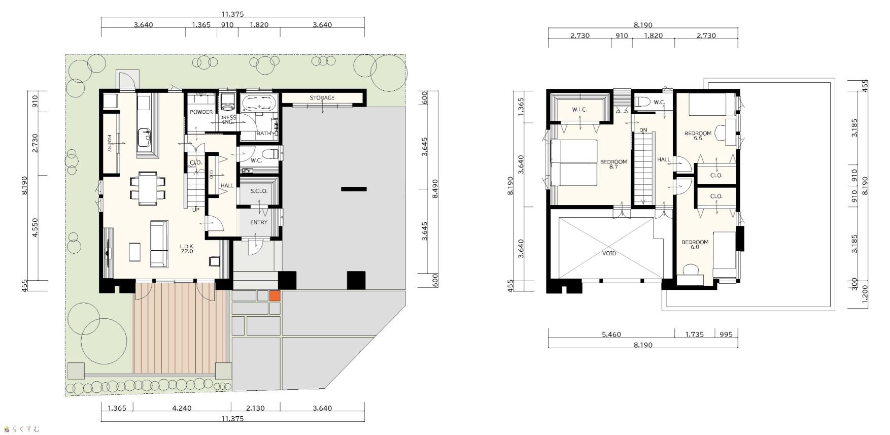
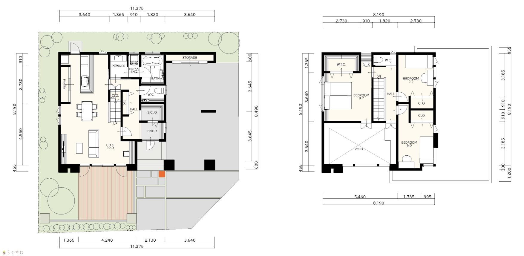
建物面積 1階 62.34㎡/ 2階 56.36㎡/ 計 118.7㎡ /35.9坪
土地面積 205.97㎡ /62.3坪
築年月 2021年10月(築4年)
入居(引き渡し)時期 相談
用途地域 第1種中高層住居専用地域 地目 宅地  (現状:宅地)
都市計画 市街化区域 学校区 青葉台小学校(1,337m)・青葉台中学校(1,948m)
形状 間口 14.71m × 奥行 14.64m 道路 南側市道 幅員8m、東側市道 幅員8m
私道 - その他の制限 -
  • 陽光台モデルハウス【ホリゾンタル】見学可
    株式会社 空間クリエイティブ
  • この物件を問い合わせる/無料
  • TEL: 0258-38-5488

物件詳細情報

所在階/階数 - 号室 -
販売価格 43,000,000円 方位 南東
間取り 3LDK (洋室:8.7、6.0、5.5)
(LDK 22.0)
インナーガレージ 28.71㎡(8.68坪)
専有面積 - バルコニー面積 -
その他面積 - 駐車場 -
管理費 - 修繕積立金 -
現況 指定なし
仲介手数料 なし
利用制限 -
設備 角地、前面道路6m以上、日当り良好、閑静な住宅街、LDK15畳以上、全室フローリング、駐車場3台以上、南向き、庭あり、TVインターホン、複層ガラス、カウンターキッチン、IHクッキングヒーター、食器洗浄乾燥機、追いだき機能付き、バス1坪以上、温水洗浄便座、エアコン、24時間換気システム、オール電化、ウッドデッキ・テラス、上水道、下水道、電気、ウォークインクローゼット、全居室収納あり、即引き渡し可能
取引態様 売主
備考 本当に良いデザインは決して色褪せることはありません。流行に左右されない普遍的な家、心から満足できる上質な住まいをご体感ください。
取り扱い会社

株式会社 空間クリエイティブ

新潟県長岡市三和1-1-24

情報登録日 2023/10/23 次回更新予定日 2026/06/06
取引条件有効期限 2023/10/31
  • 陽光台モデルハウス【ホリゾンタル】見学可
    株式会社 空間クリエイティブ
  • この物件を問い合わせる/無料
  • TEL: 0258-38-5488

この物件の地図・周辺情報・行政情報

この物件の周辺情報・行政情報を詳しく見る
【周辺情報】
物件の近くにあるコンビニや銀行・学校など、アイコン付のマップで詳しく表示できます!
【行政情報】
水道料や下水道料・ガス料金など、暮らしに関係のある情報を表示しています。

担当取扱い店舗情報

取扱い店舗画像
株式会社 空間クリエイティブ
TEL: 0258-38-5488
所在地: 新潟県長岡市三和1-1-24
交通: 長岡駅
営業時間: 9:00~18:00/定休日:土・日・祝
免許番号: 新潟県知事(5)第4601号 この会社の情報を詳しく見る
所属団体名: 全日本不動産協会 新潟県本部
取引態様: 売主
ホームページ: http://ku-creative.com/