1
物件掲載企業数:
297
社
|賃貸物件:
3,610
件|売買物件:
3,333
件|今週の登録物件:
272
件
閲覧中のブラウザ(インターネットエクスプローラー)は非推奨ブラウザです。
物件が正しく表示されなかったり、正しく検索されない場合があります。最新のブラウザ(Google Chrome・Edgeなど)にてご利用お願いいたします。
Google Chrome
Microsoft Edge
アパート・マンション・一戸建て
駐車場
貸土地
店舗
事務所
倉庫・工場
新築分譲マンション
中古マンション
新築一戸建て
中古一戸建て
売土地・分譲地
その他(投資物件など)
マンション
一戸建て
土地
ホーム
>
会社情報
>
物件種別選択
> 物件一覧
戸建エース / (株)アップデート不動産
の
中古一戸建て
物件情報
21件
該当しました。
1
2
次のページ>
表示切替:
一覧表示
/
地図表示
並び替え:
指定なし
新着順
価格が安い順
価格が高い順
画像
物件名/所在地/取扱店
詳細
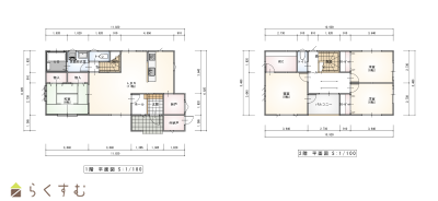
長岡市不動沢中古住宅
新潟県長岡市不動沢711-1
戸建エース / (株)アップデート不動産
価格
:
1,000,000
円
土地面積
:563.2㎡ /170.36坪
建物面積
:109.3㎡ /33.06坪
間取り
:9DK
築年月
:1980年10月
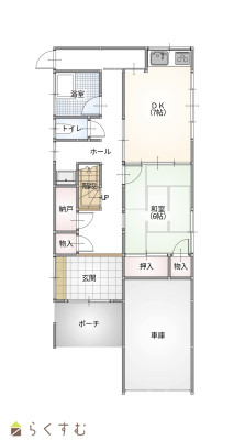
川崎町 中古物件
新潟県長岡市川崎町1580-11
戸建エース / (株)アップデート不動産
価格
:
1,500,000
円
土地面積
:140.55㎡ /42.51坪
建物面積
:44.83㎡ /13.56坪
間取り
:5DK
築年月
:1966年8月
長岡市東が丘中古住宅
新潟県長岡市東が丘2-10
戸建エース / (株)アップデート不動産
価格
:
2,400,000
円
土地面積
:141.24㎡ /42.72坪
建物面積
:145.01㎡ /43.86坪
間取り
:4DK
築年月
:1968年12月
長岡市金町 中古住宅
新潟県長岡市金町2丁目3-1
戸建エース / (株)アップデート不動産
価格
:
2,800,000
円
土地面積
:180.95㎡ /54.73坪
建物面積
:160.58㎡ /48.57坪
間取り
:6K
築年月
:不詳
駅チカ×車庫付き 暮らしやすさがちょうどいい家
長岡市神田町 中古住宅
新潟県長岡市神田町1丁目2-11
戸建エース / (株)アップデート不動産
価格
:
3,500,000
円
土地面積
:72.23㎡ /21.84坪
建物面積
:59.49㎡ /17.99坪
間取り
:5DK
築年月
:不詳
見附市下関町 中古物件 平成13年築×駐車3台以上。使いやすさ重視の一戸建て
見附市下関町 中古物件
新潟県見附市下関町丙2019
戸建エース / (株)アップデート不動産
価格
:
5,000,000
円
土地面積
:399㎡ /120.69坪
建物面積
:110.14㎡ /33.31坪
間取り
:5LDK
築年月
:2001年1月
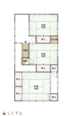
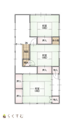
東与板中古住宅
新潟県長岡市与板町東与板1-8
戸建エース / (株)アップデート不動産
価格
:
5,500,000
円
土地面積
:330.64㎡ /100.01坪
建物面積
:146.49㎡ /44.31坪
間取り
:7DK
築年月
:1971年8月
≪スーパーやコンビニが徒歩5分圏内の立地≫
北山3丁目中古住宅
新潟県長岡市北山3丁目4-6
戸建エース / (株)アップデート不動産
価格
:
6,000,000
円
土地面積
:132㎡ /39.93坪
建物面積
:122.49㎡ /37.05坪
間取り
:5DK
築年月
:1975年9月
静かな住環境で、オール電化の快適生活 ソーラーパネルが設置されているため気になる電気代も安心です!
燕市四ツ屋中古住宅
新潟県燕市四ツ屋114-6
戸建エース / (株)アップデート不動産
価格
:
8,800,000
円
土地面積
:178.46㎡ /53.98坪
建物面積
:105.42㎡ /31.88坪
間取り
:3LDK
築年月
:1997年6月
長岡市土合 中古物件
新潟県長岡市土合1丁目5-19
戸建エース / (株)アップデート不動産
価格
:
9,800,000
円
土地面積
:99.17㎡ /29.99坪
建物面積
:164.99㎡ /49.9坪
間取り
:7DK
築年月
:1982年7月
子育て環境◎ こども園目の前の6LDKリフォーム住宅
長岡市大島本町 中古住宅
新潟県長岡市大島本町2丁目11番地6
戸建エース / (株)アップデート不動産
価格
:
11,500,000
円
土地面積
:279.26㎡ /84.47坪
建物面積
:162.63㎡ /49.19坪
間取り
:6LDK
築年月
:1967年3月
長岡市希望が丘 中古住宅
新潟県長岡市希望が丘2丁目4-1
戸建エース / (株)アップデート不動産
価格
:
11,800,000
円
土地面積
:244.37㎡ /73.92坪
建物面積
:196.61㎡ /59.47坪
間取り
:5LDK
築年月
:1982年7月
【9DK+南庭付き】駐車3台以上OK!広々暮らしたいご家族にオススメ☆
長岡市槇下町 中古住宅
新潟県長岡市槇下町3006-1
戸建エース / (株)アップデート不動産
価格
:
14,800,000
円
土地面積
:329.9㎡ /99.79坪
建物面積
:144.4㎡ /43.68坪
間取り
:9DK
築年月
:1978年6月
【2021年築】二重断熱の暖かい住宅。コンパクトな間取りで2~3人暮らしにオススメです。
長岡市水道町 中古住宅
新潟県長岡市水道町2丁目1-44-2
戸建エース / (株)アップデート不動産
価格
:
21,500,000
円
土地面積
:126.41㎡ /38.23坪
建物面積
:71.21㎡ /21.54坪
間取り
:2LDK
築年月
:2021年3月
【スーパー・コンビニ徒歩圏内】2014年築のBESSのログハウス
長岡市下々条町 中古住宅
新潟県長岡市下々条町2484-9
戸建エース / (株)アップデート不動産
価格
:
22,000,000
円
土地面積
:222.98㎡ /67.45坪
建物面積
:105.62㎡ /31.95坪
間取り
:2LDK
築年月
:2018年6月
\3LDKの二重断熱平屋が三条に!/ 小学校、スーパー、コンビニが徒歩圏内のエリア(^^♪ 車3台分の土間コンクリート◎
三条市南四日町 新築平屋建売住宅
新潟県三条市南四日町4丁目1144番5
戸建エース / (株)アップデート不動産
価格
:
22,800,000
円
土地面積
:213.64㎡ /64.62坪
建物面積
:79.49㎡ /24.04坪
間取り
:3LDK
築年月
:2024年1月
【広々とした車庫とカーポート付】内外装リフォーム物件!国道8号線まで車で2分で出れます
高見1丁目 中古リノベーション住宅
新潟県長岡市高見1丁目3-14
戸建エース / (株)アップデート不動産
価格
:
22,800,000
円
土地面積
:219.59㎡ /66.42坪
建物面積
:126.69㎡ /38.32坪
間取り
:4LDK
築年月
:1985年9月
\コンビニ、スーパー、公園が徒歩10分圏内のエリア!/ 高天井のリビングなので平屋でも開放的です☆ 二重断熱の3LDK平屋♪
新潟市江南区亀田中島 新築平屋建売住宅
新潟県新潟市東区亀田中島2丁目1567番5
戸建エース / (株)アップデート不動産
価格
:
25,800,000
円
土地面積
:208.98㎡ /63.21坪
建物面積
:77.84㎡ /23.54坪
間取り
:3LDK
築年月
:2024年2月
【築5年4LDK】パントリーやウォークインクローゼット、外部収納など、収納たっぷりのお家です。3~4人暮らしの方にオススメ
柏崎市日吉町 中古住宅
新潟県柏崎市日吉町2番66-3
戸建エース / (株)アップデート不動産
価格
:
25,800,000
円
土地面積
:180.99㎡ /54.74坪
建物面積
:118.42㎡ /35.82坪
間取り
:4LDK
築年月
:2020年5月
小針駅まで徒歩13分!! 省エネで快適な暮らしを実現! 通学、お買い物にも便利な立地です(^-^)
西区小針南 新築平屋建売住宅
新潟県新潟市西区小針南33番5
戸建エース / (株)アップデート不動産
価格
:
27,800,000
円
土地面積
:167.61㎡ /50.7坪
建物面積
:73.28㎡ /22.16坪
間取り
:2LDK
築年月
:2024年11月
表示切替:
一覧表示
/
地図表示
並び替え:
指定なし
新着順
価格が安い順
価格が高い順
価格は物件の代金総額を表示しており、消費税が課税される場合は税込み価格です。
建築条件付き土地価格には、建物価格は含まれません。
物件情報の詳細については取り扱い店までお問い合わせください。
完成予想図はいずれも外構・植栽・外観等実際のものと異なることが多少あります。
CG合成の画像の場合実際と異なることが多少あります。
完成後1年以上経過したものが未入居として記載される場合があります。ご了承ください。
販売予定物件は販売開始するまで契約または予約の申し込みはできません。
ご購入の場合物件詳細や契約内容についてご自身で十分ご確認いただきますようよろしく御願いします。
建築条件付きとは…その土地に建築する建物の建築請負契約が、一定期間内に成立することを条件として売買される土地のことをいいます。請負契約成立に向けて設計プランを協議するため、土地購入者が希望する建物にするために一定の期間(概ね3ヶ月)交渉期間としその期間内に希望するプランが実現できたかどうかによって土地の購入の判断をします。納得のいくプランができず請負契約が未成立になった場合、土地契約にかかった代金(手付金など)は、すべて返却されます。
21件
該当しました。
1
2
次のページ>
0件
がマッチ
基本条件
物件種別
中古一戸建て
価格
下限なし
100万円
250万円
500万円
1000万円
1500万円
2000万円
2500万円
3000万円
3500万円
4000万円
4500万円
5000万円
5500万円
6000万円
6500万円
7000万円
7500万円
8000万円
8500万円
9000万円
9500万円
1億円
~
上限なし
100万円
250万円
500万円
1000万円
1500万円
2000万円
2500万円
3000万円
3500万円
4000万円
4500万円
5000万円
5500万円
6000万円
6500万円
7000万円
7500万円
8000万円
8500万円
9000万円
9500万円
1億円
間取り
ワンルーム
1K
1DK
1LDK
2K
2DK
2LDK
3K
3DK
3LDK
4K
4DK
4LDK以上
専有面積
下限なし
20㎡
30㎡
40㎡
50㎡
60㎡
70㎡
80㎡
90㎡
100㎡
~
上限なし
20㎡
30㎡
40㎡
50㎡
60㎡
70㎡
80㎡
90㎡
100㎡
土地面積
下限なし
60㎡ (約18坪)
70㎡ (約21坪)
80㎡ (約24坪)
90㎡ (約27坪)
100㎡ (約30坪)
110㎡ (約33坪)
120㎡ (約36坪)
130㎡ (約39坪)
140㎡ (約42坪)
150㎡ (約45坪)
160㎡ (約48坪)
170㎡ (約51坪)
180㎡ (約54坪)
190㎡ (約57坪)
200㎡ (約60坪)
250㎡ (約75坪)
300㎡ (約90坪)
~
上限なし
60㎡ (約18坪)
70㎡ (約21坪)
80㎡ (約24坪)
90㎡ (約27坪)
100㎡ (約30坪)
110㎡ (約33坪)
120㎡ (約36坪)
130㎡ (約39坪)
140㎡ (約42坪)
150㎡ (約45坪)
160㎡ (約48坪)
170㎡ (約51坪)
180㎡ (約54坪)
190㎡ (約57坪)
200㎡ (約60坪)
250㎡ (約75坪)
300㎡ (約90坪)
建物面積
下限なし
60㎡ (約18坪)
70㎡ (約21坪)
80㎡ (約24坪)
90㎡ (約27坪)
100㎡ (約30坪)
110㎡ (約33坪)
120㎡ (約36坪)
130㎡ (約39坪)
140㎡ (約42坪)
150㎡ (約45坪)
160㎡ (約48坪)
170㎡ (約51坪)
180㎡ (約54坪)
190㎡ (約57坪)
200㎡ (約60坪)
250㎡ (約75坪)
300㎡ (約90坪)
~
上限なし
60㎡ (約18坪)
70㎡ (約21坪)
80㎡ (約24坪)
90㎡ (約27坪)
100㎡ (約30坪)
110㎡ (約33坪)
120㎡ (約36坪)
130㎡ (約39坪)
140㎡ (約42坪)
150㎡ (約45坪)
160㎡ (約48坪)
170㎡ (約51坪)
180㎡ (約54坪)
190㎡ (約57坪)
200㎡ (約60坪)
250㎡ (約75坪)
300㎡ (約90坪)
坪単価
下限なし
5万円
10万円
15万円
20万円
25万円
30万円
35万円
40万円
45万円
50万円
~
上限なし
5万円
10万円
15万円
20万円
25万円
30万円
35万円
40万円
45万円
50万円
築年数
指定なし
新築
3年以内
5年以内
10年以内
15年以内
20年以内
方位
北
北東
東
南東
南
南西
西
北西
おすすめ条件
ペット可・相談
楽器可・相談
情報公開日
指定なし
本日
3日以内
1週間以内
1ヶ月以内
0件
がマッチ
人気のあるこだわり条件
角地(6)
日当り良好(18)
閑静な住宅街(14)
スーパー近く(10)
設計住宅性能評価付(1)
フラット35S適合(2)
瑕疵担保保険対象(2)
新築時図面あり(4)
修繕記録あり(1)
BELS/省エネ基準適合認定建物(3)
建物確認・完了検査済証あり(4)
瑕疵担保保険付き(1)
LDK15帖以上(5)
全室フローリング(5)
築10年以内(5)
築15年以内(1)
駐車2台可能(10)
駐車3台以上可能(8)
駐車場融雪設備あり(1)
南向き(5)
TVインターホン(10)
複層ガラス(6)
デインプルキー(6)
システムキッチン(11)
カウンターキッチン(2)
IHクッキングヒーター(10)
食器洗浄乾燥機(2)
3口コンロ(7)
ガスコンロ設置可能(1)
ガスコンロ設置済み(1)
追いだき機能付き(7)
バス1坪以上(9)
温水洗浄便座(14)
トイレ2か所以上(4)
シャワー付き洗面台(7)
エアコンあり(14)
24時間換気システム(4)
オール電化(5)
太陽光発電システム(1)
省エネ給湯機(4)
都市ガス(13)
LPG(1)
上水道(18)
下水道(17)
バリアフリー(2)
ウォークインクローゼット(5)
全居室収納あり(6)
床下収納(1)
シューズBOX(10)
シューズインクローゼット(4)
内装リフォーム済み(2)
外装リフォーム済み(1)
リノベーション物件(1)
2世帯向き(1)
即引き渡し可能(8)
別荘(3)
田舎暮らし(5)
条件に合った物件数は、
0 件
です。
立地・環境
角地(6)
日当り良好(18)
閑静な住宅街(14)
スーパー近く(10)
構造・工法・仕様
設計住宅性能評価付(1)
フラット35S適合(2)
瑕疵担保保険対象(2)
新築時図面あり(4)
修繕記録あり(1)
BELS/省エネ基準適合認定建物(3)
建物確認・完了検査済証あり(4)
瑕疵担保保険付き(1)
面積・間取り
LDK15帖以上(5)
全室フローリング(5)
築年
築10年以内(5)
築15年以内(1)
駐車・駐輪
駐車2台可能(10)
駐車3台以上可能(8)
駐車場融雪設備あり(1)
採光・向き
南向き(5)
管理・防犯
TVインターホン(10)
複層ガラス(6)
デインプルキー(6)
キッチン
システムキッチン(11)
カウンターキッチン(2)
IHクッキングヒーター(10)
食器洗浄乾燥機(2)
3口コンロ(7)
ガスコンロ設置可能(1)
ガスコンロ設置済み(1)
浴室
追いだき機能付き(7)
バス1坪以上(9)
トイレ
温水洗浄便座(14)
トイレ2か所以上(4)
洗面所
シャワー付き洗面台(7)
冷暖房・空調
エアコンあり(14)
24時間換気システム(4)
光熱設備
オール電化(5)
太陽光発電システム(1)
省エネ給湯機(4)
室内仕様・設備
都市ガス(13)
LPG(1)
上水道(18)
下水道(17)
バリアフリー(2)
収納
ウォークインクローゼット(5)
全居室収納あり(6)
床下収納(1)
シューズBOX(10)
シューズインクローゼット(4)
リフォーム
内装リフォーム済み(2)
外装リフォーム済み(1)
リノベーション物件(1)
費用・入居・引渡・条件
2世帯向き(1)
即引き渡し可能(8)
その他
別荘(3)
田舎暮らし(5)
条件に合った物件数は、
0 件
です。
アパート・マンション・一戸建て
/
駐車場
/
貸土地
/
店舗
/
事務所
/
倉庫・工場
新築分譲マンション
/
中古マンション
/
新築一戸建て
/
中古一戸建て
/
売土地
/
投資物件・その他
マンション
/
一戸建て
/
土地
建てる・リフォーム
物件掲載企業一覧
掲載希望の企業様へ
新潟の不動産情報サイト
サービス利用規約
運営会社
サイトマップ
プライバシーポリシー
お問い合わせ
リンク
Copyright (C)
株式会社 コモンライフ・コーポレーション
. All Rights Reserved.
新潟・長岡・柏崎の賃貸・マンション・アパート・住宅の不動産物件情報サイト
不動産検索サイト「らくすむ」及び関連サイトに記載の不動産情報は、会員規約に則り、情報提供会社様の責任のもとに発信されております。
不動産の賃借、購入に関しては賃借者、購入者ご自身が情報を確認され、会社企業様から説明を受けられたうえで判断をお願いいたします。
不動産検索サイト「らくすむ」及び関連サイトに記載の不動産情報、写真、デザイン、コンテンツなどの
無断転載・転用・複製
など禁止します。