物件掲載企業数:301|賃貸物件:3,261件|売買物件:3,251件|今週の登録物件:296
閲覧中のブラウザ(インターネットエクスプローラー)は非推奨ブラウザです。
物件が正しく表示されなかったり、正しく検索されない場合があります。最新のブラウザ(Google Chrome・Edgeなど)にてご利用お願いいたします。
  

新潟県長岡市東が丘2-10 中古一戸建て 4DK 2,400,000円の物件情報

【全室6畳以上×車庫付】4DK全ての居室が6畳以上のゆとり。シャッター付ガレージで愛車を保護

物件名/所在地 詳細 価格
長岡市東が丘中古住宅
新潟県長岡市東が丘2-10
  • 土地面積
    :141.24㎡ /42.72坪
  • 建物面積
    :125.56㎡ /37.98坪
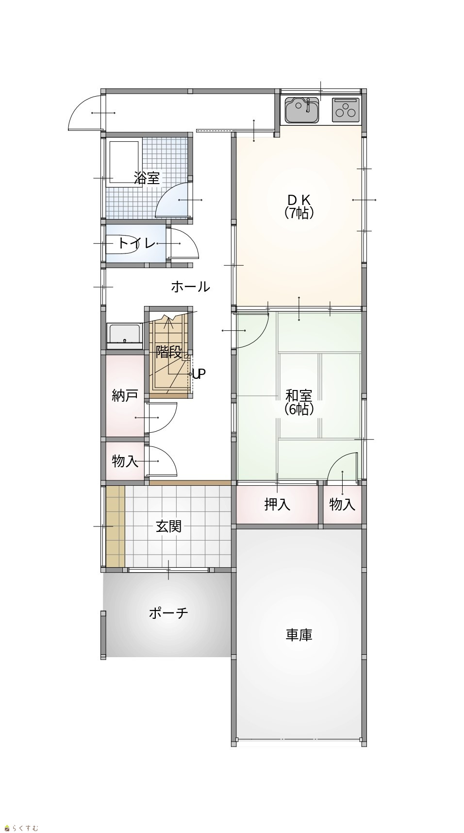
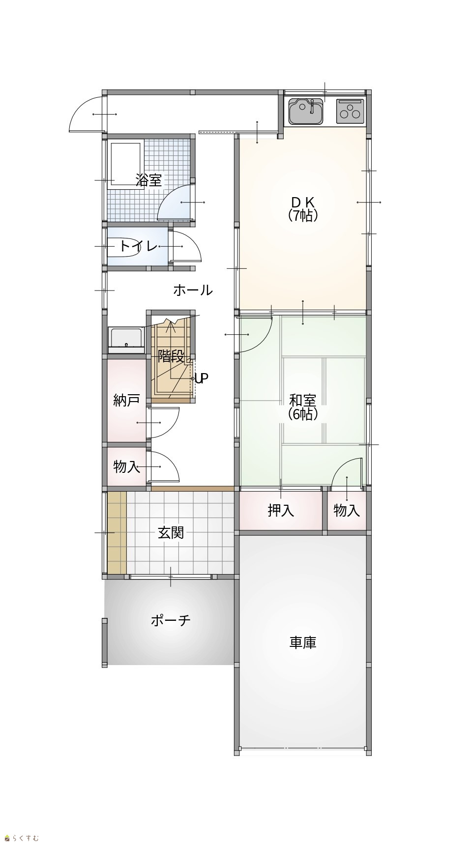
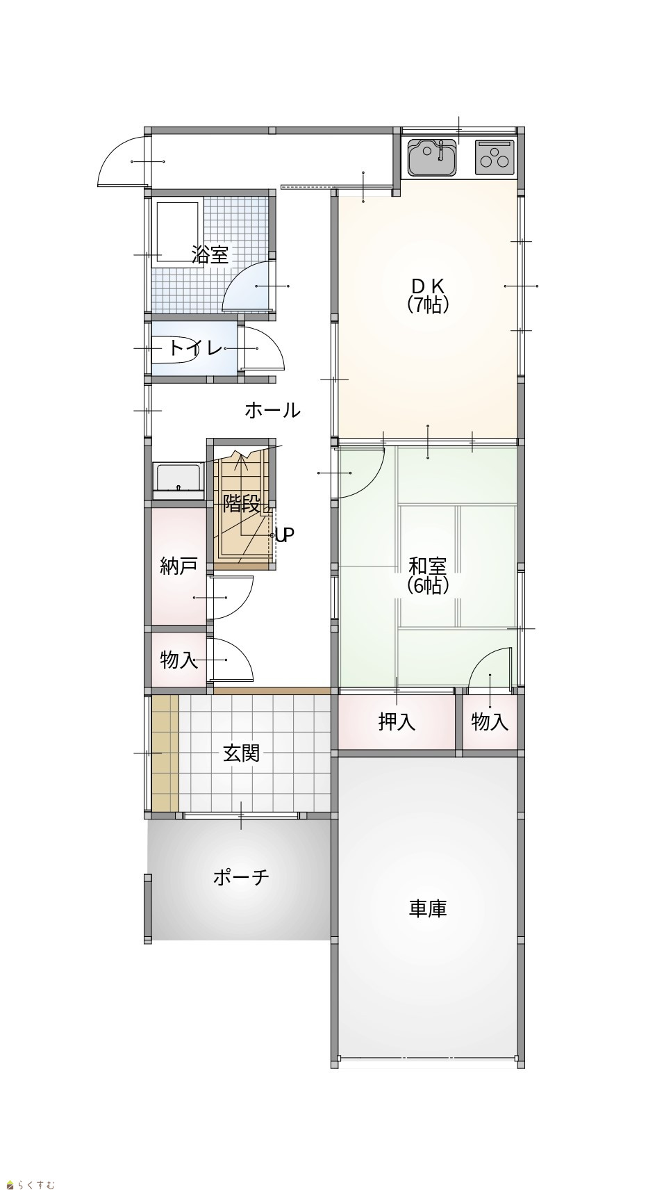
  • 間取り
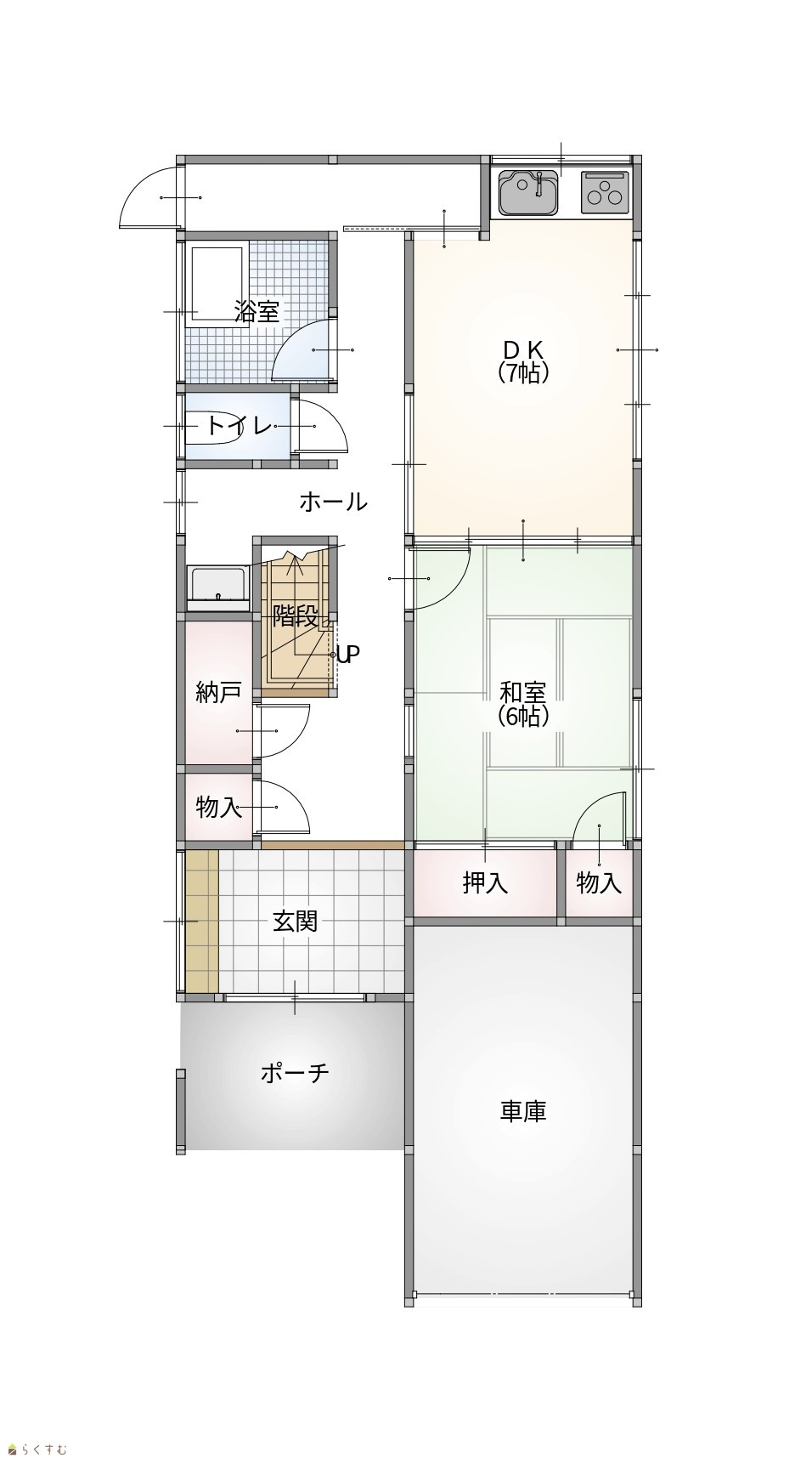
    :4DK
  • 築年月
    :1968年12月
2,400,000
  • 長岡市東が丘中古住宅
    戸建エース / (株)アップデート不動産
  • この物件を問い合わせる/無料
  • TEL: 080-7289-9376

物件画像

外観 間取り
物件画像
※画像クリックで拡大表示
外観写真
物件画像
※画像クリックで拡大表示
1F間取り図
詳細画像


物件概要

物件コード 00221-200196
物件名 長岡市東が丘中古住宅
交通 駅:信越線 見附駅から徒歩172分、バス:天下島から徒歩9分
物件所在地 新潟県長岡市東が丘2-10
物件種別 中古一戸建て
構造 木造 階建 地上2階建
建ぺい率/容積率 60%/200%
建物面積 1階 68.43㎡/ 2階 57.13㎡/ 計 125.56㎡ /37.98坪
土地面積 141.24㎡ /42.72坪
築年月 1968年12月(築57年)
入居(引き渡し)時期 随時入居(引き渡し)可
用途地域 第1種中高層住居専用地域 地目 宅地
都市計画 非線引き都市計画区域 学校区 栃尾南小学校(959m)・秋葉中学校(970m)
形状 - 道路 -
私道 - その他の制限 -
  • 長岡市東が丘中古住宅
    戸建エース / (株)アップデート不動産
  • この物件を問い合わせる/無料
  • TEL: 080-7289-9376

物件詳細情報

所在階/階数 - 号室 -
販売価格 2,400,000円 方位 -
間取り 4DK
専有面積 - バルコニー面積 -
その他面積 - 駐車場 -
管理費 - 修繕積立金 -
現況 空家
仲介手数料 330,000円
利用制限 -
設備 日当り良好、閑静な住宅街、都市ガス、上水道、下水道、即引き渡し可能
取引態様 専任
備考 -
取り扱い会社

戸建エース / (株)アップデート不動産

新潟県長岡市古正寺3丁目116

情報登録日 2026/02/27 次回更新予定日 2026/06/05
取引条件有効期限 2025/10/31
  • 長岡市東が丘中古住宅
    戸建エース / (株)アップデート不動産
  • この物件を問い合わせる/無料
  • TEL: 080-7289-9376

この物件の地図・周辺情報・行政情報

この物件の周辺情報・行政情報を詳しく見る
【周辺情報】
物件の近くにあるコンビニや銀行・学校など、アイコン付のマップで詳しく表示できます!
【行政情報】
水道料や下水道料・ガス料金など、暮らしに関係のある情報を表示しています。

担当取扱い店舗情報

取扱い店舗画像
戸建エース / (株)アップデート不動産
TEL: 080-7289-9376
所在地: 新潟県長岡市古正寺3丁目116
交通:
営業時間: 10:00~17:00/定休日:水曜日 木曜日
免許番号: 新潟県知事(2)第5484号 この会社の情報を詳しく見る
所属団体名: 新潟県宅地建物取引業協会 長岡支部
取引態様: 専任
ホームページ: https://update-estate.com/