| 物件コード | 00221-200196 | ||
|---|---|---|---|
| 物件名 | 長岡市東が丘中古住宅 | ||
| 交通 | 駅:信越線 見附駅から徒歩172分、バス:天下島から徒歩9分 | ||
| 物件所在地 | 新潟県長岡市東が丘2-10 | ||
| 物件種別 | 中古一戸建て | ||
| 構造 | 木造 | 階建 | 地上2階建 |
| 建ぺい率/容積率 | 60%/200% | ||
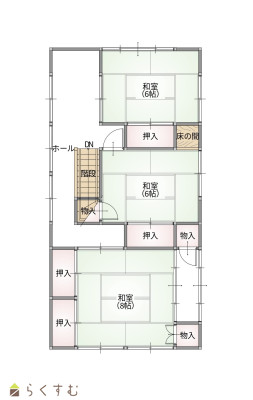
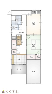
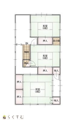
| 建物面積 | 1階 92.99㎡/ 2階 52.02㎡/ 計 145.01㎡ /43.86坪 | ||
| 土地面積 | 141.24㎡ /42.72坪 | ||
| 築年月 | 1968年12月(築57年) | ||
| 入居時期 | 随時入居(引き渡し)可 | ||
| 用途地域 | 第1種中高層住居専用地域 | 地目 | 宅地 |
| 都市計画 | 非線引き都市計画区域 | 学校区 | 栃尾南小学校(959m)・秋葉中学校(970m) |
| 形状 | - | 道路 | - |
| 私道 | - | ||
| 所在階/階数 | - | 号室 | - |
|---|---|---|---|
| 販売価格 | 2,400,000円 | 方位 | - |
| 間取り | 4DK | ||
| 専有面積 | - | バルコニー面積 | - |
| その他面積 | - | 駐車場 | - |
| 管理費 | - | 修繕積立金 | - |
| 現況 | 空家 | ||
| 仲介手数料 | 330,000円 | ||
| 利用制限 | - | ||
| 設備 | 日当り良好、閑静な住宅街、都市ガス、上水道、下水道、即引き渡し可能 | ||
| 取引態様 | 専任 | ||
| 備考 | - | ||
| 情報登録日 | 2026/01/27 | 次回更新予定日 | 2026/03/06 |
| 取引条件有効期限 | 2025/10/31 | ||
|
|
|
|
| TEL: | 080-7289-9376 |
|---|---|
| 所在地: | 新潟県長岡市古正寺3丁目116 |
| 交通: | |
| 営業時間: | 10:00~17:00/定休日:水曜日 木曜日 |
| 免許番号: | 新潟県知事(2)第5484号 |
| 所属団体名: | 新潟県宅地建物取引業協会 長岡支部 |
| 取引態様: | 専任 |