物件掲載企業数:301|賃貸物件:3,261件|売買物件:3,251件|今週の登録物件:246
閲覧中のブラウザ(インターネットエクスプローラー)は非推奨ブラウザです。
物件が正しく表示されなかったり、正しく検索されない場合があります。最新のブラウザ(Google Chrome・Edgeなど)にてご利用お願いいたします。
  

新潟県長岡市神田町1丁目2-11 中古一戸建て 5DK 3,500,000円の物件情報

駅チカ×車庫付き 暮らしやすさがちょうどいい家

物件名/所在地 詳細 価格
長岡市神田町 中古住宅
新潟県長岡市神田町1丁目2-11
  • 土地面積
    :72.23㎡ /21.84坪
  • 建物面積
    :59.49㎡ /17.99坪
  • 間取り
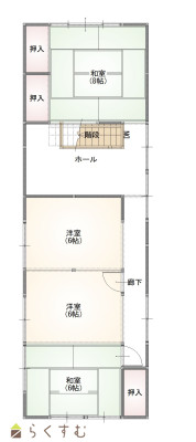
    :5DK
  • 築年月
    :不詳
3,500,000
  • 長岡市神田町 中古住宅
    戸建エース / (株)アップデート不動産
  • この物件を問い合わせる/無料
  • TEL: 080-7289-9376

物件画像

外観 間取り
物件画像
※画像クリックで拡大表示
外観
物件画像
※画像クリックで拡大表示
間取り
詳細画像


物件概要

駅近でもゆとりのある暮らしを実現。車庫付きで使い勝手◎
物件コード 00221-200258
物件名 長岡市神田町 中古住宅
交通 駅:上越新幹線 長岡駅から徒歩11分、バス:神田1丁目から徒歩1分
物件所在地 新潟県長岡市神田町1丁目2-11
物件種別 中古一戸建て
構造 木造 階建 地上2階建
建ぺい率/容積率 70%/200%
建物面積 1階 39.66㎡/ 2階 19.83㎡/ 計 59.49㎡ /17.99坪
土地面積 72.23㎡ /21.84坪
築年月 不詳
入居(引き渡し)時期 相談
用途地域 近隣商業地域 地目 宅地
都市計画 市街化区域 学校区 阪之上小学校(831m)・東中学校(892m)
形状 - 道路 -
私道 - その他の制限 準防火地域
  • 長岡市神田町 中古住宅
    戸建エース / (株)アップデート不動産
  • この物件を問い合わせる/無料
  • TEL: 080-7289-9376

物件詳細情報

所在階/階数 - 号室 -
販売価格 3,500,000円 方位 -
間取り 5DK
専有面積 - バルコニー面積 -
その他面積 - 駐車場 -
管理費 - 修繕積立金 -
現況 空家
仲介手数料 330,000円
利用制限 -
設備 日当り良好、スーパー近く、都市ガス、上水道、下水道
取引態様 専任
備考 -
取り扱い会社

戸建エース / (株)アップデート不動産

新潟県長岡市古正寺3丁目116

情報登録日 2026/03/16 次回更新予定日 2026/06/06
取引条件有効期限 2025/12/31
  • 長岡市神田町 中古住宅
    戸建エース / (株)アップデート不動産
  • この物件を問い合わせる/無料
  • TEL: 080-7289-9376

この物件の地図・周辺情報・行政情報

この物件の周辺情報・行政情報を詳しく見る
【周辺情報】
物件の近くにあるコンビニや銀行・学校など、アイコン付のマップで詳しく表示できます!
【行政情報】
水道料や下水道料・ガス料金など、暮らしに関係のある情報を表示しています。
セブン-イレブン 長岡呉服町店(コンビニ)まで340m
みどり薬局(ドラッグストア)まで200m
吉田病院(病院)まで290m
大光銀行 神田支店(銀行)までm
長岡呉服町郵便局(郵便局)までm

※カメラのアイコンがある場合は、マウスをポイントするとその施設の画像がご覧いただけます。


担当取扱い店舗情報

取扱い店舗画像
戸建エース / (株)アップデート不動産
TEL: 080-7289-9376
所在地: 新潟県長岡市古正寺3丁目116
交通:
営業時間: 10:00~17:00/定休日:水曜日 木曜日
免許番号: 新潟県知事(2)第5484号 この会社の情報を詳しく見る
所属団体名: 新潟県宅地建物取引業協会 長岡支部
取引態様: 専任
ホームページ: https://update-estate.com/