1
物件掲載企業数:
295
社
|賃貸物件:
3,291
件|売買物件:
3,305
件|今週の登録物件:
341
件
閲覧中のブラウザ(インターネットエクスプローラー)は非推奨ブラウザです。
物件が正しく表示されなかったり、正しく検索されない場合があります。最新のブラウザ(Google Chrome・Edgeなど)にてご利用お願いいたします。
Google Chrome
Microsoft Edge
アパート・マンション・一戸建て
駐車場
貸土地
店舗
事務所
倉庫・工場
新築分譲マンション
中古マンション
新築一戸建て
中古一戸建て
売土地・分譲地
その他(投資物件など)
マンション
一戸建て
土地
ホーム
>
検索方法選択
>
ランドマーク指定
> 物件一覧
全エリア
の
中古一戸建て
一覧
712件
該当しました。
<前のページ
10
11
12
13
14
15
16
17
18
19
20
次のページ>
表示切替:
一覧表示
/
地図表示
並び替え:
指定なし
新着順
価格が安い順
価格が高い順
画像
物件名/所在地/取扱店
詳細
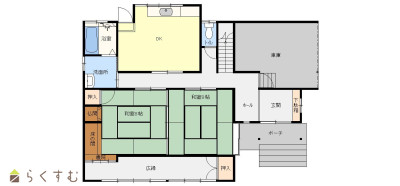
屋根融雪、敷地内融雪設備あり!雪下ろし不要!車庫付物件になります!いつでも内覧可能!
脇野町 7DK 前面道路融雪あり 敷地内 融雪あり
新潟県長岡市脇野町55
ハウスドゥ 長岡中央店
価格
:
6,500,000
円
土地面積
:435㎡ /131.58坪
建物面積
:197.16㎡ /59.64坪
間取り
:7LDK
築年月
:1981年7月
【見附駅まで徒歩約3分!交通利便性良好な立地】■前面道路6m幅員で消雪パイプ付■シャッター付ガレージ1台分有■部屋数豊富なため家族の人数が多い世帯にオススメ
見附市本所 売家
新潟県見附市本所2丁目7-23
新潟土地建物販売センター 株式会社
価格
:
6,500,000
円
土地面積
:231.43㎡ /70坪
建物面積
:168.89㎡ /51.08坪
間取り
:5LDK
築年月
:1985年10月
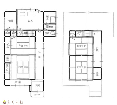
居宅付きの店舗・倉庫・作業場に活用可能な物件です!
柏崎市槇原町 店舗・事務所倉庫併用住宅
新潟県柏崎市槇原町880-1,880-2
リンクス.プランニング合同会社
価格
:
6,500,000
円
土地面積
:550.42㎡ /166.5坪
建物面積
:266.31㎡ /80.55坪
間取り
:10DK
築年月
:1979年7月
仲介手数料不要!価格730万→650万にしました。
米山台1丁目2世帯住宅
新潟県柏崎市米山台1丁目8-4
柏越建設 株式会社
価格
:
6,500,000
円
土地面積
:270.7㎡ /81.88坪
建物面積
:154.96㎡ /46.87坪
間取り
:5LDK
築年月
:1990年9月
田舎暮らしにおすすめです。
小島谷中古住宅
新潟県長岡市小島谷3477-1
ふどうさんの相談所 (ライフデザイン合同会社 イオン長岡店)
価格
:
6,500,000
円
土地面積
:239.84㎡ /72.55坪
建物面積
:147.04㎡ /44.47坪
間取り
:7DK
築年月
:1989年7月
3LDKのコンパクトな高床3階建て
長岡市小国町武石 高床3階建て住宅
新潟県長岡市小国町武石138-23
ブレイン・リアルエステート合同会社
価格
:
6,500,000
円
土地面積
:443.92㎡ /134.28坪
建物面積
:172.27㎡ /52.11坪
間取り
:3DK
築年月
:1997年3月
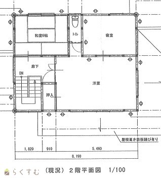
見附駅徒歩圏の中古住宅です!
見附市本所2丁目 中古住宅
新潟県見附市本所2-7-23
ブレイン・リアルエステート合同会社
価格
:
6,500,000
円
土地面積
:231.43㎡ /70坪
建物面積
:168.89㎡ /51.08坪
間取り
:4LDK
築年月
:1985年10月
◆戸建て◆三条市田屋
新潟県三条市田屋663番、664番1、665番1、666番1
株式会社 ユタカ不動産
価格
:
6,500,000
円
土地面積
:1,528.75㎡ /462.44坪
建物面積
:144.05㎡ /43.57坪
間取り
:5LDK
築年月
:1998年10月
大きな敷地に大きな建物が魅力!大家族様や庭・土いじりをされたい方大歓迎です☆彡
浦 売住宅☆彡
新潟県長岡市浦6430番地1
髙頭不動産 株式会社
価格
:
6,600,000
円
土地面積
:682.87㎡ /206.56坪
建物面積
:202.99㎡ /61.4坪
間取り
:9DK
築年月
:1954年4月
◆R8.1.20価格改定しました◆住居兼事務所!角地!長岡駅まで徒歩約20分!
西千手1丁目 住居兼事務所
新潟県長岡市西千手1-2-20
ハウスドゥ 長岡中央店
価格
:
6,800,000
円
土地面積
:163.51㎡ /49.46坪
建物面積
:160.85㎡ /48.65坪
間取り
:5LDK
築年月
:1968年12月
価格改定しました
長岡市中興野 売住宅
新潟県長岡市中興野408-5
嵐南エステート 株式会社
価格
:
6,800,000
円
土地面積
:155.38㎡ /47坪
建物面積
:102.67㎡ /31.05坪
間取り
:5LDK
築年月
:1987年11月
コンビニまで徒歩約9分・スーパーまで徒歩約11分
新組町 中古住宅 敷地246坪
新潟県長岡市新組町534-1
株式会社 金井不動産
価格
:
6,800,000
円
土地面積
:815.95㎡ /246.82坪
建物面積
:196.73㎡ /59.51坪
間取り
:5DK
築年月
:1975年5月
インナーガレージ、屋根ステンレス、建物程度良好(^^♪
幸町中古住宅
新潟県上越市幸町6-28
日成商事株式会社
価格
:
6,800,000
円
土地面積
:229.73㎡ /69.49坪
建物面積
:150.7㎡ /45.58坪
間取り
:5DK
築年月
:1986年8月
住居 兼 事務所の一戸建てです
西千手 売事務所 兼 居宅
新潟県長岡市西千手1丁目2-20
株式会社 悠久不動産
価格
:
6,800,000
円
土地面積
:163.51㎡ /49.46坪
建物面積
:160.85㎡ /48.65坪
間取り
:5LDK
築年月
:1968年12月
広い土地と広いお家でファミリー向けです!
木島 売家
新潟県上越市木島769-1
上越宅地販売株式会社
価格
:
6,800,000
円
土地面積
:1,654.88㎡ /500.6坪
建物面積
:182.34㎡ /55.15坪
間取り
:6DK
築年月
:1978年7月
スーパー・コンビニ・ドラックストアまで近く、生活利便性良好!
上越市春日新田2丁目
新潟県上越市春日新田2丁目9番19号
リアルエステイトZest
価格
:
6,980,000
円
土地面積
:322.7㎡ /97.61坪
建物面積
:119.76㎡ /36.22坪
間取り
:5LDK
築年月
:1973年8月
見附市内が一望できる屋上のある中古店舗です。店舗奥に住居付!住み込み可能物件です。
見附市細越1丁目 中古店舗住居付(旧割烹赤坂家)
新潟県見附市細越1丁目3番地12号
新潟化成株式会社
価格
:
7,000,000
円
土地面積
:270.31㎡ /81.76坪
建物面積
:431.69㎡ /130.58坪
間取り
:12DK
築年月
:1977年11月
国道に面し、アクセスの良い物件です。
栃尾大野町中古住宅
新潟県長岡市栃尾大野町4丁目4-5
髙頭不動産 株式会社
価格
:
7,000,000
円
土地面積
:501.34㎡ /151.65坪
建物面積
:120.47㎡ /36.44坪
間取り
:7K
築年月
:1979年2月
☆需要が高い直江津地域の中古住宅です☆
国府3丁目
新潟県上越市国府3丁目4-30
有限会社田村家具店
価格
:
7,000,000
円
土地面積
:271.57㎡ /82.14坪
建物面積
:121.08㎡ /36.62坪
間取り
:5DK
築年月
:1979年6月
高床3階建ての住宅です、内覧予約お待ちしています
長岡市西川口中古住宅
新潟県長岡市西川口2401-1
ブレイン・リアルエステート合同会社
価格
:
7,000,000
円
土地面積
:478.2㎡ /144.65坪
建物面積
:211.13㎡ /63.86坪
間取り
:5LDK
築年月
:1991年1月
表示切替:
一覧表示
/
地図表示
並び替え:
指定なし
新着順
価格が安い順
価格が高い順
価格は物件の代金総額を表示しており、消費税が課税される場合は税込み価格です。
建築条件付き土地価格には、建物価格は含まれません。
物件情報の詳細については取り扱い店までお問い合わせください。
完成予想図はいずれも外構・植栽・外観等実際のものと異なることが多少あります。
CG合成の画像の場合実際と異なることが多少あります。
完成後1年以上経過したものが未入居として記載される場合があります。ご了承ください。
販売予定物件は販売開始するまで契約または予約の申し込みはできません。
ご購入の場合物件詳細や契約内容についてご自身で十分ご確認いただきますようよろしく御願いします。
建築条件付きとは…その土地に建築する建物の建築請負契約が、一定期間内に成立することを条件として売買される土地のことをいいます。請負契約成立に向けて設計プランを協議するため、土地購入者が希望する建物にするために一定の期間(概ね3ヶ月)交渉期間としその期間内に希望するプランが実現できたかどうかによって土地の購入の判断をします。納得のいくプランができず請負契約が未成立になった場合、土地契約にかかった代金(手付金など)は、すべて返却されます。
712件
該当しました。
<前のページ
10
11
12
13
14
15
16
17
18
19
20
次のページ>
0件
がマッチ
基本条件
物件種別
中古一戸建て
価格
下限なし
100万円
250万円
500万円
1000万円
1500万円
2000万円
2500万円
3000万円
3500万円
4000万円
4500万円
5000万円
5500万円
6000万円
6500万円
7000万円
7500万円
8000万円
8500万円
9000万円
9500万円
1億円
~
上限なし
100万円
250万円
500万円
1000万円
1500万円
2000万円
2500万円
3000万円
3500万円
4000万円
4500万円
5000万円
5500万円
6000万円
6500万円
7000万円
7500万円
8000万円
8500万円
9000万円
9500万円
1億円
間取り
ワンルーム
1K
1DK
1LDK
2K
2DK
2LDK
3K
3DK
3LDK
4K
4DK
4LDK以上
専有面積
下限なし
20㎡
30㎡
40㎡
50㎡
60㎡
70㎡
80㎡
90㎡
100㎡
~
上限なし
20㎡
30㎡
40㎡
50㎡
60㎡
70㎡
80㎡
90㎡
100㎡
土地面積
下限なし
60㎡ (約18坪)
70㎡ (約21坪)
80㎡ (約24坪)
90㎡ (約27坪)
100㎡ (約30坪)
110㎡ (約33坪)
120㎡ (約36坪)
130㎡ (約39坪)
140㎡ (約42坪)
150㎡ (約45坪)
160㎡ (約48坪)
170㎡ (約51坪)
180㎡ (約54坪)
190㎡ (約57坪)
200㎡ (約60坪)
250㎡ (約75坪)
300㎡ (約90坪)
~
上限なし
60㎡ (約18坪)
70㎡ (約21坪)
80㎡ (約24坪)
90㎡ (約27坪)
100㎡ (約30坪)
110㎡ (約33坪)
120㎡ (約36坪)
130㎡ (約39坪)
140㎡ (約42坪)
150㎡ (約45坪)
160㎡ (約48坪)
170㎡ (約51坪)
180㎡ (約54坪)
190㎡ (約57坪)
200㎡ (約60坪)
250㎡ (約75坪)
300㎡ (約90坪)
建物面積
下限なし
60㎡ (約18坪)
70㎡ (約21坪)
80㎡ (約24坪)
90㎡ (約27坪)
100㎡ (約30坪)
110㎡ (約33坪)
120㎡ (約36坪)
130㎡ (約39坪)
140㎡ (約42坪)
150㎡ (約45坪)
160㎡ (約48坪)
170㎡ (約51坪)
180㎡ (約54坪)
190㎡ (約57坪)
200㎡ (約60坪)
250㎡ (約75坪)
300㎡ (約90坪)
~
上限なし
60㎡ (約18坪)
70㎡ (約21坪)
80㎡ (約24坪)
90㎡ (約27坪)
100㎡ (約30坪)
110㎡ (約33坪)
120㎡ (約36坪)
130㎡ (約39坪)
140㎡ (約42坪)
150㎡ (約45坪)
160㎡ (約48坪)
170㎡ (約51坪)
180㎡ (約54坪)
190㎡ (約57坪)
200㎡ (約60坪)
250㎡ (約75坪)
300㎡ (約90坪)
坪単価
下限なし
5万円
10万円
15万円
20万円
25万円
30万円
35万円
40万円
45万円
50万円
~
上限なし
5万円
10万円
15万円
20万円
25万円
30万円
35万円
40万円
45万円
50万円
築年数
指定なし
新築
3年以内
5年以内
10年以内
15年以内
20年以内
方位
北
北東
東
南東
南
南西
西
北西
おすすめ条件
ペット可・相談
楽器可・相談
情報公開日
指定なし
本日
3日以内
1週間以内
1ヶ月以内
0件
がマッチ
人気のあるこだわり条件
角地(123)
高台に立地(35)
日当り良好(354)
閑静な住宅街(380)
スーパー近く(161)
長期優良住宅(4)
設計住宅性能評価付(4)
耐震構造(9)
フラット35S適合(2)
瑕疵担保保険対象(10)
耐震基準適合証明書あり(4)
新築時図面あり(63)
修繕記録あり(10)
BELS/省エネ基準適合認定建物(3)
インスペクション報告書あり(6)
建物確認・完了検査済証あり(29)
適合状況調査報告書あり(1)
瑕疵担保保険付き(18)
LDK15帖以上(163)
全室フローリング(71)
築10年以内(40)
築15年以内(22)
駐車2台可能(245)
駐車3台以上可能(281)
駐車場融雪設備あり(33)
南向き(159)
TVインターホン(147)
複層ガラス(97)
デインプルキー(38)
システムキッチン(262)
カウンターキッチン(80)
IHクッキングヒーター(119)
浄水器(46)
食器洗浄乾燥機(68)
3口コンロ(171)
2口コンロ(26)
ガスコンロ設置可能(34)
ガスコンロ設置済み(54)
追いだき機能付き(312)
浴室乾燥機(65)
バス1坪以上(279)
温水洗浄便座(338)
トイレ2か所以上(255)
シャワー付き洗面台(216)
エアコンあり(259)
床暖房(17)
24時間換気システム(42)
堀ごたつ(3)
全室エアコン(11)
オール電化(55)
太陽光発電システム(7)
省エネ給湯機(59)
ウッドデッキ・テラス(24)
ルーフバルコニー(15)
都市ガス(460)
LPG(94)
上水道(601)
下水道(526)
浄化槽(64)
バリアフリー(26)
その他水道(4)
ウォークインクローゼット(102)
全居室収納あり(159)
床下収納(46)
シューズBOX(162)
シューズインクローゼット(21)
BS端子(18)
CS(5)
CATV(6)
LAN端子(3)
内装リフォーム済み(91)
外装リフォーム済み(67)
リノベーション物件(49)
2世帯向き(37)
即引き渡し可能(145)
別荘(72)
田舎暮らし(170)
事業向け(55)
条件に合った物件数は、
0 件
です。
立地・環境
角地(123)
高台に立地(35)
日当り良好(354)
閑静な住宅街(380)
スーパー近く(161)
構造・工法・仕様
長期優良住宅(4)
設計住宅性能評価付(4)
耐震構造(9)
フラット35S適合(2)
瑕疵担保保険対象(10)
耐震基準適合証明書あり(4)
新築時図面あり(63)
修繕記録あり(10)
BELS/省エネ基準適合認定建物(3)
インスペクション報告書あり(6)
建物確認・完了検査済証あり(29)
適合状況調査報告書あり(1)
瑕疵担保保険付き(18)
面積・間取り
LDK15帖以上(163)
全室フローリング(71)
築年
築10年以内(40)
築15年以内(22)
駐車・駐輪
駐車2台可能(245)
駐車3台以上可能(281)
駐車場融雪設備あり(33)
採光・向き
南向き(159)
管理・防犯
TVインターホン(147)
複層ガラス(97)
デインプルキー(38)
キッチン
システムキッチン(262)
カウンターキッチン(80)
IHクッキングヒーター(119)
浄水器(46)
食器洗浄乾燥機(68)
3口コンロ(171)
2口コンロ(26)
ガスコンロ設置可能(34)
ガスコンロ設置済み(54)
浴室
追いだき機能付き(312)
浴室乾燥機(65)
バス1坪以上(279)
トイレ
温水洗浄便座(338)
トイレ2か所以上(255)
洗面所
シャワー付き洗面台(216)
冷暖房・空調
エアコンあり(259)
床暖房(17)
24時間換気システム(42)
堀ごたつ(3)
全室エアコン(11)
光熱設備
オール電化(55)
太陽光発電システム(7)
省エネ給湯機(59)
バルコニー・テラス
ウッドデッキ・テラス(24)
ルーフバルコニー(15)
室内仕様・設備
都市ガス(460)
LPG(94)
上水道(601)
下水道(526)
浄化槽(64)
バリアフリー(26)
その他水道(4)
収納
ウォークインクローゼット(102)
全居室収納あり(159)
床下収納(46)
シューズBOX(162)
シューズインクローゼット(21)
電気設備
BS端子(18)
CS(5)
CATV(6)
LAN端子(3)
リフォーム
内装リフォーム済み(91)
外装リフォーム済み(67)
リノベーション物件(49)
費用・入居・引渡・条件
2世帯向き(37)
即引き渡し可能(145)
その他
別荘(72)
田舎暮らし(170)
事業向け(55)
条件に合った物件数は、
0 件
です。
アパート・マンション・一戸建て
/
駐車場
/
貸土地
/
店舗
/
事務所
/
倉庫・工場
新築分譲マンション
/
中古マンション
/
新築一戸建て
/
中古一戸建て
/
売土地
/
投資物件・その他
マンション
/
一戸建て
/
土地
建てる・リフォーム
物件掲載企業一覧
掲載希望の企業様へ
新潟の不動産情報サイト
サービス利用規約
運営会社
サイトマップ
プライバシーポリシー
お問い合わせ
リンク
Copyright (C)
株式会社 コモンライフ・コーポレーション
. All Rights Reserved.
新潟・長岡・柏崎の賃貸・マンション・アパート・住宅の不動産物件情報サイト
不動産検索サイト「らくすむ」及び関連サイトに記載の不動産情報は、会員規約に則り、情報提供会社様の責任のもとに発信されております。
不動産の賃借、購入に関しては賃借者、購入者ご自身が情報を確認され、会社企業様から説明を受けられたうえで判断をお願いいたします。
不動産検索サイト「らくすむ」及び関連サイトに記載の不動産情報、写真、デザイン、コンテンツなどの
無断転載・転用・複製
など禁止します。