物件掲載企業数:301|賃貸物件:3,261件|売買物件:3,251件|今週の登録物件:245
閲覧中のブラウザ(インターネットエクスプローラー)は非推奨ブラウザです。
物件が正しく表示されなかったり、正しく検索されない場合があります。最新のブラウザ(Google Chrome・Edgeなど)にてご利用お願いいたします。
  

新潟県長岡市宮栄1丁目15-8 中古一戸建て 5DK 5,300,000円の物件情報

物件名/所在地 詳細 価格
売家 宮栄1丁目
新潟県長岡市宮栄1丁目15-8
  • 土地面積
    :158㎡ /47.79坪
  • 建物面積
    :125.87㎡ /38.07坪
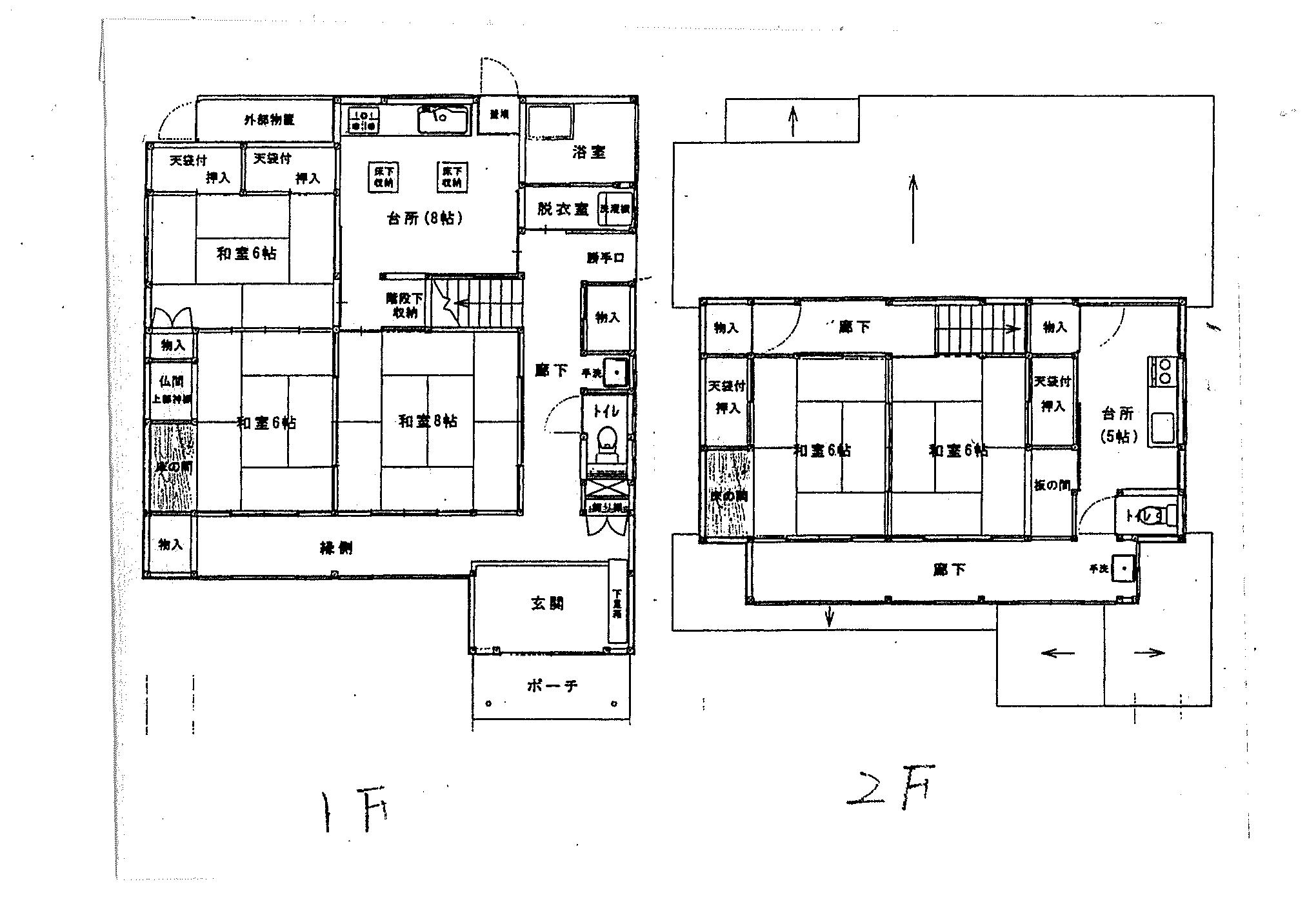
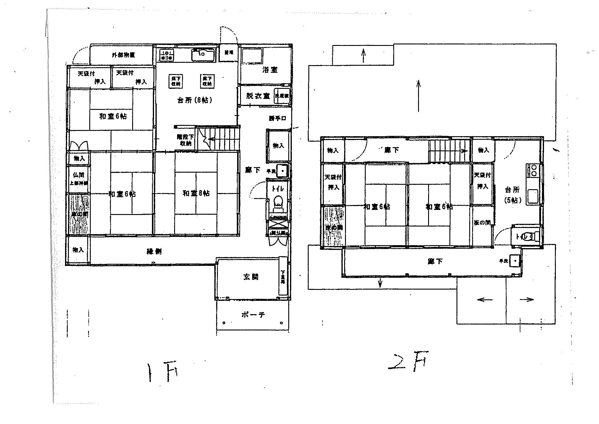
  • 間取り
    :5DK
  • 築年月
    :1972年1月
5,300,000
  • 売家 宮栄1丁目
    株式会社 金井不動産
  • この物件を問い合わせる/無料
  • TEL: 0120-35-3901

物件画像

外観 間取り
物件画像
※画像クリックで拡大表示
外観
物件画像
※画像クリックで拡大表示
詳細画像


物件概要

物件コード 00014-200022
物件名 売家 宮栄1丁目
交通 駅:平島バス停徒歩6分・宮内駅徒歩11分、バス:平島から徒歩2分
物件所在地 新潟県長岡市宮栄1丁目15-8
物件種別 中古一戸建て
構造 木造 階建 地上2階建
建ぺい率/容積率 60%/200%
建物面積 1階 81.81㎡/ 2階 44.06㎡/ 計 125.87㎡ /38.07坪
土地面積 158㎡ /47.79坪
築年月 1972年1月(築54年)
入居(引き渡し)時期 相談
用途地域 第1種住居地域 地目
都市計画 - 学校区 宮内小学校・宮内中学校
形状 - 道路 -
私道 幅員4m その他の制限
  • 売家 宮栄1丁目
    株式会社 金井不動産
  • この物件を問い合わせる/無料
  • TEL: 0120-35-3901

物件詳細情報

所在階/階数 - 号室 -
販売価格 5,300,000円 方位
間取り 5DK (和室:8畳、6畳、6畳、6畳、6畳)
DK8
専有面積 - バルコニー面積 -
その他面積 - 駐車場 -
管理費 - 修繕積立金 -
現況 空家
仲介手数料 なし
利用制限 -
設備 都市ガス/公営水道/電気
取引態様 一般
備考 -
取り扱い会社

株式会社 金井不動産

新潟県長岡市要町3-1-26

情報登録日 2012/11/26 次回更新予定日 2026/06/06
取引条件有効期限 -
  • 売家 宮栄1丁目
    株式会社 金井不動産
  • この物件を問い合わせる/無料
  • TEL: 0120-35-3901

この物件の地図・周辺情報・行政情報

この物件の周辺情報・行政情報を詳しく見る
【周辺情報】
物件の近くにあるコンビニや銀行・学校など、アイコン付のマップで詳しく表示できます!
【行政情報】
水道料や下水道料・ガス料金など、暮らしに関係のある情報を表示しています。

担当取扱い店舗情報

取扱い店舗画像
株式会社 金井不動産
TEL: 0120-35-3901
所在地: 新潟県長岡市要町3-1-26
交通: 長岡駅大手口①バス乗場より乗車~溝橋下車徒歩約4分
営業時間: 9:30~18:00/定休日:日曜・祝祭日
免許番号: 新潟県知事(16)第495号 この会社の情報を詳しく見る
所属団体名: 新潟県宅地建物取引業協会 長岡支部
取引態様: 一般
ホームページ: http://www.3901.com