物件掲載企業数:299|賃貸物件:3,049件|売買物件:3,229件|今週の登録物件:343
閲覧中のブラウザ(インターネットエクスプローラー)は非推奨ブラウザです。
物件が正しく表示されなかったり、正しく検索されない場合があります。最新のブラウザ(Google Chrome・Edgeなど)にてご利用お願いいたします。
  

新潟県柏崎市谷根698 中古一戸建て 7DK 5,000,000円の物件情報

日本らしい風情が感じられる谷根で田舎暮らしをしてみませんか

物件名/所在地 詳細 価格
柏崎市谷根 中古戸建て
新潟県柏崎市谷根698
  • 土地面積
    :756.95㎡ /228.97坪
  • 建物面積
    :149.92㎡ /45.35坪
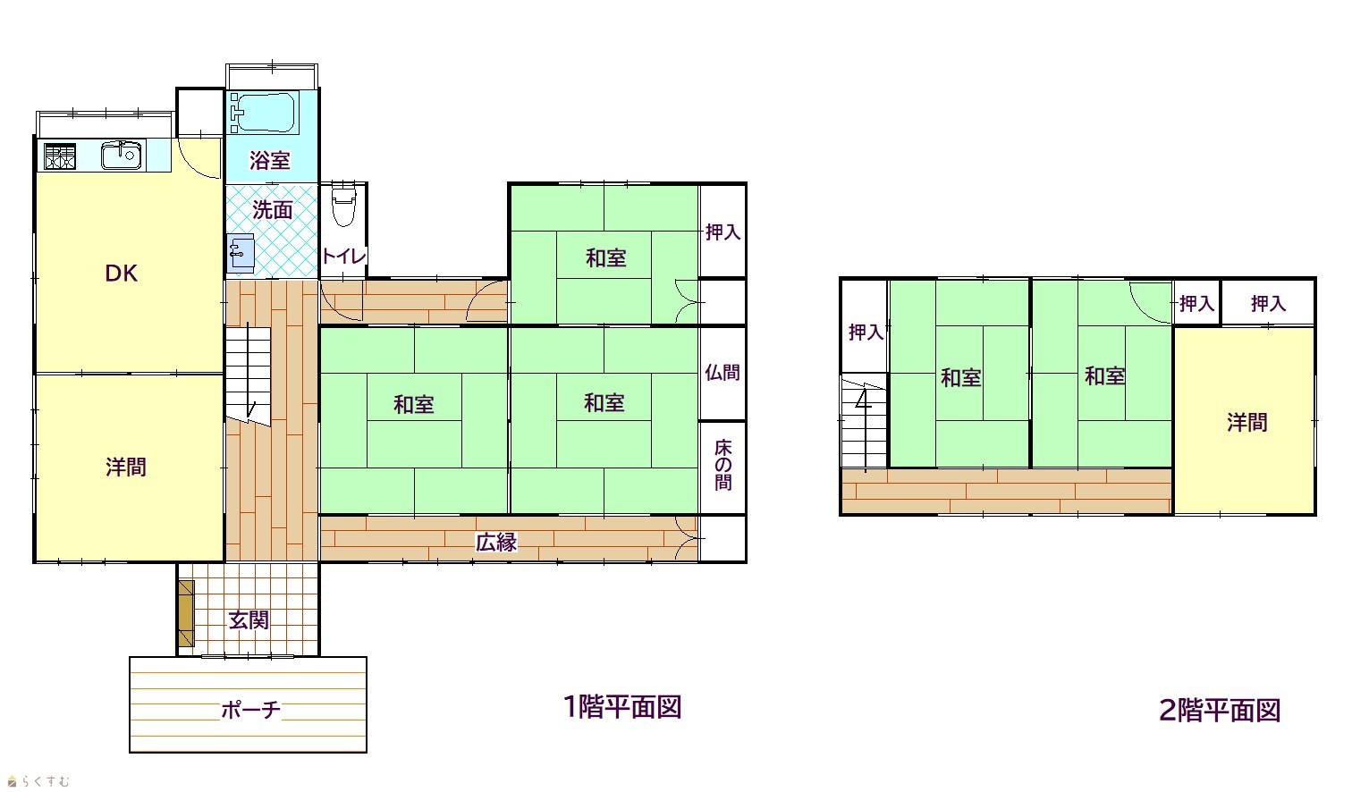
  • 間取り
    :7DK
  • 築年月
    :1981年12月
5,000,000
  • 柏崎市谷根 中古戸建て
    田中不動産株式会社
  • この物件を問い合わせる/無料
  • TEL: 025-512-5001

物件画像

外観 間取り
物件画像
※画像クリックで拡大表示
外観
物件画像
※画像クリックで拡大表示
間取り
詳細画像


物件概要

米山登山道谷根コースまで約1200♪谷根川が長閑に流れ、田園風景が広がる別荘としてもおすすめの避暑地です。4月~5月が見頃の花桃や谷根ダムなど、自然あふれるエリアです。
物件コード 00297-200069
物件名 柏崎市谷根 中古戸建て
交通 駅:信越線 青海川駅から徒歩43分
物件所在地 新潟県柏崎市谷根698
物件種別 中古一戸建て
構造 木造 階建 地上2階建
建ぺい率/容積率 -
建物面積 計 149.92㎡ /45.35坪
土地面積 756.95㎡ /228.97坪
築年月 1981年12月(築44年)
入居(引き渡し)時期 相談
用途地域 無指定 地目 宅地
都市計画 都市計画区域外 学校区 鯨波小学校(2,954m)・第三中学校(4,538m)
形状 - 道路 東:公道
私道 - その他の制限 -
  • 柏崎市谷根 中古戸建て
    田中不動産株式会社
  • この物件を問い合わせる/無料
  • TEL: 025-512-5001

物件詳細情報

所在階/階数 - 号室 -
販売価格 5,000,000円 方位 指定なし
間取り 7DK
専有面積 - バルコニー面積 -
その他面積 - 駐車場 -
管理費 - 修繕積立金 -
現況 空家
仲介手数料 330,000円
利用制限 -
設備 閑静な住宅街、システムキッチン、LPG、上水道、下水道、別荘、田舎暮らし
取引態様 専属専任
備考 ※敷地内に未登記建物(物置約77㎡)有
※給湯器故障中の為、使用不可
※現況でのお引渡しとなります。
取り扱い会社

田中不動産株式会社

新潟県上越市土橋1154-1ワグリオフィスA

情報登録日 2026/02/26 次回更新予定日 2026/04/23
取引条件有効期限 2026/05/31
  • 柏崎市谷根 中古戸建て
    田中不動産株式会社
  • この物件を問い合わせる/無料
  • TEL: 025-512-5001

この物件の地図・周辺情報・行政情報

この物件の周辺情報・行政情報を詳しく見る
【周辺情報】
物件の近くにあるコンビニや銀行・学校など、アイコン付のマップで詳しく表示できます!
【行政情報】
水道料や下水道料・ガス料金など、暮らしに関係のある情報を表示しています。
柏崎市 谷根診療所(病院)まで220m
柏崎上米山郵便局(郵便局)まで250m

※カメラのアイコンがある場合は、マウスをポイントするとその施設の画像がご覧いただけます。


担当取扱い店舗情報

取扱い店舗画像
田中不動産株式会社
TEL: 025-512-5001
所在地: 新潟県上越市土橋1154-1ワグリオフィスA
交通: 妙高はねうまライン 高田駅
営業時間: 9:00~18:00/定休日:土・日・祝
免許番号: 大臣免許(2)第9635号 この会社の情報を詳しく見る
所属団体名: 公社 新潟県宅地建物取引協会 上越支部
取引態様: 専属専任
ホームページ: http://www.tanakafudousan-inc.co.jp