1
物件掲載企業数:
295
社
|賃貸物件:
3,620
件|売買物件:
3,318
件|今週の登録物件:
253
件
閲覧中のブラウザ(インターネットエクスプローラー)は非推奨ブラウザです。
物件が正しく表示されなかったり、正しく検索されない場合があります。最新のブラウザ(Google Chrome・Edgeなど)にてご利用お願いいたします。
Google Chrome
Microsoft Edge
アパート・マンション・一戸建て
駐車場
貸土地
店舗
事務所
倉庫・工場
新築分譲マンション
中古マンション
新築一戸建て
中古一戸建て
売土地・分譲地
その他(投資物件など)
マンション
一戸建て
土地
ホーム
>
検索方法選択
>
エリア選択
> 物件一覧
全エリア
の
中古一戸建て
一覧
699件
該当しました。
<前のページ
23
24
25
26
27
28
29
30
31
32
33
次のページ>
表示切替:
一覧表示
/
地図表示
並び替え:
指定なし
新着順
価格が安い順
価格が高い順
画像
物件名/所在地/取扱店
詳細
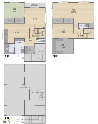
【駐車4台分のインナーガレージ・倉庫付き】二世帯におすすめのゆとりある邸宅 ■2階・3階にLDK×2 ■床暖・壁掛けパネルヒーター完備 ■学校・商業施設・国道近く
長岡市関原町 売家
新潟県長岡市関原町1丁目4578
新潟土地建物販売センター 株式会社
価格
:
19,800,000
円
土地面積
:390.73㎡ /118.19坪
建物面積
:324.38㎡ /98.12坪
間取り
:6LDK
築年月
:1998年10月
東栄3戸建
新潟県長岡市東栄3丁目1番32号
株式会社 悠久不動産
価格
:
19,800,000
円
土地面積
:339㎡ /102.54坪
建物面積
:126.96㎡ /38.4坪
間取り
:6LDK
築年月
:1982年9月
平島4LDK住宅!LDK19帖・各居室は8帖以上のゆったりとした間取です!駐車スペースは3台以上、前面道路は融雪道路で冬も安心です!
平島三丁目4LDK住宅
新潟県長岡市平島3-145-2
株式会社 和興不動産
価格
:
19,800,000
円
土地面積
:214.3㎡ /64.82坪
建物面積
:236.95㎡ /71.67坪
間取り
:4LDK
築年月
:1987年12月
【価格改定しました!】 ■商業施設近くに建つ、インナーガレージ+カーポート付き住宅! ■インナーガレージ+カーポートで駐車4台以上! ■18帖の広々LDKに6畳の小上りがある開放的な空間♪ ■スーパーなど商業施設まで徒歩圏内の好立地!
長岡市東栄2丁目
新潟県長岡市東栄2丁目6-9
ハーバーエステート株式会社
価格
:
19,980,000
円
土地面積
:153.31㎡ /46.37坪
建物面積
:178.85㎡ /54.1坪
間取り
:5LDK
築年月
:2010年2月
【見学会開催】【リフォーム中】 車庫付き駐車場2台駐車可能。前面道路の幅員6m。運転が苦手な方でも楽々駐車。
小千谷市桜町
新潟県小千谷市桜町3320-47
株式会社 カチタス長岡店
価格
:
19,990,000
円
土地面積
:173.12㎡ /52.36坪
建物面積
:156.51㎡ /47.34坪
間取り
:4DK
築年月
:2000年3月
高田城址公園まで徒歩圏内♪充実した周辺環境♪教育施設も整った立地♪4台以上駐車可能♪
上越市南城町2丁目(南高田駅)2階建7DK
新潟県上越市南城町2丁目2-13
ハウスドゥ上越市役所前 カネヨ物産㈱
価格
:
20,000,000
円
土地面積
:603.85㎡ /182.66坪
建物面積
:205.9㎡ /62.28坪
間取り
:7DK
築年月
:1980年10月
スーパー、ホームセンター、お医者さんなど近隣に生活便利施設有り!
◆中古住宅◆三条市東本成寺
新潟県三条市東本成寺8-56
株式会社 ユタカ不動産
価格
:
20,000,000
円
土地面積
:1,001㎡ /302.8坪
建物面積
:259.71㎡ /78.56坪
間取り
:8DK
築年月
:1985年7月
糸魚川市南寺町3丁目 中古住宅
新潟県糸魚川市南寺町3丁目3−41
リノベ不動産上越西店
価格
:
20,000,000
円
土地面積
:127.98㎡ /38.71坪
建物面積
:87.77㎡ /26.55坪
間取り
:4LDK
築年月
:2013年7月
【見学会開催】 現況販売/年内入居可/新耐震適合/駐車3台可/庭スペースあり/市立 比角小学校徒歩17分/原信柏崎東店まで徒歩12分(約900m)周辺交通量少なめ/隣家との距離があり/対面キッチン/クリーニング済/
柏崎市北斗町
新潟県柏崎市北斗町3-1-1
株式会社 カチタス長岡店
価格
:
20,490,000
円
土地面積
:249.14㎡ /75.36坪
建物面積
:119.09㎡ /36.02坪
間取り
:4LDK
築年月
:2009年11月
■駅近4LDKの中古住宅。2台分のカーポート、エアコン4台付き。外物置と芝庭+ウッドデッキの充実したエクステリア。 ■北長岡駅まで徒歩約2分(160m) ■チャレンジャー北長岡店まで徒歩約6分(400m) ■新町 小学校まで徒歩約12分(850m)
長岡市城岡1丁目
新潟県長岡市城岡1丁目6-32
ハーバーエステート株式会社
価格
:
20,900,000
円
土地面積
:182.31㎡ /55.14坪
建物面積
:105.15㎡ /31.8坪
間取り
:4LDK
築年月
:2008年10月
【長岡市城岡】新価格2090万円! ■北長岡駅至近!カーポート・エアコン付きの4LDK住戸 ■通勤通学に便利♪北長岡駅まで徒歩約2分 ■全居室収納完備でお部屋がスッキリ片付きます ■チャレンジャーまで車で2分
長岡市城岡 戸建
新潟県長岡市城岡1丁目6-32
新潟土地建物販売センター 株式会社
価格
:
20,900,000
円
土地面積
:182.31㎡ /55.14坪
建物面積
:105.15㎡ /31.8坪
間取り
:4LDK
築年月
:2008年10月
【価格改定しました】2,240万円(R6.7.10)→2,090万円(R7.7.16)スーパー、最寄り駅まで徒歩圏内!4LDKの状態の良い住宅です!カーポート2台、他1台の駐車スペースがあり雪の日も安心です♪
城岡1丁目 売住宅
新潟県長岡市城岡1丁目6-32
髙頭不動産 株式会社
価格
:
20,900,000
円
土地面積
:182.31㎡ /55.14坪
建物面積
:105.15㎡ /31.8坪
間取り
:4LDK
築年月
:2008年10月
☆2026年2月リフォーム完了予定! ☆水まわり機器はすべて新品交換 ☆お手入れの楽なオールフローリング住宅 ☆内野駅まで徒歩4分 ☆小・中学校徒歩圏内 ☆LDKは3面採光21帖 ☆購入サポート有り
当社グループ物件!【リセットハウス】新潟市西区内野山手2
新潟県新潟市西区内野山手2-6-9
株式会社ハーツリアルエステート 新潟支店
価格
:
20,980,000
円
土地面積
:183.39㎡ /55.47坪
建物面積
:123.99㎡ /37.5坪
間取り
:4LDK
築年月
:1988年5月
☆2026年1月リフォーム完了予定! ☆国道7号線まで車で5分 ☆水まわり機器はすべて新品交換 ☆LDKは22.0帖の大空間 ☆食洗機・浴室乾燥機完備 ☆駐車は2台可!内1台はインナーガレージ♪☆購入サポート有り
当社グループ物件!【リセットハウス】新潟市中央区窪田町6
新潟県新潟市中央区窪田町6-358-4
株式会社ハーツリアルエステート 新潟支店
価格
:
20,980,000
円
土地面積
:165.28㎡ /49.99坪
建物面積
:173.55㎡ /52.49坪
間取り
:5LDK
築年月
:1978年7月
現況販売/年内入居可/新耐震適合/駐車2台可/前面道路幅員8.1m/庭スペースあり/市立 黒条小学校徒歩7分/カーポート付き/
長岡市天神町
新潟県長岡市天神町172-21
株式会社 カチタス長岡店
価格
:
20,990,000
円
土地面積
:200.29㎡ /60.58坪
建物面積
:137㎡ /41.44坪
間取り
:4LDK
築年月
:2003年3月
【幼稚園・学校・商業施設・バイパスが徒歩圏、本格的な和風庭園付き邸宅】 ■北東角地×前面道路6m、消雪パイプ有 ■敷地面積約102坪 ■敷地内には風情ある和風庭園
長岡市豊 戸建
新潟県長岡市豊1丁目7-12
新潟土地建物販売センター 株式会社
価格
:
21,000,000
円
土地面積
:338㎡ /102.24坪
建物面積
:203.33㎡ /61.5坪
間取り
:6LDK
築年月
:1983年7月
和と洋が調和する大空間邸宅 広い庭で日本の趣を楽しめる住まい
長岡市豊Bright中古戸建
新潟県長岡市豊1丁目7-12
有限会社 ブライトサクセス
価格
:
21,000,000
円
土地面積
:338㎡ /102.24坪
建物面積
:217.95㎡ /65.92坪
間取り
:6LDK
築年月
:1983年7月
ショッピングセンターまで徒歩圏内!バイパスへのアクセス良好!立派な庭のある、和式住宅!
豊1丁目 中古住宅
新潟県長岡市豊1丁目7-12
髙頭不動産 株式会社
価格
:
21,000,000
円
土地面積
:338㎡ /102.24坪
建物面積
:203.33㎡ /61.5坪
間取り
:6LDK
築年月
:1983年7月
価格改定 2400万→2100万円 パルス徒歩1分、原信徒歩3分など商業施設が至近距離の好立地。6LDKの和洋ミックスの風情ある広々とした庭園付き住宅です!
豊1丁目 売中古住宅
新潟県長岡市豊1丁目7番12号
有限会社 北日本不動産
価格
:
21,000,000
円
土地面積
:338㎡ /102.24坪
建物面積
:203.33㎡ /61.5坪
間取り
:6LDK
築年月
:1983年7月
【価格改定しました!】2,320万円(R7.5.2)→2,120万円(R7.10.16)【令和7年5月リフォーム完了!】リフォーム内容・・・クロス張替、リビング用エアコン新品、トイレ新品&2階新設、畳表替、建具交換、WIC新設、等★自社物件につき仲介手数料不要★原信新保店まで徒歩約8分★お気軽にお問い合わせください!
新保1丁目 売住宅
新潟県長岡市新保1丁目9-31
髙頭不動産 株式会社
価格
:
21,200,000
円
土地面積
:227.23㎡ /68.73坪
建物面積
:182.17㎡ /55.1坪
間取り
:3LDK
築年月
:1988年11月
表示切替:
一覧表示
/
地図表示
並び替え:
指定なし
新着順
価格が安い順
価格が高い順
価格は物件の代金総額を表示しており、消費税が課税される場合は税込み価格です。
建築条件付き土地価格には、建物価格は含まれません。
物件情報の詳細については取り扱い店までお問い合わせください。
完成予想図はいずれも外構・植栽・外観等実際のものと異なることが多少あります。
CG合成の画像の場合実際と異なることが多少あります。
完成後1年以上経過したものが未入居として記載される場合があります。ご了承ください。
販売予定物件は販売開始するまで契約または予約の申し込みはできません。
ご購入の場合物件詳細や契約内容についてご自身で十分ご確認いただきますようよろしく御願いします。
建築条件付きとは…その土地に建築する建物の建築請負契約が、一定期間内に成立することを条件として売買される土地のことをいいます。請負契約成立に向けて設計プランを協議するため、土地購入者が希望する建物にするために一定の期間(概ね3ヶ月)交渉期間としその期間内に希望するプランが実現できたかどうかによって土地の購入の判断をします。納得のいくプランができず請負契約が未成立になった場合、土地契約にかかった代金(手付金など)は、すべて返却されます。
699件
該当しました。
<前のページ
23
24
25
26
27
28
29
30
31
32
33
次のページ>
0件
がマッチ
基本条件
物件種別
中古一戸建て
価格
下限なし
100万円
250万円
500万円
1000万円
1500万円
2000万円
2500万円
3000万円
3500万円
4000万円
4500万円
5000万円
5500万円
6000万円
6500万円
7000万円
7500万円
8000万円
8500万円
9000万円
9500万円
1億円
~
上限なし
100万円
250万円
500万円
1000万円
1500万円
2000万円
2500万円
3000万円
3500万円
4000万円
4500万円
5000万円
5500万円
6000万円
6500万円
7000万円
7500万円
8000万円
8500万円
9000万円
9500万円
1億円
間取り
ワンルーム
1K
1DK
1LDK
2K
2DK
2LDK
3K
3DK
3LDK
4K
4DK
4LDK以上
専有面積
下限なし
20㎡
30㎡
40㎡
50㎡
60㎡
70㎡
80㎡
90㎡
100㎡
~
上限なし
20㎡
30㎡
40㎡
50㎡
60㎡
70㎡
80㎡
90㎡
100㎡
土地面積
下限なし
60㎡ (約18坪)
70㎡ (約21坪)
80㎡ (約24坪)
90㎡ (約27坪)
100㎡ (約30坪)
110㎡ (約33坪)
120㎡ (約36坪)
130㎡ (約39坪)
140㎡ (約42坪)
150㎡ (約45坪)
160㎡ (約48坪)
170㎡ (約51坪)
180㎡ (約54坪)
190㎡ (約57坪)
200㎡ (約60坪)
250㎡ (約75坪)
300㎡ (約90坪)
~
上限なし
60㎡ (約18坪)
70㎡ (約21坪)
80㎡ (約24坪)
90㎡ (約27坪)
100㎡ (約30坪)
110㎡ (約33坪)
120㎡ (約36坪)
130㎡ (約39坪)
140㎡ (約42坪)
150㎡ (約45坪)
160㎡ (約48坪)
170㎡ (約51坪)
180㎡ (約54坪)
190㎡ (約57坪)
200㎡ (約60坪)
250㎡ (約75坪)
300㎡ (約90坪)
建物面積
下限なし
60㎡ (約18坪)
70㎡ (約21坪)
80㎡ (約24坪)
90㎡ (約27坪)
100㎡ (約30坪)
110㎡ (約33坪)
120㎡ (約36坪)
130㎡ (約39坪)
140㎡ (約42坪)
150㎡ (約45坪)
160㎡ (約48坪)
170㎡ (約51坪)
180㎡ (約54坪)
190㎡ (約57坪)
200㎡ (約60坪)
250㎡ (約75坪)
300㎡ (約90坪)
~
上限なし
60㎡ (約18坪)
70㎡ (約21坪)
80㎡ (約24坪)
90㎡ (約27坪)
100㎡ (約30坪)
110㎡ (約33坪)
120㎡ (約36坪)
130㎡ (約39坪)
140㎡ (約42坪)
150㎡ (約45坪)
160㎡ (約48坪)
170㎡ (約51坪)
180㎡ (約54坪)
190㎡ (約57坪)
200㎡ (約60坪)
250㎡ (約75坪)
300㎡ (約90坪)
坪単価
下限なし
5万円
10万円
15万円
20万円
25万円
30万円
35万円
40万円
45万円
50万円
~
上限なし
5万円
10万円
15万円
20万円
25万円
30万円
35万円
40万円
45万円
50万円
築年数
指定なし
新築
3年以内
5年以内
10年以内
15年以内
20年以内
方位
北
北東
東
南東
南
南西
西
北西
おすすめ条件
ペット可・相談
楽器可・相談
情報公開日
指定なし
本日
3日以内
1週間以内
1ヶ月以内
0件
がマッチ
人気のあるこだわり条件
角地(128)
高台に立地(41)
日当り良好(348)
閑静な住宅街(378)
スーパー近く(156)
長期優良住宅(4)
耐震構造(7)
フラット35S適合(3)
瑕疵担保保険対象(9)
耐震基準適合証明書あり(2)
新築時図面あり(65)
修繕記録あり(9)
インスペクション報告書あり(6)
建物確認・完了検査済証あり(23)
瑕疵担保保険付き(7)
LDK15帖以上(161)
全室フローリング(62)
築10年以内(49)
築15年以内(24)
駐車2台可能(234)
駐車3台以上可能(281)
駐車場融雪設備あり(34)
南向き(163)
TVインターホン(139)
複層ガラス(89)
デインプルキー(38)
システムキッチン(255)
カウンターキッチン(73)
IHクッキングヒーター(116)
浄水器(23)
食器洗浄乾燥機(58)
3口コンロ(143)
2口コンロ(27)
ガスコンロ設置可能(30)
ガスコンロ設置済み(44)
追いだき機能付き(311)
浴室乾燥機(56)
バス1坪以上(252)
温水洗浄便座(330)
トイレ2か所以上(236)
シャワー付き洗面台(212)
エアコンあり(256)
床暖房(17)
24時間換気システム(33)
堀ごたつ(2)
全室エアコン(10)
オール電化(53)
太陽光発電システム(6)
省エネ給湯機(45)
ウッドデッキ・テラス(26)
ルーフバルコニー(17)
都市ガス(451)
LPG(93)
上水道(590)
下水道(513)
浄化槽(66)
バリアフリー(18)
その他水道(3)
ウォークインクローゼット(84)
全居室収納あり(138)
床下収納(40)
シューズBOX(153)
シューズインクローゼット(17)
BS端子(13)
CS(5)
CATV(4)
LAN端子(3)
内装リフォーム済み(79)
外装リフォーム済み(54)
リノベーション物件(34)
2世帯向き(43)
即引き渡し可能(153)
別荘(67)
田舎暮らし(167)
事業向け(49)
条件に合った物件数は、
0 件
です。
立地・環境
角地(128)
高台に立地(41)
日当り良好(348)
閑静な住宅街(378)
スーパー近く(156)
構造・工法・仕様
長期優良住宅(4)
耐震構造(7)
フラット35S適合(3)
瑕疵担保保険対象(9)
耐震基準適合証明書あり(2)
新築時図面あり(65)
修繕記録あり(9)
インスペクション報告書あり(6)
建物確認・完了検査済証あり(23)
瑕疵担保保険付き(7)
面積・間取り
LDK15帖以上(161)
全室フローリング(62)
築年
築10年以内(49)
築15年以内(24)
駐車・駐輪
駐車2台可能(234)
駐車3台以上可能(281)
駐車場融雪設備あり(34)
採光・向き
南向き(163)
管理・防犯
TVインターホン(139)
複層ガラス(89)
デインプルキー(38)
キッチン
システムキッチン(255)
カウンターキッチン(73)
IHクッキングヒーター(116)
浄水器(23)
食器洗浄乾燥機(58)
3口コンロ(143)
2口コンロ(27)
ガスコンロ設置可能(30)
ガスコンロ設置済み(44)
浴室
追いだき機能付き(311)
浴室乾燥機(56)
バス1坪以上(252)
トイレ
温水洗浄便座(330)
トイレ2か所以上(236)
洗面所
シャワー付き洗面台(212)
冷暖房・空調
エアコンあり(256)
床暖房(17)
24時間換気システム(33)
堀ごたつ(2)
全室エアコン(10)
光熱設備
オール電化(53)
太陽光発電システム(6)
省エネ給湯機(45)
バルコニー・テラス
ウッドデッキ・テラス(26)
ルーフバルコニー(17)
室内仕様・設備
都市ガス(451)
LPG(93)
上水道(590)
下水道(513)
浄化槽(66)
バリアフリー(18)
その他水道(3)
収納
ウォークインクローゼット(84)
全居室収納あり(138)
床下収納(40)
シューズBOX(153)
シューズインクローゼット(17)
電気設備
BS端子(13)
CS(5)
CATV(4)
LAN端子(3)
リフォーム
内装リフォーム済み(79)
外装リフォーム済み(54)
リノベーション物件(34)
費用・入居・引渡・条件
2世帯向き(43)
即引き渡し可能(153)
その他
別荘(67)
田舎暮らし(167)
事業向け(49)
条件に合った物件数は、
0 件
です。
アパート・マンション・一戸建て
/
駐車場
/
貸土地
/
店舗
/
事務所
/
倉庫・工場
新築分譲マンション
/
中古マンション
/
新築一戸建て
/
中古一戸建て
/
売土地
/
投資物件・その他
マンション
/
一戸建て
/
土地
建てる・リフォーム
物件掲載企業一覧
掲載希望の企業様へ
新潟の不動産情報サイト
サービス利用規約
運営会社
サイトマップ
プライバシーポリシー
お問い合わせ
リンク
Copyright (C)
株式会社 コモンライフ・コーポレーション
. All Rights Reserved.
新潟・長岡・柏崎の賃貸・マンション・アパート・住宅の不動産物件情報サイト
不動産検索サイト「らくすむ」及び関連サイトに記載の不動産情報は、会員規約に則り、情報提供会社様の責任のもとに発信されております。
不動産の賃借、購入に関しては賃借者、購入者ご自身が情報を確認され、会社企業様から説明を受けられたうえで判断をお願いいたします。
不動産検索サイト「らくすむ」及び関連サイトに記載の不動産情報、写真、デザイン、コンテンツなどの
無断転載・転用・複製
など禁止します。