物件掲載企業数:301|賃貸物件:3,261件|売買物件:3,251件|今週の登録物件:296
閲覧中のブラウザ(インターネットエクスプローラー)は非推奨ブラウザです。
物件が正しく表示されなかったり、正しく検索されない場合があります。最新のブラウザ(Google Chrome・Edgeなど)にてご利用お願いいたします。
  

長岡市与板町城山1-5-4 中古一戸建て 6DK 15,000,000円の物件情報

城山公園目の前で日当たり良好です。

物件名/所在地 詳細 価格
売住宅『与板町城山1』 他に家庭用菜園土地42坪付き
長岡市与板町城山1-5-4
  • 土地面積
    :425.07㎡ /128.58坪
  • 建物面積
    :146.15㎡ /44.21坪
  • 間取り
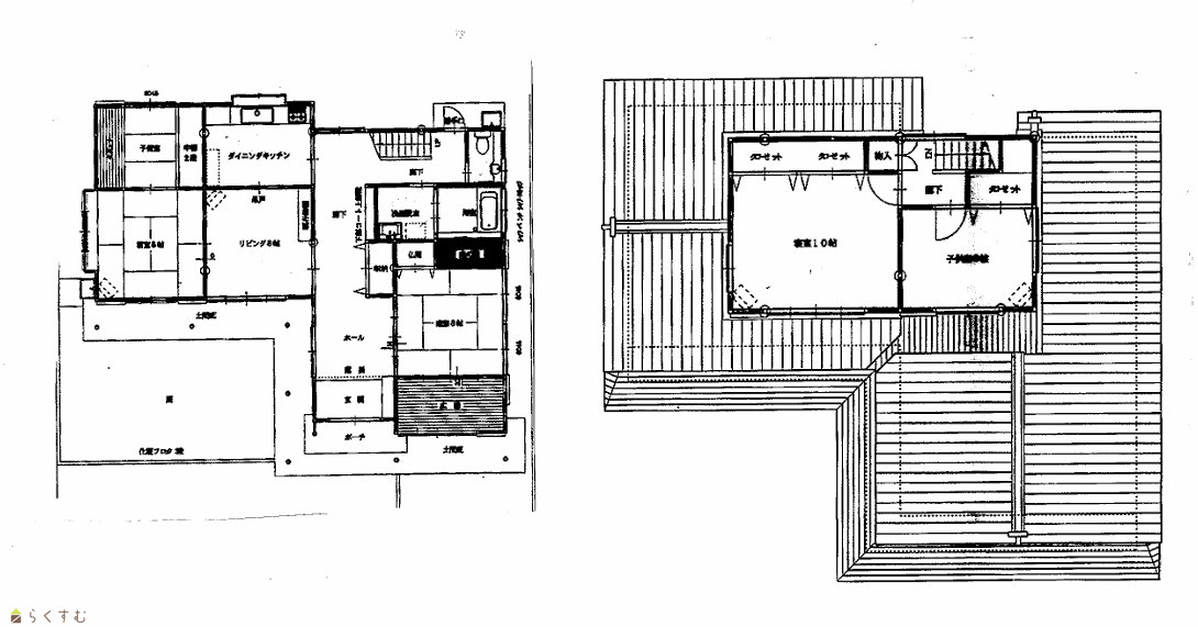
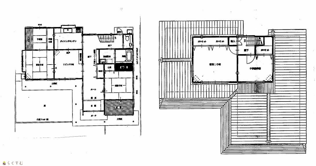
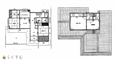
    :6DK
  • 築年月
    :1998年3月
15,000,000
  • 売住宅『与板町城山1』 他に家庭用菜園土地42坪付き
    ㈱スタッフサイトウ不動産部
  • この物件を問い合わせる/無料
  • TEL: 0258-24-0623

物件画像

外観 間取り
物件画像
※画像クリックで拡大表示
外観
物件画像
※画像クリックで拡大表示
間取り
詳細画像


物件概要

物件コード 00011-200340
物件名 売住宅『与板町城山1』 他に家庭用菜園土地42坪付き
交通 バス:城山団地から徒歩3分
物件所在地 長岡市与板町城山1-5-4
物件種別 中古一戸建て
構造 木造 階建 地上2階建
建ぺい率/容積率 60%/200%
建物面積 計 146.15㎡ /44.21坪
土地面積 425.07㎡ /128.58坪
築年月 1998年3月(築28年)
入居(引き渡し)時期 相談
用途地域 第1種住居地域 地目 宅地  (現状:宅地)
都市計画 市街化区域 学校区 与板小学校(1,411m)・与板中学校(1,366m)
形状 間口 17m × 奥行 25m 道路 与板178号線/与板179号線
私道 - その他の制限 -
  • 売住宅『与板町城山1』 他に家庭用菜園土地42坪付き
    ㈱スタッフサイトウ不動産部
  • この物件を問い合わせる/無料
  • TEL: 0258-24-0623

物件詳細情報

所在階/階数 - 号室 -
販売価格 15,000,000円 方位 -
間取り 6DK (和室:3畳、8畳、8畳) (洋室:8、10、6)
専有面積 - バルコニー面積 -
その他面積 - 駐車場 -
管理費 - 修繕積立金 -
現況 空家
仲介手数料 561,000円
利用制限 -
設備 角地、日当り良好、閑静な住宅街、駐車2台可能、駐車3台以上可能、南向き、追いだき機能付き、エアコンあり、都市ガス、上水道、下水道、田舎暮らし
取引態様 一般
備考 -
取り扱い会社

㈱スタッフサイトウ不動産部

新潟県長岡市蔵王2丁目4番17号

情報登録日 2026/04/17 次回更新予定日 2026/06/05
取引条件有効期限 2026/08/31
  • 売住宅『与板町城山1』 他に家庭用菜園土地42坪付き
    ㈱スタッフサイトウ不動産部
  • この物件を問い合わせる/無料
  • TEL: 0258-24-0623

この物件の地図・周辺情報・行政情報

この物件の周辺情報・行政情報を詳しく見る
【周辺情報】
物件の近くにあるコンビニや銀行・学校など、アイコン付のマップで詳しく表示できます!
【行政情報】
水道料や下水道料・ガス料金など、暮らしに関係のある情報を表示しています。
大光銀行 与板支店(銀行)まで740m

※カメラのアイコンがある場合は、マウスをポイントするとその施設の画像がご覧いただけます。


担当取扱い店舗情報

取扱い店舗画像
㈱スタッフサイトウ不動産部
TEL: 0258-24-0623
所在地: 新潟県長岡市蔵王2丁目4番17号
交通: JR北長岡駅
営業時間: 8:30~17:30/定休日:第2・4土曜・日曜・祭日
免許番号: 新潟県知事(2)第5364号 この会社の情報を詳しく見る
所属団体名: 新潟県宅地建物取引業協会 長岡支部
取引態様: 一般
ホームページ: http://hokuetsu-fudousan.com