物件掲載企業数:295|賃貸物件:3,617件|売買物件:3,316件|今週の登録物件:217
閲覧中のブラウザ(インターネットエクスプローラー)は非推奨ブラウザです。
物件が正しく表示されなかったり、正しく検索されない場合があります。最新のブラウザ(Google Chrome・Edgeなど)にてご利用お願いいたします。
  

新潟県上越市大町5丁目5-4 中古一戸建て 8DK 15,000,000円の物件情報

高田駅に近い住宅地!

物件名/所在地 詳細 価格
大町5丁目 売家
新潟県上越市大町5丁目5-4
  • 土地面積
    :507.74㎡ /153.59坪
  • 建物面積
    :312.7㎡ /94.59坪
  • 間取り
    :8DK
  • 築年月
    :1921年7月
15,000,000
  • 大町5丁目 売家
    上越宅地販売株式会社
  • この物件を問い合わせる/無料
  • TEL: 025-522-3838

物件画像

外観 間取り
物件画像
※画像クリックで拡大表示
現地写真
物件画像
※画像クリックで拡大表示
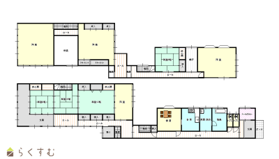
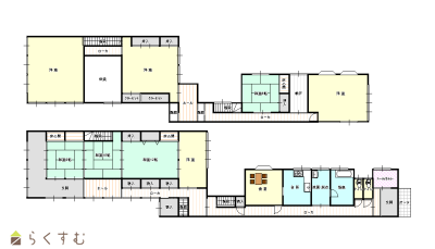
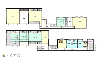
間取図
詳細画像


物件概要

150坪の広い土地と8DKの広い間取りでファミリー向けです!
物件コード 00308-200255
物件名 大町5丁目 売家
交通 駅:妙高はねうまライン 高田駅から徒歩9分、バス:本町六丁目から徒歩3分
物件所在地 新潟県上越市大町5丁目5-4
物件種別 中古一戸建て
構造 木造 階建 地上2階建
建ぺい率/容積率 80%/300%
建物面積 1階 176.57㎡/ 2階 136.13㎡/ 計 312.7㎡ /94.59坪
土地面積 507.74㎡ /153.59坪
築年月 1921年7月(築104年)
入居(引き渡し)時期 相談
用途地域 近隣商業地域 地目 宅地
都市計画 市街化区域 学校区 大町小学校(528m)・城北中学校(770m)
形状 - 道路 東側5.5m 西側9m
私道 - その他の制限 準防火
  • 大町5丁目 売家
    上越宅地販売株式会社
  • この物件を問い合わせる/無料
  • TEL: 025-522-3838

物件詳細情報

所在階/階数 - 号室 -
販売価格 15,000,000円 方位 -
間取り 8DK (和室:12畳、10畳、8畳、6畳) (洋室:16、15、15、9)
DK14
専有面積 - バルコニー面積 -
その他面積 - 駐車場 -
管理費 - 修繕積立金 -
現況 空家
仲介手数料 561,000円
利用制限 -
設備 駐車3台以上可能、追いだき機能付き、浴室乾燥機、バス1坪以上、温水洗浄便座、トイレ2か所以上、都市ガス、上水道、下水道
取引態様 専任
備考 -
取り扱い会社

上越宅地販売株式会社

新潟県上越市南高田町1-2アサノビル1階

情報登録日 2024/04/30 次回更新予定日 2025/11/19
取引条件有効期限 2024/07/31
  • 大町5丁目 売家
    上越宅地販売株式会社
  • この物件を問い合わせる/無料
  • TEL: 025-522-3838

この物件の地図・周辺情報・行政情報

この物件の周辺情報・行政情報を詳しく見る
【周辺情報】
物件の近くにあるコンビニや銀行・学校など、アイコン付のマップで詳しく表示できます!
【行政情報】
水道料や下水道料・ガス料金など、暮らしに関係のある情報を表示しています。
ローソン 上越高田駅前店(コンビニ)まで370m
セブン-イレブン 上越本町7丁目店(コンビニ)まで390m
イチコスーパー 幸店(スーパー)まで510m
ナルス 北城店(スーパー)まで950m

※カメラのアイコンがある場合は、マウスをポイントするとその施設の画像がご覧いただけます。


担当取扱い店舗情報

取扱い店舗画像
上越宅地販売株式会社
TEL: 025-522-3838
所在地: 新潟県上越市南高田町1-2アサノビル1階
交通: 妙高はねうまライン 南高田駅 徒歩1分
営業時間: 9:00~18:30/定休日:毎週水曜日・GW・夏季・臨時休業(9/21日曜日)・年末年始
免許番号: 新潟県知事(9)第3372号 この会社の情報を詳しく見る
所属団体名: 公社 新潟県宅地建物取引協会 上越支部
取引態様: 専任
ホームページ: http://takuhan.com/