1
物件掲載企業数:
301
社
|賃貸物件:
3,258
件|売買物件:
3,253
件|今週の登録物件:
268
件
閲覧中のブラウザ(インターネットエクスプローラー)は非推奨ブラウザです。
物件が正しく表示されなかったり、正しく検索されない場合があります。最新のブラウザ(Google Chrome・Edgeなど)にてご利用お願いいたします。
Google Chrome
Microsoft Edge
アパート・マンション・一戸建て
駐車場
貸土地
店舗
事務所
倉庫・工場
新築分譲マンション
中古マンション
新築一戸建て
中古一戸建て
売土地・分譲地
その他(投資物件など)
マンション
一戸建て
土地
ホーム
>
会社情報
>
物件種別選択
> 物件一覧
上越宅地販売株式会社
の
投資物件・その他
物件情報
8件
該当しました。
表示切替:
一覧表示
/
地図表示
並び替え:
指定なし
新着順
価格が安い順
価格が高い順
画像
物件名/所在地/取扱店
詳細
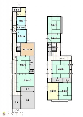
幹線道路に近く、閑静な住宅地です。
御殿山 売家
新潟県上越市御殿山町7-31
上越宅地販売株式会社
価格
:
3,500,000
円
表面利回り
:
17.1
%
(満室想定時)
土地面積
:169.92㎡ /51.4坪
建ぺい率
:50%
容積率
:80%
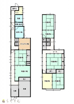
水回りリフォーム済みの貸家物件!
昭和町2丁目 貸家
新潟県上越市昭和町2丁目13-20
上越宅地販売株式会社
価格
:
4,000,000
円
表面利回り
:
17.1
%
(満室想定時)
土地面積
:199.76㎡ /60.42坪
建ぺい率
:50%
容積率
:80%
幹線道路沿い!水回りリフォーム済み!
南本町1丁目 売家
新潟県上越市南本町1丁目5-18
上越宅地販売株式会社
価格
:
4,000,000
円
表面利回り
:
12
%
(満室想定時)
土地面積
:158.4㎡ /47.91坪
建ぺい率
:60%
容積率
:200%
高田城址公園近くで元店舗の貸家物件!
西城町 貸家
新潟県上越市西城町1丁目6番3号
上越宅地販売株式会社
価格
:
7,500,000
円
表面利回り
:
9
%
(満室想定時)
土地面積
:148.98㎡ /45.06坪
建ぺい率
:60%
容積率
:200%
県立看護大学に近いの学生向けアパートです。
鴨島3丁目 売アパート
新潟県上越市鴨島3丁目8-8
上越宅地販売株式会社
価格
:
14,000,000
円
表面利回り
:
17.48
%
(満室想定時)
土地面積
:372.47㎡ /112.67坪
建ぺい率
:60%
容積率
:200%
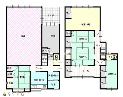
南高田駅徒歩圏内です。
南高田町 売店舗
新潟県上越市南高田町4-5
上越宅地販売株式会社
価格
:
15,300,000
円
表面利回り
:
7.8
%
(満室想定時)
土地面積
:307.03㎡ /92.87坪
建ぺい率
:60%
容積率
:200%
コンビニやスーパーに近い便利な立地!
平成町 店舗アパート
新潟県上越市平成町27番地
上越宅地販売株式会社
価格
:
17,500,000
円
表面利回り
:
8.09
%
(満室想定時)
土地面積
:340.25㎡ /102.92坪
建ぺい率
:60%
容積率
:200%
オーシャンビューがきれいな海辺の売ホテル!
鵜の浜温泉 売ホテル
新潟県上越市大潟区雁子浜304-2
上越宅地販売株式会社
価格
:
95,000,000
円
表面利回り
:-
土地面積
:3,510.51㎡ /1,061.92坪
建ぺい率
:80%
容積率
:400%
表示切替:
一覧表示
/
地図表示
並び替え:
指定なし
新着順
価格が安い順
価格が高い順
価格は物件の代金総額を表示しており、消費税が課税される場合は税込み価格です。
建築条件付き土地価格には、建物価格は含まれません。
物件情報の詳細については取り扱い店までお問い合わせください。
完成予想図はいずれも外構・植栽・外観等実際のものと異なることが多少あります。
CG合成の画像の場合実際と異なることが多少あります。
完成後1年以上経過したものが未入居として記載される場合があります。ご了承ください。
販売予定物件は販売開始するまで契約または予約の申し込みはできません。
ご購入の場合物件詳細や契約内容についてご自身で十分ご確認いただきますようよろしく御願いします。
建築条件付きとは…その土地に建築する建物の建築請負契約が、一定期間内に成立することを条件として売買される土地のことをいいます。請負契約成立に向けて設計プランを協議するため、土地購入者が希望する建物にするために一定の期間(概ね3ヶ月)交渉期間としその期間内に希望するプランが実現できたかどうかによって土地の購入の判断をします。納得のいくプランができず請負契約が未成立になった場合、土地契約にかかった代金(手付金など)は、すべて返却されます。
8件
該当しました。
0件
がマッチ
基本条件
物件種別
投資物件・その他
詳細種別
1棟売りマンション・アパート
マンション(区分所有)
その他
価格
下限なし
100万円
250万円
500万円
1000万円
1500万円
2000万円
2500万円
3000万円
3500万円
4000万円
4500万円
5000万円
5500万円
6000万円
6500万円
7000万円
7500万円
8000万円
8500万円
9000万円
9500万円
1億円
~
上限なし
100万円
250万円
500万円
1000万円
1500万円
2000万円
2500万円
3000万円
3500万円
4000万円
4500万円
5000万円
5500万円
6000万円
6500万円
7000万円
7500万円
8000万円
8500万円
9000万円
9500万円
1億円
間取り
ワンルーム
1K
1DK
1LDK
2K
2DK
2LDK
3K
3DK
3LDK
4K
4DK
4LDK以上
専有面積
下限なし
20㎡
30㎡
40㎡
50㎡
60㎡
70㎡
80㎡
90㎡
100㎡
~
上限なし
20㎡
30㎡
40㎡
50㎡
60㎡
70㎡
80㎡
90㎡
100㎡
土地面積
下限なし
60㎡ (約18坪)
70㎡ (約21坪)
80㎡ (約24坪)
90㎡ (約27坪)
100㎡ (約30坪)
110㎡ (約33坪)
120㎡ (約36坪)
130㎡ (約39坪)
140㎡ (約42坪)
150㎡ (約45坪)
160㎡ (約48坪)
170㎡ (約51坪)
180㎡ (約54坪)
190㎡ (約57坪)
200㎡ (約60坪)
250㎡ (約75坪)
300㎡ (約90坪)
~
上限なし
60㎡ (約18坪)
70㎡ (約21坪)
80㎡ (約24坪)
90㎡ (約27坪)
100㎡ (約30坪)
110㎡ (約33坪)
120㎡ (約36坪)
130㎡ (約39坪)
140㎡ (約42坪)
150㎡ (約45坪)
160㎡ (約48坪)
170㎡ (約51坪)
180㎡ (約54坪)
190㎡ (約57坪)
200㎡ (約60坪)
250㎡ (約75坪)
300㎡ (約90坪)
建物面積
下限なし
60㎡ (約18坪)
70㎡ (約21坪)
80㎡ (約24坪)
90㎡ (約27坪)
100㎡ (約30坪)
110㎡ (約33坪)
120㎡ (約36坪)
130㎡ (約39坪)
140㎡ (約42坪)
150㎡ (約45坪)
160㎡ (約48坪)
170㎡ (約51坪)
180㎡ (約54坪)
190㎡ (約57坪)
200㎡ (約60坪)
250㎡ (約75坪)
300㎡ (約90坪)
~
上限なし
60㎡ (約18坪)
70㎡ (約21坪)
80㎡ (約24坪)
90㎡ (約27坪)
100㎡ (約30坪)
110㎡ (約33坪)
120㎡ (約36坪)
130㎡ (約39坪)
140㎡ (約42坪)
150㎡ (約45坪)
160㎡ (約48坪)
170㎡ (約51坪)
180㎡ (約54坪)
190㎡ (約57坪)
200㎡ (約60坪)
250㎡ (約75坪)
300㎡ (約90坪)
坪単価
下限なし
5万円
10万円
15万円
20万円
25万円
30万円
35万円
40万円
45万円
50万円
~
上限なし
5万円
10万円
15万円
20万円
25万円
30万円
35万円
40万円
45万円
50万円
築年数
指定なし
新築
3年以内
5年以内
10年以内
15年以内
20年以内
方位
北
北東
東
南東
南
南西
西
北西
おすすめ条件
ペット可・相談
楽器可・相談
情報公開日
指定なし
本日
3日以内
1週間以内
1ヶ月以内
0件
がマッチ
人気のあるこだわり条件
角地(2)
南側道路面す(1)
エレベーター(1)
駐車場(近隣含む)(4)
公営水道(5)
都市ガス(5)
下水道(3)
浄化槽(2)
事業向け(4)
条件に合った物件数は、
0 件
です。
立地・環境
角地(2)
南側道路面す(1)
構造
エレベーター(1)
駐車場(近隣含む)(4)
設備
公営水道(5)
都市ガス(5)
下水道(3)
浄化槽(2)
その他
事業向け(4)
条件に合った物件数は、
0 件
です。
アパート・マンション・一戸建て
/
駐車場
/
貸土地
/
店舗
/
事務所
/
倉庫・工場
新築分譲マンション
/
中古マンション
/
新築一戸建て
/
中古一戸建て
/
売土地
/
投資物件・その他
マンション
/
一戸建て
/
土地
建てる・リフォーム
物件掲載企業一覧
掲載希望の企業様へ
新潟の不動産情報サイト
サービス利用規約
運営会社
サイトマップ
プライバシーポリシー
お問い合わせ
リンク
Copyright (C)
株式会社 コモンライフ・コーポレーション
. All Rights Reserved.
新潟・長岡・柏崎の賃貸・マンション・アパート・住宅の不動産物件情報サイト
不動産検索サイト「らくすむ」及び関連サイトに記載の不動産情報は、会員規約に則り、情報提供会社様の責任のもとに発信されております。
不動産の賃借、購入に関しては賃借者、購入者ご自身が情報を確認され、会社企業様から説明を受けられたうえで判断をお願いいたします。
不動産検索サイト「らくすむ」及び関連サイトに記載の不動産情報、写真、デザイン、コンテンツなどの
無断転載・転用・複製
など禁止します。