幹線道路に近く、閑静な住宅地です。
| 物件名/所在地 | 詳細 | 価格
							 表面利回り  | 
						
|---|---|---|
| 御殿山 売家
														 新潟県上越市御殿山町7-31  | 
							
								
  | 
							
															3,500,000円
																						 17.1% (満室想定時)  | 
						
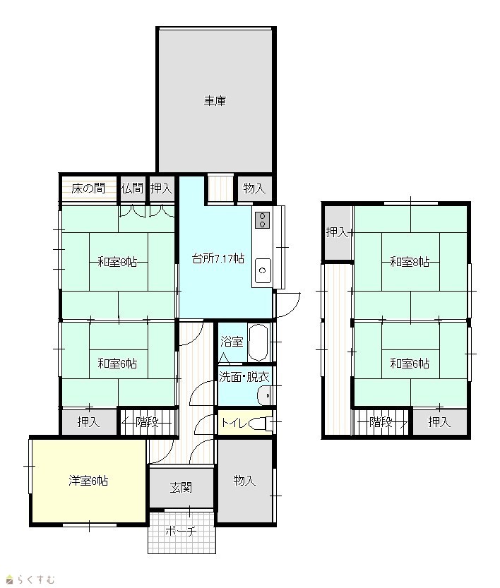
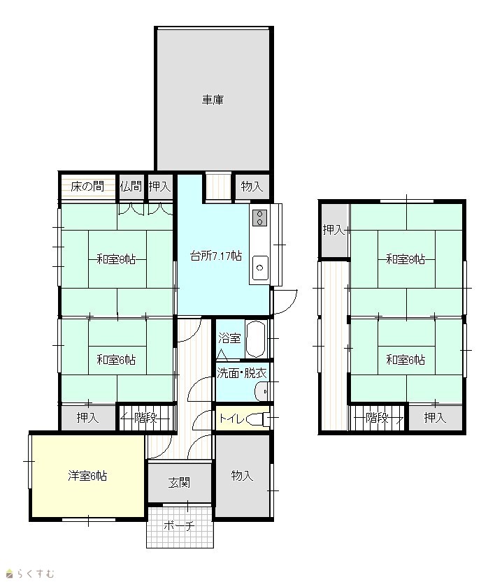
| 外観 | 間取り | 
|---|---|
| 
								 ※画像クリックで拡大表示 外観 
							 | 
							
								![]() ※画像クリックで拡大表示 間取図 
							 | 
						
| 詳細画像 | |
| 
								 | 
						|
| 物件コード | 00308-200229 | ||
|---|---|---|---|
| 物件名 | 御殿山 売家 | ||
| 交通 | 駅:妙高はねうまライン 高田駅から徒歩21分、バス:御殿山町から徒歩7分 | ||
| 物件所在地 | 新潟県上越市御殿山町7-31 | ||
| 物件種別 | 投資物件・その他 | ||
| 物件区分 | その他 | ||
| 構造 | 木造 | 階建 | 地上2階建 | 
| 建ぺい率/容積率 | 50%/80% | ||
| 建物面積 | 1階 74.19㎡/ 2階 33㎡/ 計 107.19㎡ /32.42坪 | ||
| 土地面積 | 169.92㎡ /51.4坪 | ||
| 築年月 | 1978年5月(築47年) | ||
| 入居(引き渡し)時期 | 相談 | ||
| 用途地域 | 第1種低層住居専用地域 | 地目 | 宅地 | 
| 都市計画 | 市街化区域 | 学校区 | 飯小学校(854m)・城北中学校(1,984m) | 
| 形状 | - | 道路 | - | 
| 私道 | - | その他の制限 | - | 
| 所在階/階数 | - | 号室 | - | 
|---|---|---|---|
| 販売価格 | 3,500,000円 | 方位 | - | 
| 表面利回り(満室想定時) | 17.1% | 満室想定年収 | 600,000円 (想定月収: 50,000円 ) | 
| 現行利回り | 17.1% | 現行年間年収 | 600,000円 | 
| 住戸数 | - | ||
| 間取り | 5DK | ||
| 専有面積 | - | バルコニー面積 | - | 
| その他面積 | - | 駐車場 | - | 
| 管理費 | - | 修繕積立金 | - | 
| 現況 | 賃貸中 | ||
| 仲介手数料 | 330,000円 | ||
| 利用制限 | - | ||
| 設備 | 事業向け | ||
| 取引態様 | 一般 | ||
| 備考 | 現在、貸家として賃貸中です。 | ||
| 取り扱い会社 | 
								 上越宅地販売株式会社 新潟県上越市南高田町1-2アサノビル1階  | 
						||
| 情報登録日 | 2024/08/30 | 次回更新予定日 | 2025/11/18 | 
| 取引条件有効期限 | 2024/03/31 | ||
| TEL: | 025-522-3838 | |
|---|---|---|
| 所在地: | 新潟県上越市南高田町1-2アサノビル1階 | |
| 交通: | 妙高はねうまライン 南高田駅 徒歩1分 | |
| 営業時間: | 9:00~18:30/定休日:毎週水曜日・GW・夏季・臨時休業(9/21日曜日)・年末年始 | |
| 免許番号: | 新潟県知事(9)第3372号 | 
										
											 | 
								
| 所属団体名: | 公社 新潟県宅地建物取引協会 上越支部 | |
| 取引態様: | 一般 | |
| ホームページ: | http://takuhan.com/ | |