1
物件掲載企業数:
299
社
|賃貸物件:
3,028
件|売買物件:
3,228
件|今週の登録物件:
307
件
閲覧中のブラウザ(インターネットエクスプローラー)は非推奨ブラウザです。
物件が正しく表示されなかったり、正しく検索されない場合があります。最新のブラウザ(Google Chrome・Edgeなど)にてご利用お願いいたします。
Google Chrome
Microsoft Edge
アパート・マンション・一戸建て
駐車場
貸土地
店舗
事務所
倉庫・工場
新築分譲マンション
中古マンション
新築一戸建て
中古一戸建て
売土地・分譲地
その他(投資物件など)
マンション
一戸建て
土地
ホーム
>
会社情報
>
物件種別選択
> 物件一覧
全エリア
の
新築一戸建て
物件情報
160件
該当しました。
<前のページ
3
4
5
6
7
8
表示切替:
一覧表示
/
地図表示
並び替え:
指定なし
新着順
価格が安い順
価格が高い順
画像
物件名/所在地/取扱店
詳細
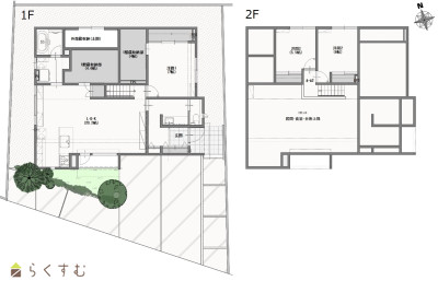
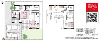
【学校・商業施設が徒歩圏内】全館空調搭載・3LDKS住宅 ■北側道路に消雪完備 ■駐車2台可能 ■全室南向き×6帖以上×収納付き ■WIC・土間収納など充実設備あり
(新築住宅)長岡市宮内6丁目 2号棟
新潟県長岡市宮内6丁目2-20北側隣地 付近
新潟土地建物販売センター 株式会社
価格
:
39,800,000
円
土地面積
:175.77㎡ /53.17坪
建物面積
:110.95㎡ /33.56坪
間取り
:3LDK
築年月
:2026年4月
≪自社分譲地内新築住宅につき仲介手数料半額、特別キャンペーン実施中!≫全館空調×注文住宅品質。家事動線と収納が光る、角地の快適美邸!
長岡市宮内6丁目新築住宅(2号棟)
新潟県長岡市宮内6丁目2-19
株式会社 エヌ・アール・ケー総合企画
価格
:
39,800,000
円
土地面積
:175.77㎡ /53.17坪
建物面積
:110.95㎡ /33.56坪
間取り
:3LDK
築年月
:2026年4月
【全室南向き×6帖以上×収納完備!全館空調搭載の3LDK住宅】 ■駐車2台可能 ■WIC・土間収納など充実設備あり ■収納付き広々2階ホールあり ■学校・商業施設が徒歩圏内
(新築住宅)長岡市宮内6丁目 3号棟
新潟県長岡市宮内6丁目2-20北側隣地 付近
新潟土地建物販売センター 株式会社
価格
:
39,800,000
円
土地面積
:175.78㎡ /53.17坪
建物面積
:112.61㎡ /34.06坪
間取り
:3LDK
築年月
:2026年4月
≪自社分譲地内新築住宅につき仲介手数料半額、特別キャンペーン実施中!≫全館空調×注文住宅品質。家事動線と収納が光る、角地の快適美邸!
長岡市宮内6丁目新築住宅(3号棟)
新潟県長岡市宮内6丁目2-19
株式会社 エヌ・アール・ケー総合企画
価格
:
39,800,000
円
土地面積
:175.78㎡ /53.17坪
建物面積
:112.61㎡ /34.06坪
間取り
:3LDK
築年月
:2026年4月
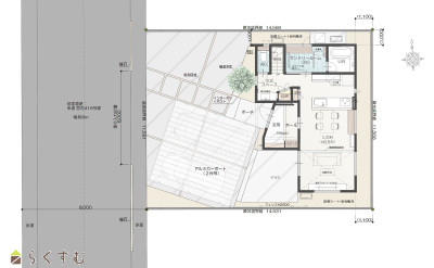
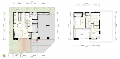
\平日も見学可能/リビング内階段のある住まい 《見学予約でデジタルギフト2,000円分プレゼント!》
【セキスイハイム】スマートハイムプレイス上越市土橋Ⅱ5号
新潟県上越市土橋2883番
セキスイハイム信越株式会社 東北信支店
価格
:
39,800,000
円
土地面積
:185㎡ /55.96坪
建物面積
:107.94㎡ /32.65坪
間取り
:3LDK
築年月
:2024年6月
広々とした敷地面積53坪以上の整形地!カースペース2台可能!教育施設が近く、買い物施設も充実!
スマート・ワン シティ長岡市宮内6丁目3区画3号棟
新潟県長岡市宮内6丁目152-5
株式会社ヒノキヤグループ 桧家住宅カンパニー群馬営業所
価格
:
39,800,000
円
土地面積
:175.78㎡ /53.17坪
建物面積
:112.61㎡ /34.06坪
間取り
:3LDK
築年月
:2026年4月
≪事前の見学予約でQUOカード3,000円分プレゼント!≫◎他区画より広めの74坪区画割り ◎高天井&ハイサッシで開放的な18帖LDK ◎木目天井と間接照明が柔らかな雰囲気を演出 ◎家事らくアイテム『かん太くん』も設置済み! ◎おしゃれなワイドカウンター洗面化粧台
≪ミサワホームの分譲住宅≫ 丘陵公園分譲D棟
新潟県長岡市陽光台4丁目
ミサワホーム北越 株式会社
価格
:
39,900,000
円
土地面積
:246.14㎡ /74.45坪
建物面積
:108.47㎡ /32.81坪
間取り
:4LDK
築年月
:2024年10月
≪事前の見学予約でQUOカード3,000円分プレゼント!≫≪ミサワホームの分譲住宅≫ 駅や商業施設近くで人気の平屋スローライフを実現!
【子育てグリーン住宅補助金対象】 燕白山町分譲B棟
新潟県燕市白山町3丁目2739番1
ミサワホーム北越 株式会社
価格
:
39,950,000
円
土地面積
:237.97㎡ /71.98坪
建物面積
:75.77㎡ /22.92坪
間取り
:2LDK
築年月
:2025年8月
【インナーガレージ】ゴロンとくつろぐタタミの空間 リビングと繋がる和のある暮らし
上越木田B1
新潟県上越市木田2丁目238番10
オスカーホーム 上越営業所
価格
:
39,990,000
円
土地面積
:182.4㎡ /55.17坪
建物面積
:140.63㎡ /42.54坪
間取り
:3LDK
築年月
:2026年3月
ダブル断熱+樹脂トリプルガラスサッシ+熱交換式第1種換気システムの仕様!
希望が丘南6丁目 モデルハウス
新潟県長岡市希望が丘南6丁目16番22
株式会社モリタ装芸
価格
:
41,000,000
円
土地面積
:183.19㎡ /55.41坪
建物面積
:92㎡ /27.83坪
間取り
:3LDK
築年月
:2024年8月
【セキスイハイム】上越ウイングマーケット隣接でお買物に便利な立地。太陽光発電・蓄電池搭載! 《見学予約でデジタルギフト2,000円分プレゼント!》
【セキスイハイム】上越市富岡南部土地区画整理事業2-10
新潟県上越市富岡南部⼟地区画整理事業2街区10画地
セキスイハイム信越株式会社 東北信支店
価格
:
42,400,000
円
土地面積
:195㎡ /58.98坪
建物面積
:98.16㎡ /29.69坪
間取り
:3LDK
築年月
:2025年7月
【10/1~大幅価格改定!!】4,800万円→4,300万円 ◆形態と機能がひとつになった、シンプルで美しい住まい
陽光台モデルハウス【ホリゾンタル】見学可
新潟県長岡市陽光台4丁目1379-118
株式会社 空間クリエイティブ
価格
:
43,000,000
円
土地面積
:205.97㎡ /62.3坪
建物面積
:118.7㎡ /35.9坪
間取り
:3LDK
築年月
:2021年10月
平屋なのに驚きの収納量とこだわりのリビングが魅力的な物件!
上越市土橋平屋新築住宅
新潟県上越市土橋2801番
株式会社アオキ住建 AT HOME LABO
価格
:
43,800,000
円
土地面積
:224.13㎡ /67.79坪
建物面積
:99.84㎡ /30.2坪
間取り
:3LDK
築年月
:2024年9月
生活が一階でほぼ完結できる「平屋+α」のお家です♪
城塚モデルハウス販売
新潟県柏崎市城塚3-31
有限会社 片山工務店
価格
:
43,900,000
円
土地面積
:267.22㎡ /80.83坪
建物面積
:103.92㎡ /31.43坪
間取り
:3LDK
築年月
:2025年7月
2台分のインナーガレージと2つの坪庭のある邸宅です。 広いバルコニーは贅沢なひとときを過ごせる特別な空間です。
【未入居】 丘陵公園モデルハウス
新潟県長岡市陽光台4丁目1379番地164
株式会社 島岡不動産企画
価格
:
45,000,000
円
土地面積
:205.22㎡ /62.07坪
建物面積
:107.64㎡ /32.56坪
間取り
:2LDK
築年月
:2024年12月
市役所徒歩5分、暮らしが整う立地。吹抜けのある開放的な3LDK、家具家電付きで“すぐ始まる新生活
イイコトテラス木田分譲住宅
新潟県上越市木田1丁目1番14-11
株式会社一条工務店 新潟営業所
価格
:
45,007,928
円
土地面積
:244.43㎡ /73.94坪
建物面積
:103.28㎡ /31.24坪
間取り
:3LDK
築年月
:2025年5月
高性能モデルハウス 「家永-KaEi」 販売中!! 土地+建物3LDK 【半平屋仕様、インナーガレージ(1台分)があります。家具付きで販売いたします。】
パークタウン稲保19-6 モデルハウス販売
新潟県長岡市稲葉町580番地11(パークタウン稲保19-6)
越路建設 株式会社
価格
:
46,980,000
円
土地面積
:210.02㎡ /63.53坪
建物面積
:155.67㎡ /47.09坪
間取り
:3LDK
築年月
:2026年1月
≪事前の見学予約でQUOカード3,000円分プレゼント!≫ ◆高天井と高窓のコンビネーションで開放感たっぷりのLDK ◆集中と分散で効率的な収納計画 ◆徒歩圏内に飲食店や商業施設が多数揃う高い利便性
≪ミサワホームの分譲住宅≫ 富岡分譲A棟
新潟県上越市富岡土地区画整理事業6街区3
ミサワホーム北越 株式会社
価格
:
48,500,000
円
土地面積
:195.19㎡ /59.04坪
建物面積
:116.09㎡ /35.11坪
間取り
:3LDK
築年月
:2025年11月
R8年4月完成予定!≪事前の見学予約でQUOカード3,000円分プレゼント!≫ ・木目天井材による内と外をつなげる空間設計 ・センチュリーモノコック構造が生み出す『KURAⓇ』と3.5m高天井 ・人気のニッチ造作や独立ワイド洗面化粧台、家事らくアイテム『かん太くん』も設置済
R8/4月完成予定≪ミサワホーム分譲住宅≫古正寺1 B棟
新潟県長岡市古正寺1丁目3026番3
ミサワホーム北越 株式会社
価格
:
57,800,000
円
土地面積
:217.26㎡ /65.72坪
建物面積
:96.29㎡ /29.12坪
間取り
:3LDK
築年月
:2026年4月
Patio(中庭)のある高性能モデルハウスを展示終了に付き販売! 生活に便利な好立地!
モデルハウス寛 (新築・未入居物件)
新潟県上越市子安1679
家'Sハセガワ 株式会社
価格
:
58,740,000
円
土地面積
:280.09㎡ /84.72坪
建物面積
:124.3㎡ /37.6坪
間取り
:4LDK
築年月
:2024年3月
表示切替:
一覧表示
/
地図表示
並び替え:
指定なし
新着順
価格が安い順
価格が高い順
価格は物件の代金総額を表示しており、消費税が課税される場合は税込み価格です。
建築条件付き土地価格には、建物価格は含まれません。
物件情報の詳細については取り扱い店までお問い合わせください。
完成予想図はいずれも外構・植栽・外観等実際のものと異なることが多少あります。
CG合成の画像の場合実際と異なることが多少あります。
完成後1年以上経過したものが未入居として記載される場合があります。ご了承ください。
販売予定物件は販売開始するまで契約または予約の申し込みはできません。
ご購入の場合物件詳細や契約内容についてご自身で十分ご確認いただきますようよろしく御願いします。
建築条件付きとは…その土地に建築する建物の建築請負契約が、一定期間内に成立することを条件として売買される土地のことをいいます。請負契約成立に向けて設計プランを協議するため、土地購入者が希望する建物にするために一定の期間(概ね3ヶ月)交渉期間としその期間内に希望するプランが実現できたかどうかによって土地の購入の判断をします。納得のいくプランができず請負契約が未成立になった場合、土地契約にかかった代金(手付金など)は、すべて返却されます。
160件
該当しました。
<前のページ
3
4
5
6
7
8
0件
がマッチ
基本条件
物件種別
新築一戸建て
価格
下限なし
100万円
250万円
500万円
1000万円
1500万円
2000万円
2500万円
3000万円
3500万円
4000万円
4500万円
5000万円
5500万円
6000万円
6500万円
7000万円
7500万円
8000万円
8500万円
9000万円
9500万円
1億円
~
上限なし
100万円
250万円
500万円
1000万円
1500万円
2000万円
2500万円
3000万円
3500万円
4000万円
4500万円
5000万円
5500万円
6000万円
6500万円
7000万円
7500万円
8000万円
8500万円
9000万円
9500万円
1億円
間取り
ワンルーム
1K
1DK
1LDK
2K
2DK
2LDK
3K
3DK
3LDK
4K
4DK
4LDK以上
専有面積
下限なし
20㎡
30㎡
40㎡
50㎡
60㎡
70㎡
80㎡
90㎡
100㎡
~
上限なし
20㎡
30㎡
40㎡
50㎡
60㎡
70㎡
80㎡
90㎡
100㎡
土地面積
下限なし
60㎡ (約18坪)
70㎡ (約21坪)
80㎡ (約24坪)
90㎡ (約27坪)
100㎡ (約30坪)
110㎡ (約33坪)
120㎡ (約36坪)
130㎡ (約39坪)
140㎡ (約42坪)
150㎡ (約45坪)
160㎡ (約48坪)
170㎡ (約51坪)
180㎡ (約54坪)
190㎡ (約57坪)
200㎡ (約60坪)
250㎡ (約75坪)
300㎡ (約90坪)
~
上限なし
60㎡ (約18坪)
70㎡ (約21坪)
80㎡ (約24坪)
90㎡ (約27坪)
100㎡ (約30坪)
110㎡ (約33坪)
120㎡ (約36坪)
130㎡ (約39坪)
140㎡ (約42坪)
150㎡ (約45坪)
160㎡ (約48坪)
170㎡ (約51坪)
180㎡ (約54坪)
190㎡ (約57坪)
200㎡ (約60坪)
250㎡ (約75坪)
300㎡ (約90坪)
建物面積
下限なし
60㎡ (約18坪)
70㎡ (約21坪)
80㎡ (約24坪)
90㎡ (約27坪)
100㎡ (約30坪)
110㎡ (約33坪)
120㎡ (約36坪)
130㎡ (約39坪)
140㎡ (約42坪)
150㎡ (約45坪)
160㎡ (約48坪)
170㎡ (約51坪)
180㎡ (約54坪)
190㎡ (約57坪)
200㎡ (約60坪)
250㎡ (約75坪)
300㎡ (約90坪)
~
上限なし
60㎡ (約18坪)
70㎡ (約21坪)
80㎡ (約24坪)
90㎡ (約27坪)
100㎡ (約30坪)
110㎡ (約33坪)
120㎡ (約36坪)
130㎡ (約39坪)
140㎡ (約42坪)
150㎡ (約45坪)
160㎡ (約48坪)
170㎡ (約51坪)
180㎡ (約54坪)
190㎡ (約57坪)
200㎡ (約60坪)
250㎡ (約75坪)
300㎡ (約90坪)
坪単価
下限なし
5万円
10万円
15万円
20万円
25万円
30万円
35万円
40万円
45万円
50万円
~
上限なし
5万円
10万円
15万円
20万円
25万円
30万円
35万円
40万円
45万円
50万円
築年数
指定なし
新築
3年以内
5年以内
10年以内
15年以内
20年以内
方位
北
北東
東
南東
南
南西
西
北西
おすすめ条件
ペット可・相談
楽器可・相談
情報公開日
指定なし
本日
3日以内
1週間以内
1ヶ月以内
0件
がマッチ
人気のあるこだわり条件
角地(30)
高台に立地(6)
整形地(123)
前面道路6m以上(118)
日当り良好(131)
閑静な住宅街(117)
スーパー近く(94)
長期優良住宅(24)
設計住宅性能評価付き(40)
耐震構造(45)
BELS/省エネ基準適合認定建物(61)
瑕疵担保保険付き(29)
建物確認・完了検査済証あり(44)
フラット35S適合(38)
LDK15畳以上(132)
全室フローリング(114)
天井高2.5m以上(21)
駐車場2台以上(108)
駐車場3台以上(87)
南向き(78)
庭あり(63)
TVインターホン(148)
複層ガラス(138)
ディンプルキー(82)
システムキッチン(152)
カウンターキッチン(101)
IHクッキングヒーター(120)
浄水器(51)
食器洗浄乾燥機(59)
3口コンロ(103)
ガスコンロ設置済み(23)
追いだき機能付き(131)
浴室暖房乾燥機(46)
バス1坪以上(150)
浴室TV(2)
温水洗浄便座(151)
シャワー付き洗面台(140)
エアコン(110)
床暖房(7)
24時間換気システム(126)
全室エアコン(4)
オール電化(86)
太陽光発電システム(1)
省エネ給湯(122)
高気密高断熱住宅(108)
ウッドデッキ・テラス(19)
ルーフバルコニー(9)
都市ガス(75)
LPG(1)
上水道(156)
下水道(152)
浄化槽(6)
電気(145)
その他水道(1)
ウォークインクローゼット(102)
全居室収納あり(133)
床下収納(67)
シューズインクローゼット(56)
シューズBOX(95)
BS端子(15)
CS(1)
CATV(3)
LAN端子(19)
照明器具付き(95)
即引き渡し可能(54)
バリアフリー(48)
条件に合った物件数は、
0 件
です。
立地・環境
角地(30)
高台に立地(6)
整形地(123)
前面道路6m以上(118)
日当り良好(131)
閑静な住宅街(117)
スーパー近く(94)
構造・工法・仕様
長期優良住宅(24)
設計住宅性能評価付き(40)
耐震構造(45)
BELS/省エネ基準適合認定建物(61)
瑕疵担保保険付き(29)
建物確認・完了検査済証あり(44)
フラット35S適合(38)
面積・間取り
LDK15畳以上(132)
全室フローリング(114)
天井高2.5m以上(21)
駐車・駐輪
駐車場2台以上(108)
駐車場3台以上(87)
採光・向き
南向き(78)
ガーデン
庭あり(63)
管理・防犯
TVインターホン(148)
複層ガラス(138)
ディンプルキー(82)
キッチン
システムキッチン(152)
カウンターキッチン(101)
IHクッキングヒーター(120)
浄水器(51)
食器洗浄乾燥機(59)
3口コンロ(103)
ガスコンロ設置済み(23)
浴室
追いだき機能付き(131)
浴室暖房乾燥機(46)
バス1坪以上(150)
浴室TV(2)
トイレ
温水洗浄便座(151)
洗面所
シャワー付き洗面台(140)
冷暖房・空調
エアコン(110)
床暖房(7)
24時間換気システム(126)
全室エアコン(4)
光熱設備
オール電化(86)
太陽光発電システム(1)
省エネ給湯(122)
高気密高断熱住宅(108)
バルコニー・テラス
ウッドデッキ・テラス(19)
ルーフバルコニー(9)
室内仕様・設備
都市ガス(75)
LPG(1)
上水道(156)
下水道(152)
浄化槽(6)
電気(145)
その他水道(1)
収納
ウォークインクローゼット(102)
全居室収納あり(133)
床下収納(67)
シューズインクローゼット(56)
シューズBOX(95)
電気設備
BS端子(15)
CS(1)
CATV(3)
LAN端子(19)
照明器具付き(95)
費用・入居・引渡・条件
即引き渡し可能(54)
その他
バリアフリー(48)
条件に合った物件数は、
0 件
です。
アパート・マンション・一戸建て
/
駐車場
/
貸土地
/
店舗
/
事務所
/
倉庫・工場
新築分譲マンション
/
中古マンション
/
新築一戸建て
/
中古一戸建て
/
売土地
/
投資物件・その他
マンション
/
一戸建て
/
土地
建てる・リフォーム
物件掲載企業一覧
掲載希望の企業様へ
新潟の不動産情報サイト
サービス利用規約
運営会社
サイトマップ
プライバシーポリシー
お問い合わせ
リンク
Copyright (C)
株式会社 コモンライフ・コーポレーション
. All Rights Reserved.
新潟・長岡・柏崎の賃貸・マンション・アパート・住宅の不動産物件情報サイト
不動産検索サイト「らくすむ」及び関連サイトに記載の不動産情報は、会員規約に則り、情報提供会社様の責任のもとに発信されております。
不動産の賃借、購入に関しては賃借者、購入者ご自身が情報を確認され、会社企業様から説明を受けられたうえで判断をお願いいたします。
不動産検索サイト「らくすむ」及び関連サイトに記載の不動産情報、写真、デザイン、コンテンツなどの
無断転載・転用・複製
など禁止します。