新潟県上越市桜町 売土地・分譲地 11,880,000円の物件情報

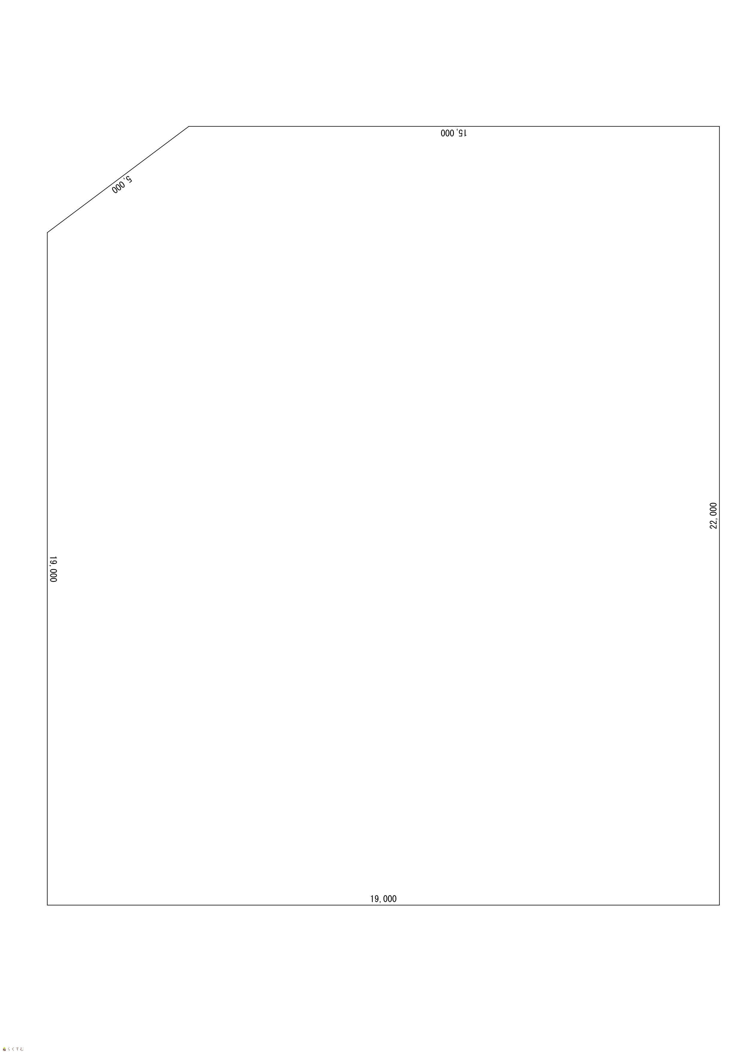
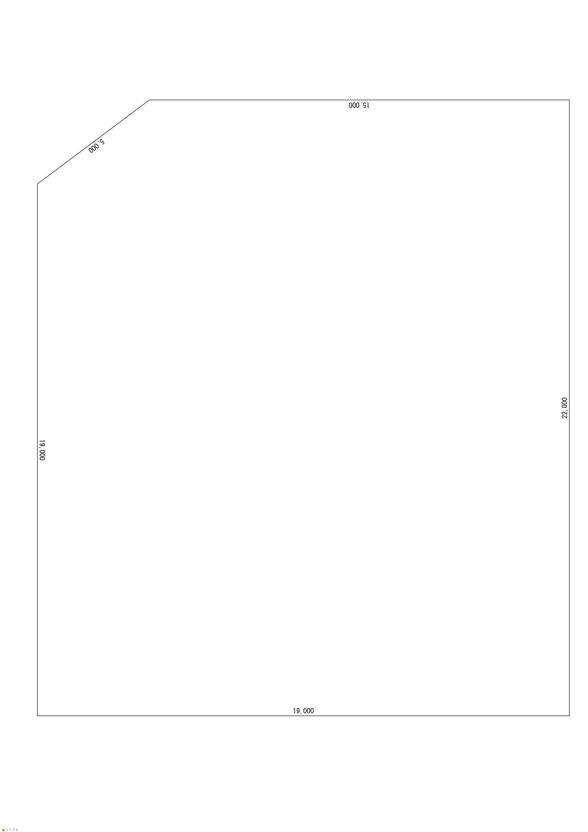
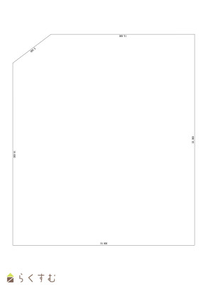
角地で解放感があります

物件名/所在地 詳細 価格
上越市桜町売地
新潟県上越市桜町
  • 土地面積
    :437.88㎡ /132.45坪
  • 坪単価
    :89,694円/坪
  • 建ぺい率
    :70%
  • 容積率
    :200%
11,880,000
  • 上越市桜町売地
    合同会社エフアセット
  • この物件を問い合わせる/無料
  • TEL: 025-526-7771 025-526-7771

物件画像

外観
間取り
物件画像
※画像クリックで拡大表示
外観
物件画像
※画像クリックで拡大表示
角地
詳細画像


物件概要

上越モールまで800mでお買い物らくらく♪価格相談可
物件コード 00377-200007
物件名 上越市桜町売地
交通 駅:妙高はねうまライン 南高田駅から徒歩44分、バス:桜町入口から徒歩6分
物件所在地 新潟県上越市桜町
物件種別 売土地・分譲地
物件区分 売土地
構造 - 階建 -
建ぺい率/容積率 70%/200%
建物面積 -
土地面積 437.88㎡ /132.45坪
築年月 -
入居(引き渡し)時期 随時入居(引き渡し)可
用途地域 第1種低層住居専用地域 地目 畑  (現状:畑 宅地)
都市計画 市街化調整区域 学校区 三郷小学校(1,087m)・城西中学校(2,995m)
形状 間口 19m × 奥行 19m 道路 北東 公道 9.0m 北西 公道 9.0m
私道 - その他の制限 景観法/新町今池土地区画整理事業 29条開発許可申請必要(買主負担)  農地法第5条許可申請必要(買主負担) ガス・水道引込み有 浄化槽補助金対象区域
  • 上越市桜町売地
    合同会社エフアセット
  • この物件を問い合わせる/無料
  • TEL: 025-526-7771 025-526-7771

物件詳細情報

所在階/階数 - 号室 -
販売価格 11,880,000円 方位 -
間取り -
専有面積 - バルコニー面積 -
その他面積 - 駐車場 -
管理費 - 修繕積立金 -
現況 -
仲介手数料 458,040円
利用制限 -
設備 角地、整形地、前道6m以上、更地、閑静な住宅街、所有権、側溝、都市ガス(前面道路)、上水道(前面道路)、都市ガス(宅地内)、上水道(宅地内)、住宅向け
取引態様 一般
備考 -
取り扱い会社

合同会社エフアセット

新潟県上越市木田1-8-17上越OSビル

情報登録日 2026/05/15 次回更新予定日 2026/06/06
取引条件有効期限 2026/06/30
  • 上越市桜町売地
    合同会社エフアセット
  • この物件を問い合わせる/無料
  • TEL: 025-526-7771 025-526-7771

この物件の地図・周辺情報・行政情報

この物件の周辺情報・行政情報を詳しく見る
【周辺情報】
物件の近くにあるコンビニや銀行・学校など、アイコン付のマップで詳しく表示できます!
【行政情報】
水道料や下水道料・ガス料金など、暮らしに関係のある情報を表示しています。
ラ・ムー 上越モール店(スーパー)まで880m

※カメラのアイコンがある場合は、マウスをポイントするとその施設の画像がご覧いただけます。


担当取扱い店舗情報

取扱い店舗画像
合同会社エフアセット
TEL: 025-526-7771
所在地: 新潟県上越市木田1-8-17上越OSビル
交通: 妙高はねうまライン 春日山駅 徒歩15分
営業時間: /定休日:水曜日
免許番号: 新潟県知事(1)第5774号
所属団体名: 公社 全日本不動産協会 新潟県本部
取引態様: 一般
ホームページ: https://www.f-asset.jp/