| 上越モールまで800mでお買い物らくらく♪価格相談可 | |||
| 物件コード | 00377-200007 | ||
|---|---|---|---|
| 物件名 | 上越市桜町売地 | ||
| 交通 | 駅:妙高はねうまライン 南高田駅から徒歩44分、バス:桜町入口から徒歩6分 | ||
| 物件所在地 | 新潟県上越市桜町 | ||
| 物件種別 | 売土地・分譲地 | ||
| 物件区分 | 売土地 | ||
| 構造 | - | 階建 | - |
| 建ぺい率/容積率 | 70%/200% | ||
| 建物面積 | - | ||
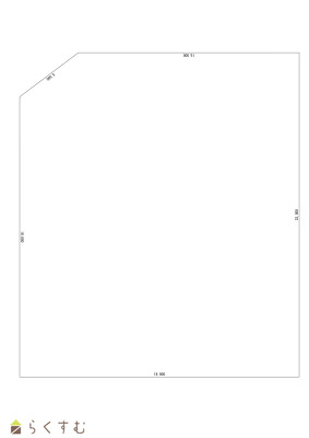
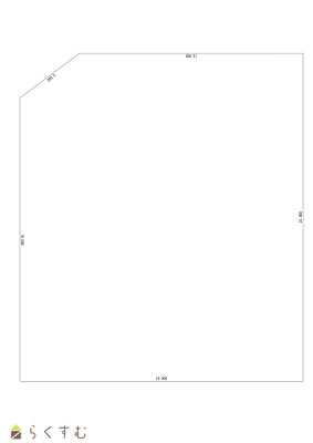
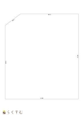
| 土地面積 | 437.88㎡ /132.45坪 | ||
| 築年月 | - | ||
| 入居時期 | 随時入居(引き渡し)可 | ||
| 用途地域 | 第1種低層住居専用地域 | 地目 | 畑 (現状:畑 宅地) |
| 都市計画 | 市街化調整区域 | 学校区 | 三郷小学校(1,087m)・城西中学校(2,995m) |
| 形状 | 間口 19m × 奥行 19m | 道路 | 北東 公道 9.0m 北西 公道 9.0m |
| 私道 | - | ||
| 所在階/階数 | - | 号室 | - |
|---|---|---|---|
| 販売価格 | 11,880,000円 | 方位 | - |
| 間取り | - | ||
| 専有面積 | - | バルコニー面積 | - |
| その他面積 | - | 駐車場 | - |
| 管理費 | - | 修繕積立金 | - |
| 現況 | - | ||
| 仲介手数料 | 458,040円 | ||
| 利用制限 | - | ||
| 設備 | 角地、整形地、前道6m以上、更地、閑静な住宅街、所有権、側溝、都市ガス(前面道路)、上水道(前面道路)、都市ガス(宅地内)、上水道(宅地内)、住宅向け | ||
| 取引態様 | 一般 | ||
| 備考 | - | ||
| 情報登録日 | 2026/05/15 | 次回更新予定日 | 2026/06/06 |
| 取引条件有効期限 | 2026/06/30 | ||
|
|
|
|
| TEL: | 025-526-7771 |
|---|---|
| 所在地: | 新潟県上越市木田1-8-17上越OSビル |
| 交通: | 妙高はねうまライン 春日山駅 徒歩15分 |
| 営業時間: | /定休日:水曜日 |
| 免許番号: | 新潟県知事(1)第5774号 |
| 所属団体名: | 公社 全日本不動産協会 新潟県本部 |
| 取引態様: | 一般 |