新潟県妙高市長森1390-1 新築一戸建て 6LDK 39,750,000円の物件情報

☆令和5年新築!高床が特徴的な築浅未入居住宅です☆

物件名/所在地 詳細 価格
妙高市長森
新潟県妙高市長森1390-1
  • 土地面積
    :749㎡ /226.57坪
  • 建物面積
    :277.4㎡ /83.91坪
  • 間取り
    :6LDK
  • 築年月
    :2024年8月
39,750,000
  • 妙高市長森
    有限会社田村家具店
  • この物件を問い合わせる/無料
  • TEL: 025-523-2438 025-523-2438

物件画像

外観
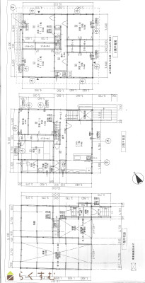
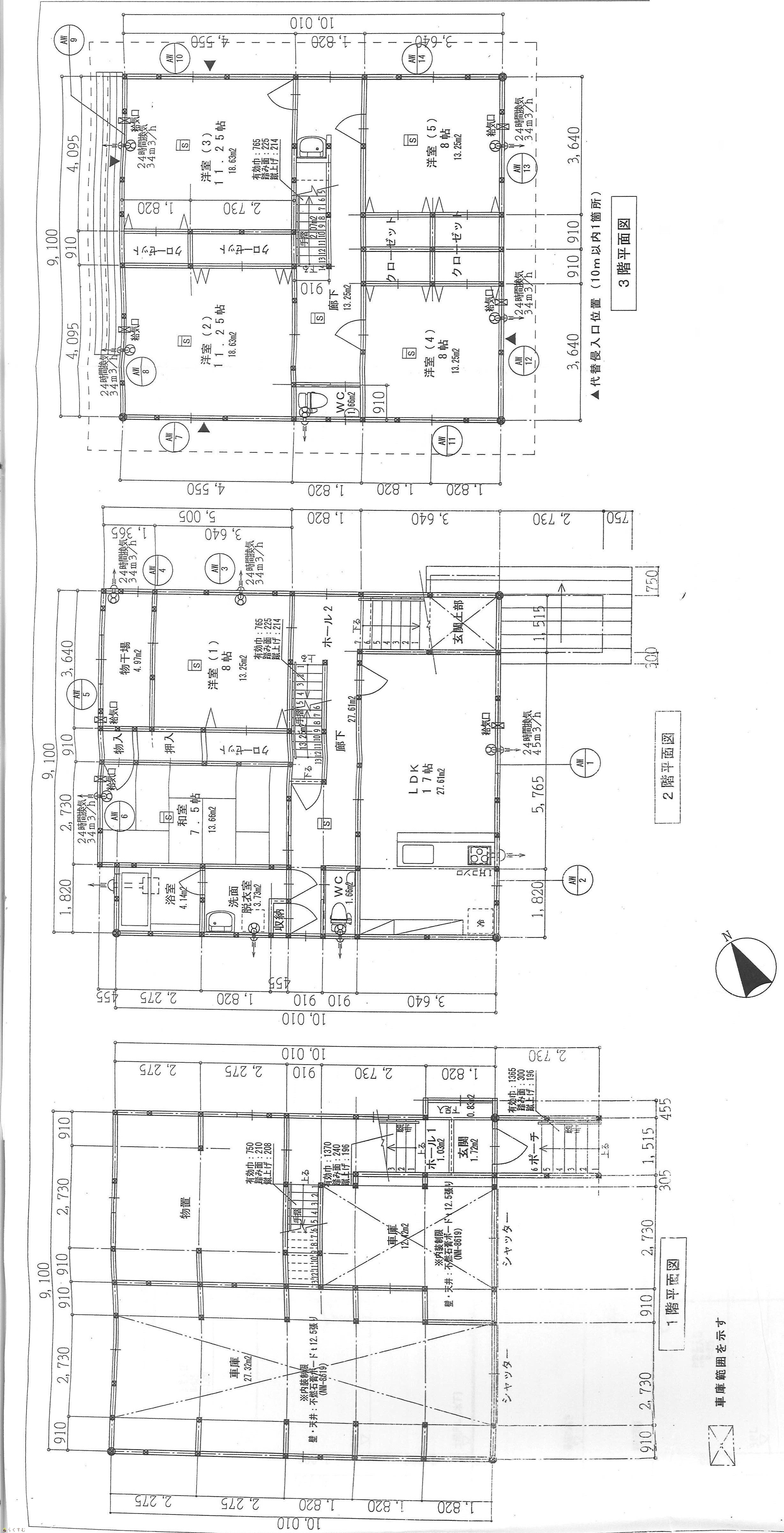
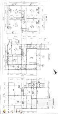
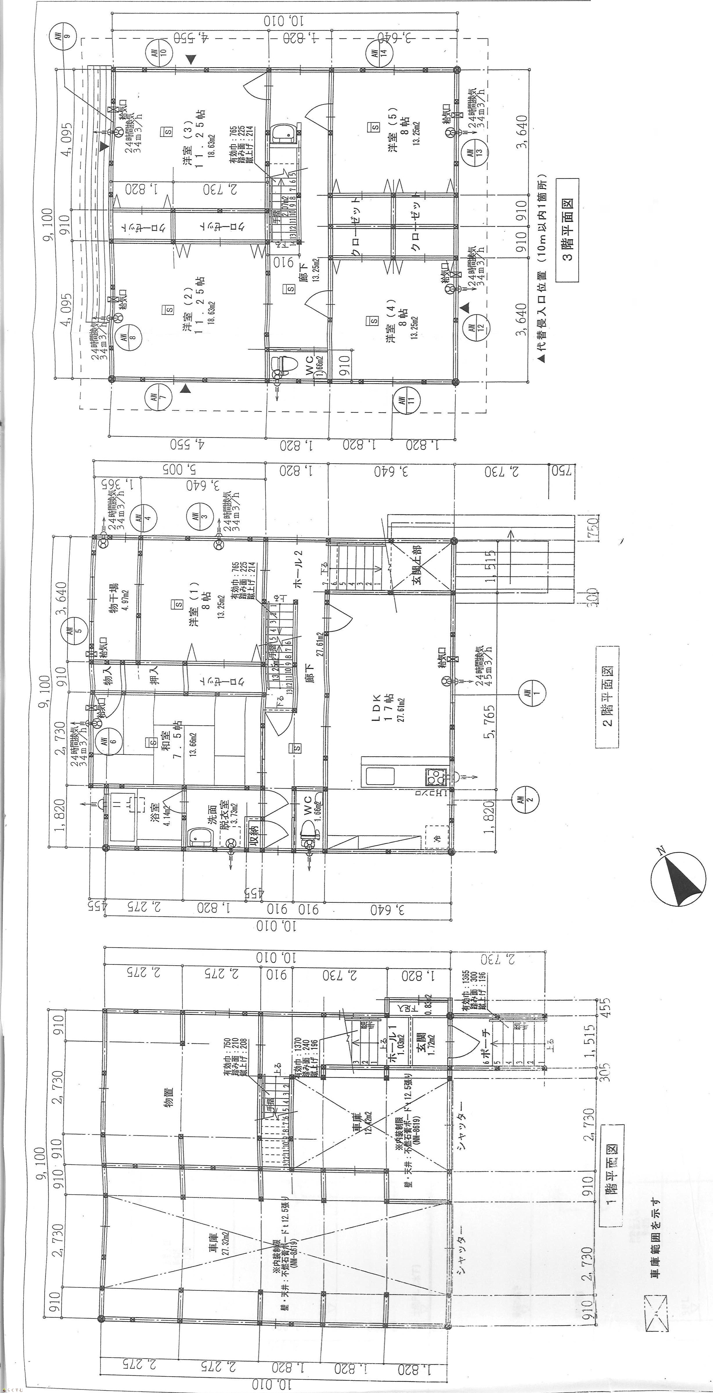
間取り
物件画像
※画像クリックで拡大表示
現地外観
物件画像
※画像クリックで拡大表示
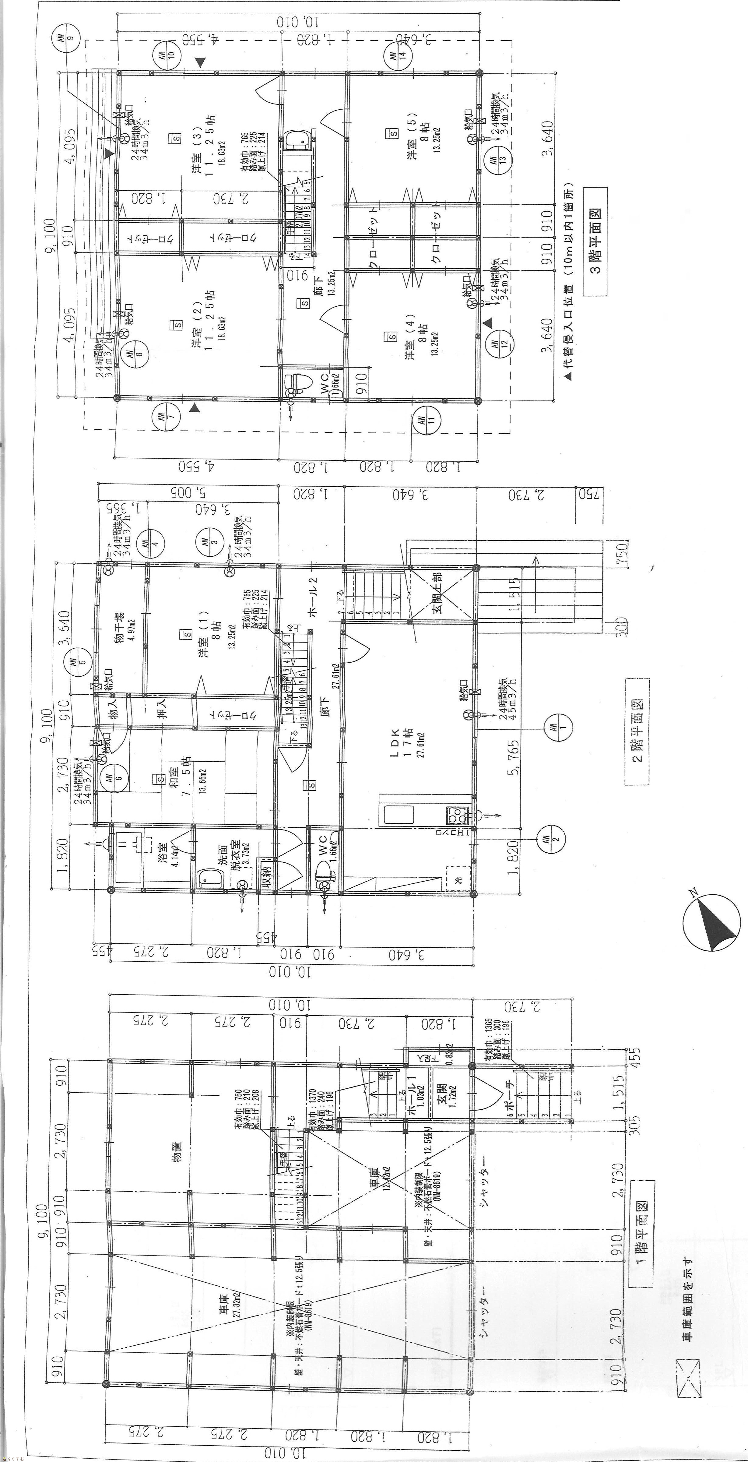
間取り図
詳細画像
物件画像
玄関
物件画像
17帖LDK
物件画像
IH搭載カウンターシステムキッチン
物件画像
洋室①
物件画像
洋室②
物件画像
洋室③
物件画像
洋室④
物件画像
浴室
物件画像
洗面台
物件画像
トイレ
物件画像
シューズクローク
物件画像
地図画像


物件概要

物件コード 00277-200405
物件名 妙高市長森
交通 駅:妙高はねうまライン 新井駅から徒歩29分
物件所在地 新潟県妙高市長森1390-1
物件種別 新築一戸建て
構造 木造鉄筋コン 階建 地上3階建
建ぺい率/容積率 70%/200%
建物面積 1階 91.91㎡/ 2階 94.4㎡/ 3階 91.09㎡/ 計 277.4㎡ /83.91坪
土地面積 749㎡ /226.57坪
築年月 2024年8月(築1年)
入居(引き渡し)時期 随時入居(引き渡し)可
用途地域 用途の指定のない地域 地目 宅地  (現状:宅地)
都市計画 非線引き都市計画区域 学校区 新井小学校(1,251m)・新井中学校(859m)
形状 間口 27.8m 道路 南東側約8.7m
私道 - その他の制限 -
  • 妙高市長森
    有限会社田村家具店
  • この物件を問い合わせる/無料
  • TEL: 025-523-2438 025-523-2438

物件詳細情報

所在階/階数 - 号室 -
販売価格 39,750,000円 方位 南東
間取り 6LDK (和室:7.5畳) (洋室:8、8、8、11.25、11.25)
LDK17
専有面積 - バルコニー面積 -
その他面積 - 駐車場 -
管理費 - 修繕積立金 -
現況 空家
仲介手数料 1,377,750円
利用制限 -
設備 前面道路6m以上、日当り良好、LDK15畳以上、駐車場3台以上、庭あり、TVインターホン、複層ガラス、システムキッチン、カウンターキッチン、IHクッキングヒーター、追いだき機能付き、バス1坪以上、温水洗浄便座、シャワー付き洗面台、エアコン、上水道、下水道、電気、シューズBOX、即引き渡し可能
取引態様 一般
備考 ・県道428号線に面した令和5年新築の築浅未入居物件です☆
・オール電化搭載でLPガス地域には嬉しいシステムです♪
・高床車庫3台+平置き2台で5台の駐車が可能です☆
・内装のこだわりが光る至れり尽くせりな物件だと思います♪

※内覧をご希望の際は事前にご連絡をお願い致します。
※本体代金に別途諸費用が掛かります。
取り扱い会社

有限会社田村家具店

新潟県上越市稲田4-5-21

情報登録日 2025/06/02 次回更新予定日 2026/06/07
取引条件有効期限 2035/12/31
  • 妙高市長森
    有限会社田村家具店
  • この物件を問い合わせる/無料
  • TEL: 025-523-2438 025-523-2438

この物件の地図・周辺情報・行政情報

この物件の周辺情報・行政情報を詳しく見る
【周辺情報】
物件の近くにあるコンビニや銀行・学校など、アイコン付のマップで詳しく表示できます!
【行政情報】
水道料や下水道料・ガス料金など、暮らしに関係のある情報を表示しています。

担当取扱い店舗情報

取扱い店舗画像
有限会社田村家具店
TEL: 025-523-2438
所在地: 新潟県上越市稲田4-5-21
交通: 高田駅
営業時間: 午前9:00~午後18:00/定休日:水曜日 第1、第3日曜日
免許番号: 新潟県知事(10)第2792号
所属団体名: 公社 新潟県宅地建物取引協会 上越支部
取引態様: 一般