| 物件コード | 00277-200405 | ||
|---|---|---|---|
| 物件名 | 妙高市長森 | ||
| 交通 | 駅:妙高はねうまライン 新井駅から徒歩29分 | ||
| 物件所在地 | 新潟県妙高市長森1390-1 | ||
| 物件種別 | 新築一戸建て | ||
| 構造 | 木造鉄筋コン | 階建 | 地上3階建 |
| 建ぺい率/容積率 | 70%/200% | ||
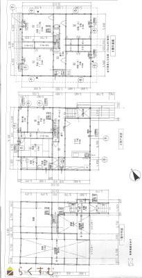
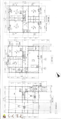
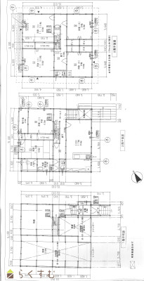
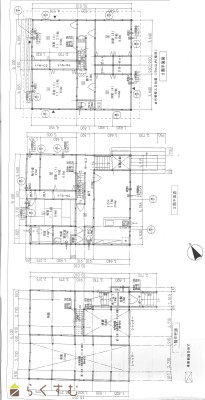
| 建物面積 | 1階 91.91㎡/ 2階 94.4㎡/ 3階 91.09㎡/ 計 277.4㎡ /83.91坪 | ||
| 土地面積 | 749㎡ /226.57坪 | ||
| 築年月 | 2024年8月(築1年) | ||
| 入居時期 | 随時入居(引き渡し)可 | ||
| 用途地域 | 用途の指定のない地域 | 地目 | 宅地 (現状:宅地) |
| 都市計画 | 非線引き都市計画区域 | 学校区 | 新井小学校(1,251m)・新井中学校(859m) |
| 形状 | 間口 27.8m | 道路 | 南東側約8.7m |
| 私道 | - | ||
| 所在階/階数 | - | 号室 | - |
|---|---|---|---|
| 販売価格 | 39,750,000円 | 方位 | 南東 |
| 間取り |
6LDK (和室:7.5畳) (洋室:8、8、8、11.25、11.25) LDK17 |
||
| 専有面積 | - | バルコニー面積 | - |
| その他面積 | - | 駐車場 | - |
| 管理費 | - | 修繕積立金 | - |
| 現況 | 空家 | ||
| 仲介手数料 | 1,377,750円 | ||
| 利用制限 | - | ||
| 設備 | 前面道路6m以上、日当り良好、LDK15畳以上、駐車場3台以上、庭あり、TVインターホン、複層ガラス、システムキッチン、カウンターキッチン、IHクッキングヒーター、追いだき機能付き、バス1坪以上、温水洗浄便座、シャワー付き洗面台、エアコン、上水道、下水道、電気、シューズBOX、即引き渡し可能 | ||
| 取引態様 | 一般 | ||
| 備考 | ・県道428号線に面した令和5年新築の築浅未入居物件です☆ ・オール電化搭載でLPガス地域には嬉しいシステムです♪ ・高床車庫3台+平置き2台で5台の駐車が可能です☆ ・内装のこだわりが光る至れり尽くせりな物件だと思います♪ ※内覧をご希望の際は事前にご連絡をお願い致します。 ※本体代金に別途諸費用が掛かります。 |
||
| 情報登録日 | 2025/06/02 | 次回更新予定日 | 2026/06/05 |
| 取引条件有効期限 | 2035/12/31 | ||
|
|
|
|
|
|
| TEL: | 025-523-2438 |
|---|---|
| 所在地: | 新潟県上越市稲田4-5-21 |
| 交通: | 高田駅 |
| 営業時間: | 午前9:00~午後18:00/定休日:水曜日 第1、第3日曜日 |
| 免許番号: | 新潟県知事(10)第2792号 |
| 所属団体名: | 公社 新潟県宅地建物取引協会 上越支部 |
| 取引態様: | 一般 |