新潟県長岡市花園3丁目1ー16付近 新築一戸建て 4LDK 28,800,000円の物件情報

\長岡東バイパス近く!アクセス良好/ ■前面道路16m、歩道あり ■駐車2台可能 ■スーパーなどの商業施設が徒歩圏内

物件名/所在地 詳細 価格
(新築住宅)長岡市花園
新潟県長岡市花園3丁目1ー16付近
  • 土地面積
    :145.96㎡ /44.15坪
  • 建物面積
    :92.74㎡ /28.05坪
  • 間取り
    :4LDK
  • 築年月
    :2025年11月
28,800,000
  • (新築住宅)長岡市花園
    新潟土地建物販売センター 株式会社
  • この物件を問い合わせる/無料
  • TEL: 0258-89-8245 0258-89-8245

物件画像

外観
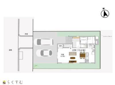
間取り
物件画像
※画像クリックで拡大表示
シンプルで洗練された美しい外観!お気軽にお問い合わせください
物件画像
※画像クリックで拡大表示
収納充実&家事動線◎機能性に優れた4LDKプラン
詳細画像
物件画像
駐車スペース2台(車種により駐車可)
物件画像
モノトーンに木目とブラウンを添え、程よく柔らかな印象のLDK
物件画像
13.6帖LDKと6帖洋室がつながる開放的なレイアウト。
物件画像
南向きの掃き出し窓が、室内に心地よい陽光を届けます。
物件画像
手元が見えにくいカウンターキッチンで生活感を抑えた空間に。
物件画像
背面はお好みのカップボードが置け、収納スペースも確保しました
物件画像
扉付きの可動棚で、すっきり収納できます。
物件画像
洗面室にはホスクリーン付きで洗濯機からそのまま干せます♪
物件画像
落ち着いた空間で、一日の疲れをゆったり癒せます。
物件画像
1階のトイレは、来客用としても使いやすい位置にあります。
物件画像
2階もトイレがあり、ご家族みんなが使いやすい2箇所設置が魅力
物件画像
2階洋室7帖 エアコン付きで、主寝室にお勧め◎
物件画像
2階洋室5.2帖 服等が出し入れしやすいオープンクローゼット
物件画像
2階洋室5.2帖 プライベート空間としても使いやすい空間です
物件画像
2階ホールにホスクリーンを設置済み!室内で安心して干せますね
物件画像
玄関にシューズボックスを備え、L字型のゆとりある動線を確保。
物件画像
モニターホン付きの玄関で、防犯面も配慮されています。
物件画像
前面道路は西側16m市道、消雪パイプや歩道も完備。


物件概要

スーパー・薬局まで徒歩8分圏内と暮らしやすい立地です♪JR長岡駅までも車で5分以内とアクセス良好♪詳細はお気軽にお問い合わせください(^^♪
物件コード 00239-200566
物件名 (新築住宅)長岡市花園
交通 駅:上越新幹線 長岡駅から徒歩23分、バス:花園団地入口から徒歩1分
物件所在地 新潟県長岡市花園3丁目1ー16付近
物件種別 新築一戸建て
構造 木造 階建 地上2階建
建ぺい率/容積率 50%/100%
建物面積 計 92.74㎡ /28.05坪
土地面積 145.96㎡ /44.15坪
築年月 2025年11月(築6ヶ月)
入居(引き渡し)時期 2026年2月(モデルハウス使用のため)
用途地域 第1種低層住居専用地域 地目 宅地
都市計画 市街化区域 学校区 豊田小学校(1,000m)・旭岡中学校(1,000m)
形状 - 道路 西側16.0m公道
私道 - その他の制限 法22条指定区域
  • (新築住宅)長岡市花園
    新潟土地建物販売センター 株式会社
  • この物件を問い合わせる/無料
  • TEL: 0258-89-8245 0258-89-8245

物件詳細情報

所在階/階数 - 号室 -
販売価格 28,800,000円 方位 南西
間取り 4LDK (洋室:7、6、5.2、5.2)
LDK13.6
土間収納、パントリー、サンルーム、洗面室3帖あり
専有面積 - バルコニー面積 -
その他面積 - 駐車場 -
管理費 - 修繕積立金 -
現況 空家
仲介手数料 1,016,400円
利用制限 -
設備 整形地、前面道路6m以上、日当り良好、閑静な住宅街、スーパー近く、BELS/省エネ基準適合認定建物、全室フローリング、駐車場2台以上、庭あり、TVインターホン、複層ガラス、システムキッチン、カウンターキッチン、IHクッキングヒーター、3口コンロ、追いだき機能付き、バス1坪以上、温水洗浄便座、シャワー付き洗面台、24時間換気システム、オール電化、省エネ給湯、高気密高断熱住宅、上水道、下水道、電気、全居室収納あり、シューズインクローゼット、照明器具付き、バリアフリー
取引態様 一般
備考 豊田小学校 約1000m 徒歩約13分
旭岡中学校 約1000m 徒歩約13分

【交通】
JR上越新幹線 長岡駅 徒歩約23分
越後交通バス 花園団地入口 徒歩約1分

-物件情報-
■全居室収納+パントリー 収納充実!
■自転車やベビーカーもそのまま入れられる土間収納あり
■火を使わない安心安全なオール電化
■2階サンルームあり 雨の日のお洗濯も安心
■リビングに隣接した6帖洋室は暮らしに合わせて自由に使える間取
取り扱い会社

新潟土地建物販売センター 株式会社

新潟県長岡市台町1-7-331階

情報登録日 2025/12/01 次回更新予定日 2026/06/05
取引条件有効期限 2026/12/31
  • (新築住宅)長岡市花園
    新潟土地建物販売センター 株式会社
  • この物件を問い合わせる/無料
  • TEL: 0258-89-8245 0258-89-8245

この物件の地図・周辺情報・行政情報

この物件の周辺情報・行政情報を詳しく見る
【周辺情報】
物件の近くにあるコンビニや銀行・学校など、アイコン付のマップで詳しく表示できます!
【行政情報】
水道料や下水道料・ガス料金など、暮らしに関係のある情報を表示しています。

担当取扱い店舗情報

取扱い店舗画像
新潟土地建物販売センター 株式会社
TEL: 0258-89-8245
所在地: 新潟県長岡市台町1-7-331階
交通: 長岡駅
営業時間: 9:00~18:00/定休日:なし
免許番号: 新潟県知事(3)第5151号
所属団体名: 公社 新潟県宅地建物取引協会 新潟支部
取引態様: 一般
ホームページ: https://niigata-tochitate.jp/