| スーパー・薬局まで徒歩8分圏内と暮らしやすい立地です♪JR長岡駅までも車で5分以内とアクセス良好♪詳細はお気軽にお問い合わせください(^^♪ | |||
| 物件コード | 00239-200566 | ||
|---|---|---|---|
| 物件名 | (新築住宅)長岡市花園 | ||
| 交通 | 駅:上越新幹線 長岡駅から徒歩23分、バス:花園団地入口から徒歩1分 | ||
| 物件所在地 | 新潟県長岡市花園3丁目1ー16付近 | ||
| 物件種別 | 新築一戸建て | ||
| 構造 | 木造 | 階建 | 地上2階建 |
| 建ぺい率/容積率 | 50%/100% | ||
| 建物面積 | 計 92.74㎡ /28.05坪 | ||
| 土地面積 | 145.96㎡ /44.15坪 | ||
| 築年月 | 2025年11月(築6ヶ月) | ||
| 入居時期 | 2026年2月(モデルハウス使用のため) | ||
| 用途地域 | 第1種低層住居専用地域 | 地目 | 宅地 |
| 都市計画 | 市街化区域 | 学校区 | 豊田小学校(1,000m)・旭岡中学校(1,000m) |
| 形状 | - | 道路 | 西側16.0m公道 |
| 私道 | - | ||
| 所在階/階数 | - | 号室 | - |
|---|---|---|---|
| 販売価格 | 28,800,000円 | 方位 | 南西 |
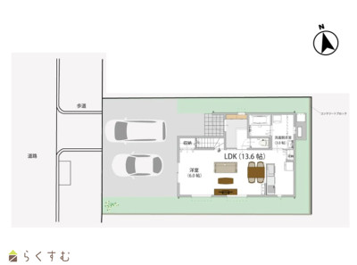
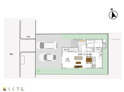
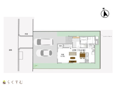
| 間取り |
4LDK (洋室:7、6、5.2、5.2) LDK13.6 土間収納、パントリー、サンルーム、洗面室3帖あり |
||
| 専有面積 | - | バルコニー面積 | - |
| その他面積 | - | 駐車場 | - |
| 管理費 | - | 修繕積立金 | - |
| 現況 | 空家 | ||
| 仲介手数料 | 1,016,400円 | ||
| 利用制限 | - | ||
| 設備 | 整形地、前面道路6m以上、日当り良好、閑静な住宅街、スーパー近く、BELS/省エネ基準適合認定建物、全室フローリング、駐車場2台以上、庭あり、TVインターホン、複層ガラス、システムキッチン、カウンターキッチン、IHクッキングヒーター、3口コンロ、追いだき機能付き、バス1坪以上、温水洗浄便座、シャワー付き洗面台、24時間換気システム、オール電化、省エネ給湯、高気密高断熱住宅、上水道、下水道、電気、全居室収納あり、シューズインクローゼット、照明器具付き、バリアフリー | ||
| 取引態様 | 一般 | ||
| 備考 | 豊田小学校 約1000m 徒歩約13分 旭岡中学校 約1000m 徒歩約13分 【交通】 JR上越新幹線 長岡駅 徒歩約23分 越後交通バス 花園団地入口 徒歩約1分 -物件情報- ■全居室収納+パントリー 収納充実! ■自転車やベビーカーもそのまま入れられる土間収納あり ■火を使わない安心安全なオール電化 ■2階サンルームあり 雨の日のお洗濯も安心 ■リビングに隣接した6帖洋室は暮らしに合わせて自由に使える間取 |
||
| 情報登録日 | 2025/12/01 | 次回更新予定日 | 2026/06/05 |
| 取引条件有効期限 | 2026/12/31 | ||
|
|
|
|
| TEL: | 0258-89-8245 |
|---|---|
| 所在地: | 新潟県長岡市台町1-7-331階 |
| 交通: | 長岡駅 |
| 営業時間: | 9:00~18:00/定休日:なし |
| 免許番号: | 新潟県知事(3)第5151号 |
| 所属団体名: | 公社 新潟県宅地建物取引協会 新潟支部 |
| 取引態様: | 一般 |