新潟県長岡市川崎3丁目2191-2 新築一戸建て 3LDK 34,600,000円の物件情報

【仲介手数料不要】30.7坪に「欲しい」がつまった新築住宅

物件名/所在地 詳細 価格
川崎モデルハウス販売
新潟県長岡市川崎3丁目2191-2
  • 土地面積
    :236.63㎡ /71.58坪
  • 建物面積
    :101.7㎡ /30.76坪
  • 間取り
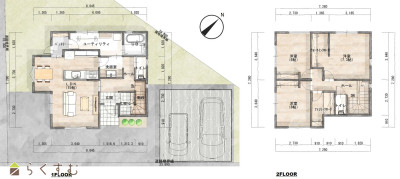
    :3LDK
  • 築年月
    :2025年7月
34,600,000
  • 川崎モデルハウス販売
    株式会社 ハーティーホーム
  • この物件を問い合わせる/無料
  • TEL: 0258-21-3266 0258-21-3266

物件画像

外観
間取り
物件画像
※画像クリックで拡大表示
外観
物件画像
※画像クリックで拡大表示
間取り
詳細画像
物件画像
エントランス
物件画像
玄関
物件画像
リビング
物件画像
リビング
物件画像
パントリー
物件画像
パントリー
物件画像
洗面所
物件画像
サンルーム
物件画像
バスルーム
物件画像
洗面所
物件画像
トイレ
物件画像
階段室
物件画像
寝室
物件画像
洋室
物件画像
2階ファミリークローク
物件画像
外観
物件画像
外観
物件画像
印刷用地図


物件概要

「耐震等級3」 「セルロースファイバー断熱」 「C値0.3㎠/㎡」
物件コード 00169-200018
物件名 川崎モデルハウス販売
交通 駅:信越線 長岡駅から徒歩26分、バス:東川崎三叉路から徒歩2分
物件所在地 新潟県長岡市川崎3丁目2191-2
物件種別 新築一戸建て
構造 木造 階建 地上2階建
建ぺい率/容積率 60%/200%
建物面積 1階 52.02㎡/ 2階 49.68㎡/ 計 101.7㎡ /30.76坪
土地面積 236.63㎡ /71.58坪
築年月 2025年7月(築10ヶ月)
入居(引き渡し)時期 相談
用途地域 第2種中高層住居専用地域 地目 宅地
都市計画 市街化区域 学校区 川崎小学校(1,012m)・東北中学校(552m)
形状 間口 23.89m × 奥行 18.3m 道路 市道178号 幅員4.4m
私道 - その他の制限 -
  • 川崎モデルハウス販売
    株式会社 ハーティーホーム
  • この物件を問い合わせる/無料
  • TEL: 0258-21-3266 0258-21-3266

物件詳細情報

所在階/階数 - 号室 -
販売価格 34,600,000円 方位 南東
間取り 3LDK (洋室:6、6、7.5)
LDK15
専有面積 - バルコニー面積 -
その他面積 - 駐車場 -
管理費 - 修繕積立金 -
現況 -
仲介手数料 なし
利用制限 -
設備 角地、日当り良好、設計住宅性能評価付き、耐震構造、BELS/省エネ基準適合認定建物、瑕疵担保保険付き、建物確認・完了検査済証あり、LDK15畳以上、全室フローリング、駐車場3台以上、南向き、TVインターホン、システムキッチン、IHクッキングヒーター、食器洗浄乾燥機、3口コンロ、追いだき機能付き、バス1坪以上、温水洗浄便座、シャワー付き洗面台、エアコン、24時間換気システム、省エネ給湯、高気密高断熱住宅、都市ガス、上水道、下水道、電気、ウォークインクローゼット、全居室収納あり、シューズインクローゼット、BS端子、照明器具付き
取引態様 売主
備考 ■玄関シューズクローク■食洗機付キッチン■造り付洗面化粧台■トイレ個別手洗■1階サンルーム■パントリー■2台用カーポート+2台 計4台駐車可
取り扱い会社

株式会社 ハーティーホーム

新潟県長岡市三ツ郷屋2丁目1-15

情報登録日 2026/02/05 次回更新予定日 2026/06/05
取引条件有効期限 2025/12/06
  • 川崎モデルハウス販売
    株式会社 ハーティーホーム
  • この物件を問い合わせる/無料
  • TEL: 0258-21-3266 0258-21-3266

この物件の地図・周辺情報・行政情報

この物件の周辺情報・行政情報を詳しく見る
【周辺情報】
物件の近くにあるコンビニや銀行・学校など、アイコン付のマップで詳しく表示できます!
【行政情報】
水道料や下水道料・ガス料金など、暮らしに関係のある情報を表示しています。

担当取扱い店舗情報

取扱い店舗画像
株式会社 ハーティーホーム
TEL: 0258-21-3266
所在地: 新潟県長岡市三ツ郷屋2丁目1-15
交通:
営業時間: 9:00~18:00/定休日:不定休
免許番号: 新潟県知事(2)第5037号
所属団体名: 全日本不動産協会 新潟県本部
取引態様: 売主
ホームページ: http://heartyhome.jp/