| 「耐震等級3」 「セルロースファイバー断熱」 「C値0.3㎠/㎡」 | |||
| 物件コード | 00169-200018 | ||
|---|---|---|---|
| 物件名 | 川崎モデルハウス販売 | ||
| 交通 | 駅:信越線 長岡駅から徒歩26分、バス:東川崎三叉路から徒歩2分 | ||
| 物件所在地 | 新潟県長岡市川崎3丁目2191-2 | ||
| 物件種別 | 新築一戸建て | ||
| 構造 | 木造 | 階建 | 地上2階建 |
| 建ぺい率/容積率 | 60%/200% | ||
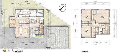
| 建物面積 | 1階 52.02㎡/ 2階 49.68㎡/ 計 101.7㎡ /30.76坪 | ||
| 土地面積 | 236.63㎡ /71.58坪 | ||
| 築年月 | 2025年7月(築10ヶ月) | ||
| 入居時期 | 相談 | ||
| 用途地域 | 第2種中高層住居専用地域 | 地目 | 宅地 |
| 都市計画 | 市街化区域 | 学校区 | 川崎小学校(1,012m)・東北中学校(552m) |
| 形状 | 間口 23.89m × 奥行 18.3m | 道路 | 市道178号 幅員4.4m |
| 私道 | - | ||
| 所在階/階数 | - | 号室 | - |
|---|---|---|---|
| 販売価格 | 34,600,000円 | 方位 | 南東 |
| 間取り |
3LDK (洋室:6、6、7.5) LDK15 |
||
| 専有面積 | - | バルコニー面積 | - |
| その他面積 | - | 駐車場 | - |
| 管理費 | - | 修繕積立金 | - |
| 現況 | - | ||
| 仲介手数料 | なし | ||
| 利用制限 | - | ||
| 設備 | 角地、日当り良好、設計住宅性能評価付き、耐震構造、BELS/省エネ基準適合認定建物、瑕疵担保保険付き、建物確認・完了検査済証あり、LDK15畳以上、全室フローリング、駐車場3台以上、南向き、TVインターホン、システムキッチン、IHクッキングヒーター、食器洗浄乾燥機、3口コンロ、追いだき機能付き、バス1坪以上、温水洗浄便座、シャワー付き洗面台、エアコン、24時間換気システム、省エネ給湯、高気密高断熱住宅、都市ガス、上水道、下水道、電気、ウォークインクローゼット、全居室収納あり、シューズインクローゼット、BS端子、照明器具付き | ||
| 取引態様 | 売主 | ||
| 備考 | ■玄関シューズクローク■食洗機付キッチン■造り付洗面化粧台■トイレ個別手洗■1階サンルーム■パントリー■2台用カーポート+2台 計4台駐車可 | ||
| 情報登録日 | 2026/02/05 | 次回更新予定日 | 2026/06/05 |
| 取引条件有効期限 | 2025/12/06 | ||
|
|
|
|
|
|
| TEL: | 0258-21-3266 |
|---|---|
| 所在地: | 新潟県長岡市三ツ郷屋2丁目1-15 |
| 交通: | |
| 営業時間: | 9:00~18:00/定休日:不定休 |
| 免許番号: | 新潟県知事(2)第5037号 |
| 所属団体名: | 全日本不動産協会 新潟県本部 |
| 取引態様: | 売主 |