新潟県長岡市曲新町1丁目4-13 中古一戸建て 4DK 6,600,000円の物件情報

物件名/所在地 詳細 価格
曲新町1丁目 売住宅
新潟県長岡市曲新町1丁目4-13
  • 土地面積
    :149.3㎡ /45.16坪
  • 建物面積
    :106.75㎡ /32.29坪
  • 間取り
    :4DK
  • 築年月
    :1972年5月
6,600,000
  • 曲新町1丁目 売住宅
    株式会社 棚橋不動産
  • この物件を問い合わせる/無料
  • TEL: 0258-31-1700 0258-31-1700

物件画像

外観
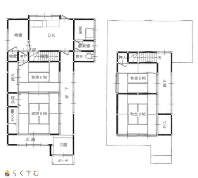
間取り
物件画像
※画像クリックで拡大表示
外観
物件画像
※画像クリックで拡大表示
間取り
詳細画像
物件画像
和室
物件画像
和室
物件画像
和室
物件画像
和室
物件画像
キッチン
物件画像
キッチン
物件画像
洗面所
物件画像
バスルーム
物件画像
トイレ
物件画像
収納
物件画像
階段
物件画像
廊下
物件画像
廊下
物件画像
広縁
物件画像
廊下
物件画像
廊下
物件画像
玄関
物件画像
測量図
物件画像
印刷用地図


物件概要

物件コード 00117-200125
物件名 曲新町1丁目 売住宅
交通 駅:信越線 宮内駅から徒歩14分
物件所在地 新潟県長岡市曲新町1丁目4-13
物件種別 中古一戸建て
構造 木造 階建 地上2階建
建ぺい率/容積率 50%/100%
建物面積 1階 71.45㎡/ 2階 35.3㎡/ 計 106.75㎡ /32.29坪
土地面積 149.3㎡ /45.16坪
築年月 1972年5月(築54年)
入居(引き渡し)時期 相談
用途地域 第1種低層住居専用地域 地目 宅地  (現状:宅地)
都市計画 市街化区域 学校区 上組小学校(844m)・宮内中学校(935m)
形状 間口 9.01m × 奥行 16.57m 道路 南向き 位置指定道路 4m 消雪あり
私道 - その他の制限 -
  • 曲新町1丁目 売住宅
    株式会社 棚橋不動産
  • この物件を問い合わせる/無料
  • TEL: 0258-31-1700 0258-31-1700

物件詳細情報

所在階/階数 - 号室 -
販売価格 6,600,000円 方位
間取り 4DK (和室:8畳、8畳、6畳、6畳)
DK6
専有面積 - バルコニー面積 -
その他面積 4.95㎡ /1.49坪  物置部屋 駐車場 -
管理費 - 修繕積立金 -
現況 居住中
仲介手数料 330,000円
利用制限 -
設備 閑静な住宅街、駐車3台以上可能、南向き、ガスコンロ設置可能、追いだき機能付き、温水洗浄便座、エアコンあり、都市ガス、上水道、下水道、全居室収納あり
取引態様 仲介
備考 カーポート1台付き 前面道路消雪あり
取り扱い会社

株式会社 棚橋不動産

新潟県長岡市泉1-7-1

情報登録日 2026/03/26 次回更新予定日 2026/06/05
取引条件有効期限 2026/04/30
  • 曲新町1丁目 売住宅
    株式会社 棚橋不動産
  • この物件を問い合わせる/無料
  • TEL: 0258-31-1700 0258-31-1700

この物件の地図・周辺情報・行政情報

この物件の周辺情報・行政情報を詳しく見る
【周辺情報】
物件の近くにあるコンビニや銀行・学校など、アイコン付のマップで詳しく表示できます!
【行政情報】
水道料や下水道料・ガス料金など、暮らしに関係のある情報を表示しています。

担当取扱い店舗情報

取扱い店舗画像
株式会社 棚橋不動産
TEL: 0258-31-1700
所在地: 新潟県長岡市泉1-7-1
交通: 北長岡駅
営業時間: 8:30~17:30/定休日:土・日・祝
免許番号: 新潟県知事(5)第4749号
所属団体名: 全日本不動産協会 新潟県本部
取引態様: 仲介