| 物件コード | 00117-200125 | ||
|---|---|---|---|
| 物件名 | 曲新町1丁目 売住宅 | ||
| 交通 | 駅:信越線 宮内駅から徒歩14分 | ||
| 物件所在地 | 新潟県長岡市曲新町1丁目4-13 | ||
| 物件種別 | 中古一戸建て | ||
| 構造 | 木造 | 階建 | 地上2階建 |
| 建ぺい率/容積率 | 50%/100% | ||
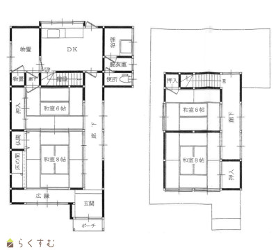
| 建物面積 | 1階 71.45㎡/ 2階 35.3㎡/ 計 106.75㎡ /32.29坪 | ||
| 土地面積 | 149.3㎡ /45.16坪 | ||
| 築年月 | 1972年5月(築54年) | ||
| 入居時期 | 相談 | ||
| 用途地域 | 第1種低層住居専用地域 | 地目 | 宅地 (現状:宅地) |
| 都市計画 | 市街化区域 | 学校区 | 上組小学校(844m)・宮内中学校(935m) |
| 形状 | 間口 9.01m × 奥行 16.57m | 道路 | 南向き 位置指定道路 4m 消雪あり |
| 私道 | - | ||
| 所在階/階数 | - | 号室 | - |
|---|---|---|---|
| 販売価格 | 6,600,000円 | 方位 | 南 |
| 間取り |
4DK (和室:8畳、8畳、6畳、6畳) DK6 |
||
| 専有面積 | - | バルコニー面積 | - |
| その他面積 | 4.95㎡ /1.49坪 物置部屋 | 駐車場 | - |
| 管理費 | - | 修繕積立金 | - |
| 現況 | 居住中 | ||
| 仲介手数料 | 330,000円 | ||
| 利用制限 | - | ||
| 設備 | 閑静な住宅街、駐車3台以上可能、南向き、ガスコンロ設置可能、追いだき機能付き、温水洗浄便座、エアコンあり、都市ガス、上水道、下水道、全居室収納あり | ||
| 取引態様 | 仲介 | ||
| 備考 | カーポート1台付き 前面道路消雪あり | ||
| 情報登録日 | 2026/03/26 | 次回更新予定日 | 2026/06/05 |
| 取引条件有効期限 | 2026/04/30 | ||
|
|
|
|
|
|
| TEL: | 0258-31-1700 |
|---|---|
| 所在地: | 新潟県長岡市泉1-7-1 |
| 交通: | 北長岡駅 |
| 営業時間: | 8:30~17:30/定休日:土・日・祝 |
| 免許番号: | 新潟県知事(5)第4749号 |
| 所属団体名: | 全日本不動産協会 新潟県本部 |
| 取引態様: | 仲介 |