新潟県南魚沼市坂戸32-4 投資物件・その他 35,000,000円の物件情報

大浴場付きの保養所です!修繕必要箇所はあります。

物件名/所在地 詳細 価格
表面利回り
南魚沼市坂戸 売ビル(温泉引込可能)
新潟県南魚沼市坂戸32-4
  • 土地面積
    :1,930.98㎡ /584.12坪
  • 建ぺい率
    :80%
  • 容積率
    :400%
35,000,000
-
  • 南魚沼市坂戸 売ビル(温泉引込可能)
    ブレイン・リアルエステート合同会社
  • この物件を問い合わせる/無料
  • TEL: 0258-86-6934 0258-86-6934

物件画像

外観
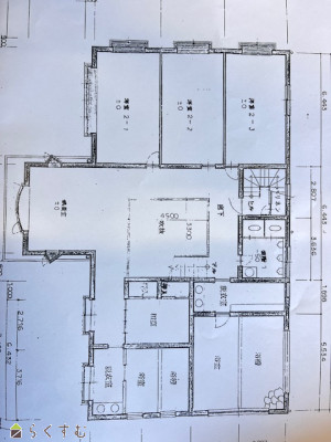
間取り
物件画像
※画像クリックで拡大表示
外観
物件画像
※画像クリックで拡大表示
間取り
詳細画像
物件画像
エントランス
物件画像
キッチン
物件画像
キッチン
物件画像
キッチン
物件画像
バスルーム
物件画像
エントランス
物件画像
大浴場
物件画像
大浴場
物件画像
トイレ
物件画像
間取り
物件画像
洋室
物件画像
洋室
物件画像
ホール
物件画像
2階ホール
物件画像
駐車場
物件画像
屋上
物件画像
景色
物件画像
魚野川まで徒歩30秒
物件画像
印刷用地図


物件概要

敷地内は融雪井戸がありますので冬も安心です。
物件コード 00044-200710
物件名 南魚沼市坂戸 売ビル(温泉引込可能)
交通 駅:上越線 六日町駅から徒歩13分、バス:坂戸橋東詰から徒歩2分
物件所在地 新潟県南魚沼市坂戸32-4
物件種別 投資物件・その他
物件区分 その他
構造 鉄筋コン 階建 地上2階建
建ぺい率/容積率 80%/400%
建物面積 1階 242.85㎡/ 2階 220.6㎡/ 計 463.45㎡ /140.19坪
土地面積 1,930.98㎡ /584.12坪
築年月 1992年4月(築34年)
入居(引き渡し)時期 随時入居(引き渡し)可
用途地域 商業地域 地目 宅地
都市計画 非線引き都市計画区域 学校区 六日町小学校(378m)・六日町中学校(1,288m)
形状 間口 49.06m × 奥行 40.21m 道路 南側:公道 16m
私道 - その他の制限 -
  • 南魚沼市坂戸 売ビル(温泉引込可能)
    ブレイン・リアルエステート合同会社
  • この物件を問い合わせる/無料
  • TEL: 0258-86-6934 0258-86-6934

物件詳細情報

所在階/階数 - 号室 -
販売価格 35,000,000円 方位 -
表面利回り(満室想定時) - 満室想定年収 - (想定月収: - )
現行利回り - 現行年間年収 -
住戸数 -
間取り 5LDK
専有面積 - バルコニー面積 -
その他面積 - 駐車場 無料
管理費 - 修繕積立金 -
現況 居住中
仲介手数料 1,221,000円
利用制限 -
設備 南側道路面す、駐車場(近隣含む)、公営水道、下水道、浄化槽、事業向け、別荘、田舎暮らし
取引態様 一般
備考 ■現況有姿での引渡しとなります。
取り扱い会社

ブレイン・リアルエステート合同会社

新潟県長岡市大島本町3丁目10番8号202号室

情報登録日 2026/04/02 次回更新予定日 2026/06/05
取引条件有効期限 2026/04/20
  • 南魚沼市坂戸 売ビル(温泉引込可能)
    ブレイン・リアルエステート合同会社
  • この物件を問い合わせる/無料
  • TEL: 0258-86-6934 0258-86-6934

この物件の地図・周辺情報・行政情報

この物件の周辺情報・行政情報を詳しく見る
【周辺情報】
物件の近くにあるコンビニや銀行・学校など、アイコン付のマップで詳しく表示できます!
【行政情報】
水道料や下水道料・ガス料金など、暮らしに関係のある情報を表示しています。

担当取扱い店舗情報

取扱い店舗画像
ブレイン・リアルエステート合同会社
TEL: 0258-86-6934
所在地: 新潟県長岡市大島本町3丁目10番8号202号室
交通:
営業時間: 9:30~18:00/定休日:水曜日、日曜日
免許番号: 新潟県知事(4)第4978号
所属団体名: ブレインリアルエステート合同会社
取引態様: 一般
ホームページ: http://www.brain-niigata.co.jp