新潟県長岡市東新町1丁目1-20 中古マンション 3LDK 14,800,000円の物件情報

◆南側バルコニーで陽当りが良いお部屋です♪ ◆売主につき仲介手数料不要! ◆R8までアクセス良好 

物件名/所在地 詳細 価格
サーパス東新町
402号室
新潟県長岡市東新町1丁目1-20
  • 専有面積
    :74.2㎡ /22.44坪
  • 間取り
    :3LDK
  • 築年月
    :2000年10月
14,800,000
  • サーパス東新町
    髙頭不動産 株式会社
  • この物件を問い合わせる/無料
  • TEL: 0120-1818-27 0120-1818-27

物件画像

外観
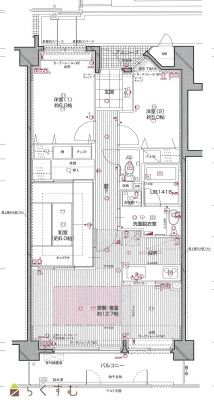
間取り
物件画像
※画像クリックで拡大表示
外観
物件画像
※画像クリックで拡大表示
間取図
詳細画像
物件画像
LDK
物件画像
キッチン
物件画像
浴室
物件画像
洗面
物件画像
WC
物件画像
玄関
物件画像
洋室5.0帖
物件画像
洋室6.0帖
物件画像
和室
物件画像
バルコニー
物件画像
玄関~廊下
物件画像
エントランスへのアプローチ
物件画像
エントランス
物件画像
エントランス前風除室
物件画像
駐輪場
物件画像
メールボックス/宅配ボックス
物件画像
地図画像


物件概要

物件コード 00040-201131
物件名 サーパス東新町
交通 駅:上越新幹線 長岡駅から徒歩20分、バス:昭和通りから徒歩5分
物件所在地 新潟県長岡市東新町1丁目1-20
物件種別 中古マンション
構造 鉄筋コン 階建 地上7階建
建ぺい率/容積率 70%/200%
建物面積 計 3,601.19㎡ /1,089.35坪
土地面積 1,633.99㎡ /494.28坪
築年月 2000年10月(築25年)
入居(引き渡し)時期 随時入居(引き渡し)可
用途地域 第1種住居地域 地目 宅地
都市計画 市街化区域 学校区 新町小学校(465m)・北中学校(1,571m)
形状 - 道路 西側公道7.7m、東側公道7.8m、北側公道7.7m
私道 - その他の制限 準防火地域
  • サーパス東新町
    髙頭不動産 株式会社
  • この物件を問い合わせる/無料
  • TEL: 0120-1818-27 0120-1818-27

物件詳細情報

所在階/階数 4階/7階 号室 402号室
販売価格 14,800,000円 方位
間取り 3LDK (和室:6畳) (洋室:6、5)
LDK12.7
専有面積 74.2㎡ /22.44坪 バルコニー面積 10.05㎡ /3.04坪
その他面積 - 駐車場 6,000円(軽専)
管理費 11,500円 修繕積立金 13,400円
現況 空家
仲介手数料 なし
利用制限 -
設備 2階以上、日当り良好、閑静な住宅街、外観タイル張り、洗濯機置き場、エレベーター、宅配BOX、タイヤ置き場あり、和室あり、平面駐車場、駐輪場、南向き、管理人常駐(日中)、セキュリティー良し、TV付きインターホン、エントランスオートロック、システムキッチン、対面式キッチン、3口コンロ、ガスコンロ設置済み、浴室乾燥機、温水洗浄便座、シャワー付き洗面台、エアコン、床暖房、都市ガス、公営水道、下水道、ルーフバルコニー、シューズBOX、BS端子、CS端子、即入居可能
取引態様 売主
備考 【その他費用】
◆上水道基本料金1,056円、下水道基本料金1,936円(2ヶ月毎に使用料と併せて管理費等と共に徴収)
◆自治会費
月額600円を年4回3ヶ月毎(1,800円)に管理費等と併せて徴収
◆タイヤストッカー使用の場合は、月額500円
取り扱い会社

髙頭不動産 株式会社

新潟県長岡市千歳1-3-25

情報登録日 2025/07/14 次回更新予定日 2025/11/19
取引条件有効期限 2025/09/18
  • サーパス東新町
    髙頭不動産 株式会社
  • この物件を問い合わせる/無料
  • TEL: 0120-1818-27 0120-1818-27

この物件の地図・周辺情報・行政情報

この物件の周辺情報・行政情報を詳しく見る
【周辺情報】
物件の近くにあるコンビニや銀行・学校など、アイコン付のマップで詳しく表示できます!
【行政情報】
水道料や下水道料・ガス料金など、暮らしに関係のある情報を表示しています。
ファミリーマート 長岡新町二丁目店(コンビニ)まで230m
ウエルシア長岡泉店 (調剤薬局)(ドラッグストア)まで760m

※カメラのアイコンがある場合は、マウスをポイントするとその施設の画像がご覧いただけます。


担当取扱い店舗情報

取扱い店舗画像
髙頭不動産 株式会社
TEL: 0120-1818-27
所在地: 新潟県長岡市千歳1-3-25
交通: 長岡駅
営業時間: 8時30分~17時30分(大手支店は9時~18時)/定休日:本社:土日祝日(事前予約での対応可能)、支店:日曜祝日第5土曜(毎年2月下旬から3月は休みなし)
免許番号: 新潟県知事(17)第191号
所属団体名: 新潟県宅地建物取引協会 長岡支部
取引態様: 売主
ホームページ: http://www.takato-f.com