| 物件コード | 00040-201131 | ||
|---|---|---|---|
| 物件名 | サーパス東新町 | ||
| 交通 | 駅:上越新幹線 長岡駅から徒歩20分、バス:昭和通りから徒歩5分 | ||
| 物件所在地 | 新潟県長岡市東新町1丁目1-20 | ||
| 物件種別 | 中古マンション | ||
| 構造 | 鉄筋コン | 階建 | 地上7階建 |
| 建ぺい率/容積率 | 70%/200% | ||
| 建物面積 | 計 3,601.19㎡ /1,089.35坪 | ||
| 土地面積 | 1,633.99㎡ /494.28坪 | ||
| 築年月 | 2000年10月(築25年) | ||
| 入居時期 | 随時入居(引き渡し)可 | ||
| 用途地域 | 第1種住居地域 | 地目 | 宅地 |
| 都市計画 | 市街化区域 | 学校区 | 新町小学校(465m)・北中学校(1,571m) |
| 形状 | - | 道路 | 西側公道7.7m、東側公道7.8m、北側公道7.7m |
| 私道 | - | ||
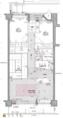
| 所在階/階数 | 4階/7階 | 号室 | 402号室 |
|---|---|---|---|
| 販売価格 | 14,800,000円 | 方位 | 南 |
| 間取り |
3LDK (和室:6畳) (洋室:6、5) LDK12.7 |
||
| 専有面積 | 74.2㎡ /22.44坪 | バルコニー面積 | 10.05㎡ /3.04坪 |
| その他面積 | - | 駐車場 | 6,000円(軽専) |
| 管理費 | 11,500円 | 修繕積立金 | 13,400円 |
| 現況 | 空家 | ||
| 仲介手数料 | なし | ||
| 利用制限 | - | ||
| 設備 | 2階以上、日当り良好、閑静な住宅街、外観タイル張り、洗濯機置き場、エレベーター、宅配BOX、タイヤ置き場あり、和室あり、平面駐車場、駐輪場、南向き、管理人常駐(日中)、セキュリティー良し、TV付きインターホン、エントランスオートロック、システムキッチン、対面式キッチン、3口コンロ、ガスコンロ設置済み、浴室乾燥機、温水洗浄便座、シャワー付き洗面台、エアコン、床暖房、都市ガス、公営水道、下水道、ルーフバルコニー、シューズBOX、BS端子、CS端子、即入居可能 | ||
| 取引態様 | 売主 | ||
| 備考 | 【その他費用】 ◆上水道基本料金1,056円、下水道基本料金1,936円(2ヶ月毎に使用料と併せて管理費等と共に徴収) ◆自治会費 月額600円を年4回3ヶ月毎(1,800円)に管理費等と併せて徴収 ◆タイヤストッカー使用の場合は、月額500円 |
||
| 情報登録日 | 2025/07/14 | 次回更新予定日 | 2025/11/19 |
| 取引条件有効期限 | 2025/09/18 | ||
|
|
|
|
|
|
| TEL: | 0120-1818-27 |
|---|---|
| 所在地: | 新潟県長岡市千歳1-3-25 |
| 交通: | 長岡駅 |
| 営業時間: | 8時30分~17時30分(大手支店は9時~18時)/定休日:本社:土日祝日(事前予約での対応可能)、支店:日曜祝日第5土曜(毎年2月下旬から3月は休みなし) |
| 免許番号: | 新潟県知事(17)第191号 |
| 所属団体名: | 新潟県宅地建物取引協会 長岡支部 |
| 取引態様: | 売主 |