新潟県長岡市寺泊野積559-1 中古一戸建て 7DK 10,800,000円の物件情報

【価格改定してお求めやすくなりました♪】1,580万円(R6.7.10)→1,080万円(R7.9.1)車2台分駐車スペース(車庫1台分含む)あり!海が近く、別荘としてもお住まいになれます♪

物件名/所在地 詳細 価格
長岡市寺泊野積 売住宅
新潟県長岡市寺泊野積559-1
  • 土地面積
    :522.8㎡ /158.14坪
  • 建物面積
    :167.5㎡ /50.66坪
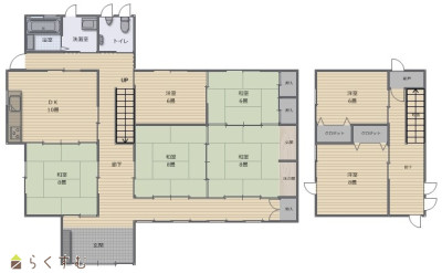
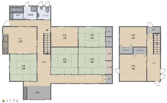
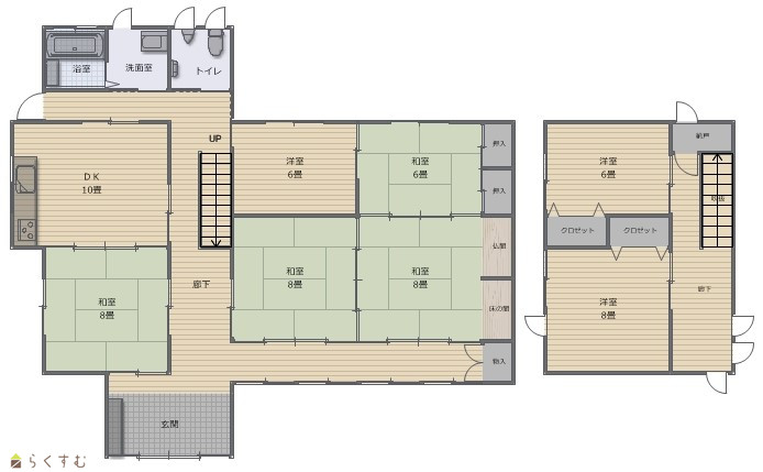
  • 間取り
    :7DK
  • 築年月
    :2000年7月
10,800,000
  • 長岡市寺泊野積 売住宅
    髙頭不動産 株式会社
  • この物件を問い合わせる/無料
  • TEL: 0120-1818-27 0120-1818-27

物件画像

外観
間取り
物件画像
※画像クリックで拡大表示
外観
物件画像
※画像クリックで拡大表示
間取
詳細画像
物件画像
お庭
物件画像
浴室
物件画像
1階和室
物件画像
トイレ
物件画像
地図


物件概要

物件コード 00040-201029
物件名 長岡市寺泊野積 売住宅
交通 バス:野積橋から徒歩8分
物件所在地 新潟県長岡市寺泊野積559-1
物件種別 中古一戸建て
構造 木造 階建 地上2階建
建ぺい率/容積率 -
建物面積 1階 127.76㎡/ 2階 39.74㎡/ 計 167.5㎡ /50.66坪
土地面積 522.8㎡ /158.14坪
築年月 2000年7月(築25年)
入居(引き渡し)時期 相談
用途地域 無指定 地目 宅地  (現状:宅地)
都市計画 都市計画区域外 学校区 寺泊小学校(3,025m)・寺泊中学校(4,495m)
形状 間口 17.4m × 奥行 28.5m 道路 東側 公道 幅員約4.7m
私道 - その他の制限 -
  • 長岡市寺泊野積 売住宅
    髙頭不動産 株式会社
  • この物件を問い合わせる/無料
  • TEL: 0120-1818-27 0120-1818-27

物件詳細情報

所在階/階数 - 号室 -
販売価格 10,800,000円 方位
間取り 7DK (和室:8畳、8畳、8畳、6畳) (洋室:6、6、8)
DK10
専有面積 - バルコニー面積 -
その他面積 - 駐車場 -
管理費 - 修繕積立金 -
現況 空家
仲介手数料 422,400円
利用制限 -
設備 高台に立地、日当り良好、駐車2台可能、システムキッチン、IHクッキングヒーター、2口コンロ、バス1坪以上、温水洗浄便座、シャワー付き洗面台、エアコンあり、LPG、上水道、浄化槽、シューズBOX、別荘、田舎暮らし
取引態様 一般
備考 ※地滑り土砂災害警戒区域(イエローゾーン)に該当します。
※自然公園法普通地域に該当する為、一定規模の建築物の新築・増築・改築を行う場合は届出が必要となります。
取り扱い会社

髙頭不動産 株式会社

新潟県長岡市千歳1-3-25

情報登録日 2025/09/01 次回更新予定日 2026/04/21
取引条件有効期限 2025/11/30
  • 長岡市寺泊野積 売住宅
    髙頭不動産 株式会社
  • この物件を問い合わせる/無料
  • TEL: 0120-1818-27 0120-1818-27

この物件の地図・周辺情報・行政情報

この物件の周辺情報・行政情報を詳しく見る
【周辺情報】
物件の近くにあるコンビニや銀行・学校など、アイコン付のマップで詳しく表示できます!
【行政情報】
水道料や下水道料・ガス料金など、暮らしに関係のある情報を表示しています。

担当取扱い店舗情報

取扱い店舗画像
髙頭不動産 株式会社
TEL: 0120-1818-27
所在地: 新潟県長岡市千歳1-3-25
交通: 長岡駅
営業時間: 8時30分~17時30分(大手支店は9時~18時)/定休日:本社:土日祝日(事前予約での対応可能)、支店:日曜祝日第5土曜(毎年2月下旬から3月は休みなし)
免許番号: 新潟県知事(17)第191号
所属団体名: 新潟県宅地建物取引協会 長岡支部
取引態様: 一般
ホームページ: http://www.takato-f.com