| 物件コード | 00040-201029 | ||
|---|---|---|---|
| 物件名 | 長岡市寺泊野積 売住宅 | ||
| 交通 | バス:野積橋から徒歩8分 | ||
| 物件所在地 | 新潟県長岡市寺泊野積559-1 | ||
| 物件種別 | 中古一戸建て | ||
| 構造 | 木造 | 階建 | 地上2階建 |
| 建ぺい率/容積率 | - | ||
| 建物面積 | 1階 127.76㎡/ 2階 39.74㎡/ 計 167.5㎡ /50.66坪 | ||
| 土地面積 | 522.8㎡ /158.14坪 | ||
| 築年月 | 2000年7月(築25年) | ||
| 入居時期 | 相談 | ||
| 用途地域 | 無指定 | 地目 | 宅地 (現状:宅地) |
| 都市計画 | 都市計画区域外 | 学校区 | 寺泊小学校(3,025m)・寺泊中学校(4,495m) |
| 形状 | 間口 17.4m × 奥行 28.5m | 道路 | 東側 公道 幅員約4.7m |
| 私道 | - | ||
| 所在階/階数 | - | 号室 | - |
|---|---|---|---|
| 販売価格 | 10,800,000円 | 方位 | 東 |
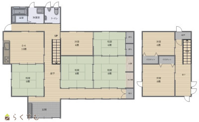
| 間取り |
7DK (和室:8畳、8畳、8畳、6畳) (洋室:6、6、8) DK10 |
||
| 専有面積 | - | バルコニー面積 | - |
| その他面積 | - | 駐車場 | - |
| 管理費 | - | 修繕積立金 | - |
| 現況 | 空家 | ||
| 仲介手数料 | 422,400円 | ||
| 利用制限 | - | ||
| 設備 | 高台に立地、日当り良好、駐車2台可能、システムキッチン、IHクッキングヒーター、2口コンロ、バス1坪以上、温水洗浄便座、シャワー付き洗面台、エアコンあり、LPG、上水道、浄化槽、シューズBOX、別荘、田舎暮らし | ||
| 取引態様 | 一般 | ||
| 備考 | ※地滑り土砂災害警戒区域(イエローゾーン)に該当します。 ※自然公園法普通地域に該当する為、一定規模の建築物の新築・増築・改築を行う場合は届出が必要となります。 |
||
| 情報登録日 | 2025/09/01 | 次回更新予定日 | 2026/04/21 |
| 取引条件有効期限 | 2025/11/30 | ||
|
|
|
|
|
|
| TEL: | 0120-1818-27 |
|---|---|
| 所在地: | 新潟県長岡市千歳1-3-25 |
| 交通: | 長岡駅 |
| 営業時間: | 8時30分~17時30分(大手支店は9時~18時)/定休日:本社:土日祝日(事前予約での対応可能)、支店:日曜祝日第5土曜(毎年2月下旬から3月は休みなし) |
| 免許番号: | 新潟県知事(17)第191号 |
| 所属団体名: | 新潟県宅地建物取引協会 長岡支部 |
| 取引態様: | 一般 |