新潟県小千谷市東栄2-5-20 中古一戸建て 3LDK 19,800,000円の物件情報

【R8.4.23価格改定2,600万円→1,980万円】希少な免震住宅!

物件名/所在地 詳細 価格
小千谷市東栄2丁目 売住宅
新潟県小千谷市東栄2-5-20
  • 土地面積
    :283.3㎡ /85.69坪
  • 建物面積
    :296.48㎡ /89.68坪
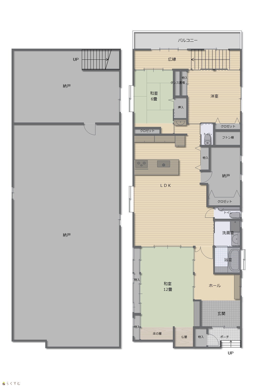
  • 間取り
    :3LDK
  • 築年月
    :2006年11月
19,800,000
  • 小千谷市東栄2丁目 売住宅
    髙頭不動産 株式会社
  • この物件を問い合わせる/無料
  • TEL: 0120-1818-27 0120-1818-27

物件画像

外観
間取り
物件画像
※画像クリックで拡大表示
外観
物件画像
※画像クリックで拡大表示
間取り
詳細画像
物件画像
玄関
物件画像
和室
物件画像
リビング
物件画像
浴室
物件画像
トイレ
物件画像
1階
物件画像
地図


物件概要

小千谷駅、小中学校徒歩10分以内圏内の好立地。
物件コード 00040-200944
物件名 小千谷市東栄2丁目 売住宅
交通 駅:上越線 小千谷駅から徒歩15分、バス:東栄2丁目から徒歩1分
物件所在地 新潟県小千谷市東栄2-5-20
物件種別 中古一戸建て
構造 木造 階建 地上2階建
建ぺい率/容積率 80%/300%
建物面積 1階 148.88㎡/ 2階 147.6㎡/ 計 296.48㎡ /89.68坪
土地面積 283.3㎡ /85.69坪
築年月 2006年11月(築19年)
入居(引き渡し)時期 相談
用途地域 近隣商業地域 地目 宅地  (現状:宅地)
都市計画 非線引き都市計画区域 学校区 東小千谷小学校(596m)・東小千谷中学校(462m)
形状 - 道路 北側 国道 
私道 - その他の制限 都市計画道路(整備済)
  • 小千谷市東栄2丁目 売住宅
    髙頭不動産 株式会社
  • この物件を問い合わせる/無料
  • TEL: 0120-1818-27 0120-1818-27

物件詳細情報

所在階/階数 - 号室 -
販売価格 19,800,000円 方位 -
間取り 3LDK
専有面積 - バルコニー面積 -
その他面積 - 駐車場 -
管理費 - 修繕積立金 -
現況 空家
仲介手数料 719,400円
利用制限 -
設備 日当り良好、駐車2台可能、システムキッチン、追いだき機能付き、温水洗浄便座、トイレ2か所以上、シャワー付き洗面台、エアコンあり、都市ガス、上水道、下水道
取引態様 専任
備考 汚水桝は隣接地者との共同使用です。
取り扱い会社

髙頭不動産 株式会社

新潟県長岡市千歳1-3-25

情報登録日 2026/04/23 次回更新予定日 2026/06/06
取引条件有効期限 2026/06/30
  • 小千谷市東栄2丁目 売住宅
    髙頭不動産 株式会社
  • この物件を問い合わせる/無料
  • TEL: 0120-1818-27 0120-1818-27

この物件の地図・周辺情報・行政情報

この物件の周辺情報・行政情報を詳しく見る
【周辺情報】
物件の近くにあるコンビニや銀行・学校など、アイコン付のマップで詳しく表示できます!
【行政情報】
水道料や下水道料・ガス料金など、暮らしに関係のある情報を表示しています。
ローソン 小千谷駅前店(コンビニ)まで620m
あさひ調剤薬局(ドラッグストア)まで210m
村山歯科医院(病院)まで280m
第四北越銀行 東小千谷支店(銀行)までm
東小千谷郵便局(郵便局)までm

※カメラのアイコンがある場合は、マウスをポイントするとその施設の画像がご覧いただけます。


担当取扱い店舗情報

取扱い店舗画像
髙頭不動産 株式会社
TEL: 0120-1818-27
所在地: 新潟県長岡市千歳1-3-25
交通: 長岡駅
営業時間: 8時30分~17時30分(大手支店は9時~18時)/定休日:本社:土日祝日(事前予約での対応可能)、支店:日曜祝日第5土曜(毎年2月下旬から3月は休みなし)
免許番号: 新潟県知事(17)第191号
所属団体名: 新潟県宅地建物取引協会 長岡支部
取引態様: 専任
ホームページ: http://www.takato-f.com