| 小千谷駅、小中学校徒歩10分以内圏内の好立地。 | |||
| 物件コード | 00040-200944 | ||
|---|---|---|---|
| 物件名 | 小千谷市東栄2丁目 売住宅 | ||
| 交通 | 駅:上越線 小千谷駅から徒歩15分、バス:東栄2丁目から徒歩1分 | ||
| 物件所在地 | 新潟県小千谷市東栄2-5-20 | ||
| 物件種別 | 中古一戸建て | ||
| 構造 | 木造 | 階建 | 地上2階建 |
| 建ぺい率/容積率 | 80%/300% | ||
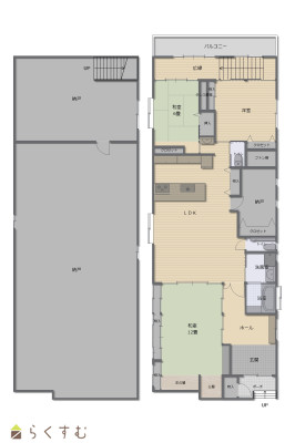
| 建物面積 | 1階 148.88㎡/ 2階 147.6㎡/ 計 296.48㎡ /89.68坪 | ||
| 土地面積 | 283.3㎡ /85.69坪 | ||
| 築年月 | 2006年11月(築19年) | ||
| 入居時期 | 相談 | ||
| 用途地域 | 第1種中高層住居専用地域 | 地目 | 宅地 (現状:宅地) |
| 都市計画 | 非線引き都市計画区域 | 学校区 | 東小千谷小学校(596m)・東小千谷中学校(462m) |
| 形状 | - | 道路 | 北側 国道 |
| 私道 | - | ||
| 所在階/階数 | - | 号室 | - |
|---|---|---|---|
| 販売価格 | 26,000,000円 | 方位 | - |
| 間取り | 3LDK | ||
| 専有面積 | - | バルコニー面積 | - |
| その他面積 | - | 駐車場 | - |
| 管理費 | - | 修繕積立金 | - |
| 現況 | 空家 | ||
| 仲介手数料 | 924,000円 | ||
| 利用制限 | - | ||
| 設備 | 日当り良好、駐車2台可能、システムキッチン、追いだき機能付き、温水洗浄便座、トイレ2か所以上、シャワー付き洗面台、エアコンあり、都市ガス、上水道、下水道 | ||
| 取引態様 | 専任 | ||
| 備考 | 汚水桝は隣接地者との共同使用です。 | ||
| 情報登録日 | 2023/09/19 | 次回更新予定日 | 2026/04/22 |
| 取引条件有効期限 | 2023/12/18 | ||
|
|
|
|
|
|
| TEL: | 0120-1818-27 |
|---|---|
| 所在地: | 新潟県長岡市千歳1-3-25 |
| 交通: | 長岡駅 |
| 営業時間: | 8時30分~17時30分(大手支店は9時~18時)/定休日:本社:土日祝日(事前予約での対応可能)、支店:日曜祝日第5土曜(毎年2月下旬から3月は休みなし) |
| 免許番号: | 新潟県知事(17)第191号 |
| 所属団体名: | 新潟県宅地建物取引協会 長岡支部 |
| 取引態様: | 専任 |