新潟県長岡市滝谷町623番1 中古一戸建て 6DK 17,000,000円の物件情報

ハウスメーカー施工の中古住宅です♪広々とした土地・建物でお手入れのされたお庭、眺めの良い景色♪駅も徒歩圏内です♪

物件名/所在地 詳細 価格
滝谷町中古住宅(ハウスメーカー施工)景色良好♪
新潟県長岡市滝谷町623番1
  • 土地面積
    :875.69㎡ /264.89坪
  • 建物面積
    :175.42㎡ /53.06坪
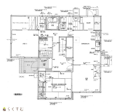
  • 間取り
    :6DK
  • 築年月
    :2005年10月
17,000,000
  • 滝谷町中古住宅(ハウスメーカー施工)景色良好♪
    有限会社 ABCホーム
  • この物件を問い合わせる/無料
  • TEL: 0258-35-6682 0258-35-6682

物件画像

外観
間取り
物件画像
※画像クリックで拡大表示
外観
物件画像
※画像クリックで拡大表示
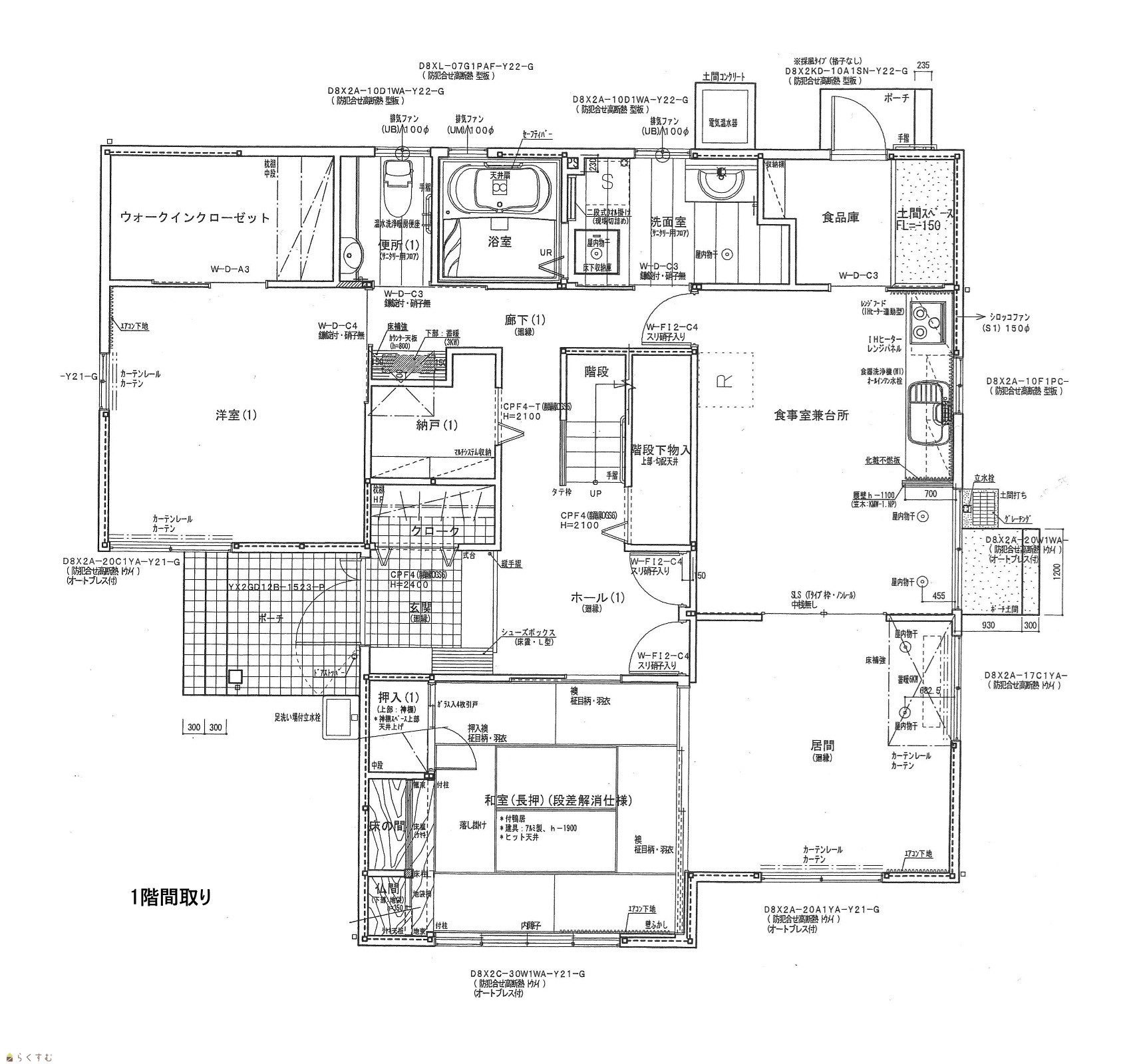
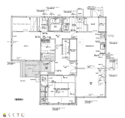
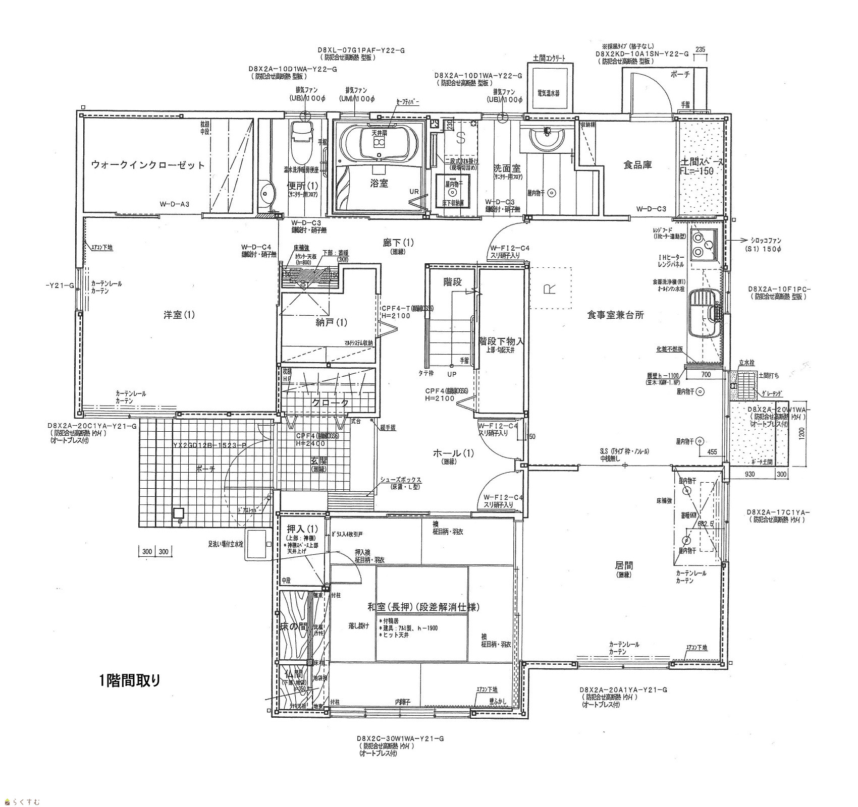
1階間取り
詳細画像
物件画像
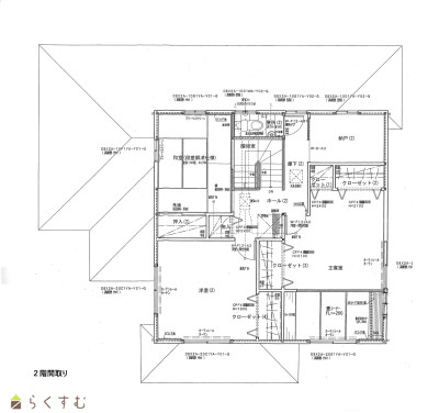
2階間取り
物件画像
リビング
物件画像
玄関
物件画像
キッチン
物件画像
浴室
物件画像
脱衣所
物件画像
1階トイレ
物件画像
1階和室
物件画像
カーポート
物件画像
2階ホール
物件画像
2階寝室
物件画像
2階洋室
物件画像
2階和室
物件画像
物件画像
西側道路
物件画像
東側道路
物件画像
景色
物件画像
地図画像


物件概要

ハウスメーカー施工の中古住宅です♪広々とした土地・建物でお手入れのされたお庭、眺めの良い景色♪駅も徒歩圏内です♪
物件コード 00017-200342
物件名 滝谷町中古住宅(ハウスメーカー施工)景色良好♪
交通 駅:上越線 越後滝谷駅から徒歩8分、バス:滝谷駅前から徒歩1分
物件所在地 新潟県長岡市滝谷町623番1
物件種別 中古一戸建て
構造 軽量鉄骨 階建 地上2階建
建ぺい率/容積率 70%/200%
建物面積 1階 107.36㎡/ 2階 68.06㎡/ 計 175.42㎡ /53.06坪
土地面積 875.69㎡ /264.89坪
築年月 2005年10月(築20年)
入居(引き渡し)時期 相談
用途地域 用途の指定のない地域 地目 宅地  (現状:宅地)
都市計画 市街化調整区域 学校区 岡南小学校(575m)・岡南中学校(750m)
形状 間口 22.7m × 奥行 34.9m 道路 西側長岡市道幅員約6.5m(消雪有)、東側長岡市道幅員約6m
私道 - その他の制限 別途農地4.8坪がつくため、農地法第3条の許可が必要です。
  • 滝谷町中古住宅(ハウスメーカー施工)景色良好♪
    有限会社 ABCホーム
  • この物件を問い合わせる/無料
  • TEL: 0258-35-6682 0258-35-6682

物件詳細情報

所在階/階数 - 号室 -
販売価格 17,000,000円 方位 西
間取り 6DK (和室:8畳、6畳) (洋室:8、8、8、11.5)
DK10
専有面積 - バルコニー面積 -
その他面積 - 駐車場 -
管理費 - 修繕積立金 -
現況 居住中
仲介手数料 627,000円
利用制限 -
設備 日当り良好、新築時図面あり、修繕記録あり、建物確認・完了検査済証あり、駐車3台以上可能、複層ガラス、システムキッチン、IHクッキングヒーター、食器洗浄乾燥機、追いだき機能付き、バス1坪以上、温水洗浄便座、トイレ2か所以上、シャワー付き洗面台、エアコンあり、オール電化、上水道、下水道、ウォークインクローゼット、全居室収納あり、外装リフォーム済み、田舎暮らし
取引態様 一般
備考 2020年11月外壁塗装済み
取り扱い会社

有限会社 ABCホーム

新潟県長岡市曙1-1-7

情報登録日 2025/10/17 次回更新予定日 2026/03/07
取引条件有効期限 2025/05/13
  • 滝谷町中古住宅(ハウスメーカー施工)景色良好♪
    有限会社 ABCホーム
  • この物件を問い合わせる/無料
  • TEL: 0258-35-6682 0258-35-6682

この物件の地図・周辺情報・行政情報

この物件の周辺情報・行政情報を詳しく見る
【周辺情報】
物件の近くにあるコンビニや銀行・学校など、アイコン付のマップで詳しく表示できます!
【行政情報】
水道料や下水道料・ガス料金など、暮らしに関係のある情報を表示しています。

担当取扱い店舗情報

取扱い店舗画像
有限会社 ABCホーム
TEL: 0258-35-6682
所在地: 新潟県長岡市曙1-1-7
交通:
営業時間: 9:00~18:00/定休日:
免許番号: 新潟県知事(4)4781号
所属団体名: 新潟県宅地建物取引業協会 長岡支部
取引態様: 一般
ホームページ: http://abc-home.d.dooo.jp/