| ハウスメーカー施工の中古住宅です♪広々とした土地・建物でお手入れのされたお庭、眺めの良い景色♪駅も徒歩圏内です♪ | |||
| 物件コード | 00017-200342 | ||
|---|---|---|---|
| 物件名 | 滝谷町中古住宅(ハウスメーカー施工)景色良好♪ | ||
| 交通 | 駅:上越線 越後滝谷駅から徒歩8分、バス:滝谷駅前から徒歩1分 | ||
| 物件所在地 | 新潟県長岡市滝谷町623番1 | ||
| 物件種別 | 中古一戸建て | ||
| 構造 | 軽量鉄骨 | 階建 | 地上2階建 |
| 建ぺい率/容積率 | 70%/200% | ||
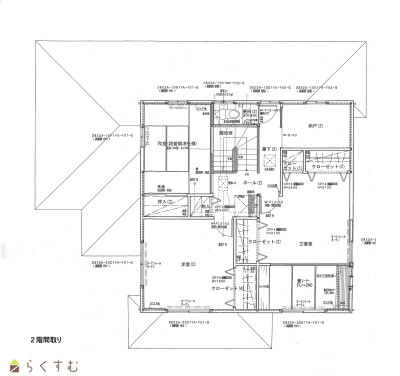
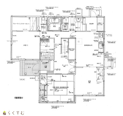
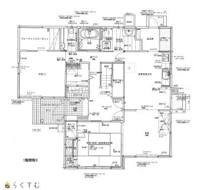
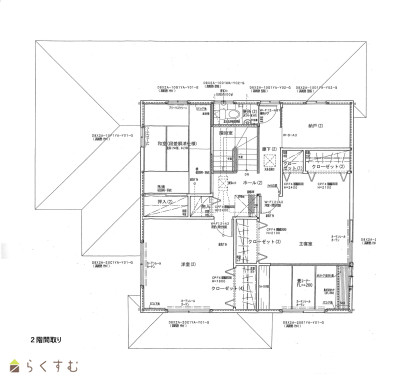
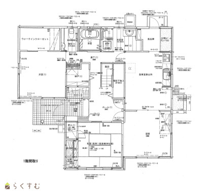
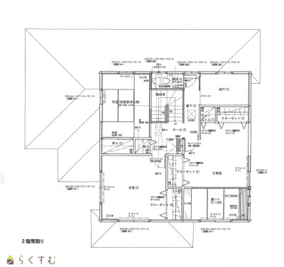
| 建物面積 | 1階 107.36㎡/ 2階 68.06㎡/ 計 175.42㎡ /53.06坪 | ||
| 土地面積 | 875.69㎡ /264.89坪 | ||
| 築年月 | 2005年10月(築20年) | ||
| 入居時期 | 相談 | ||
| 用途地域 | 用途の指定のない地域 | 地目 | 宅地 (現状:宅地) |
| 都市計画 | 市街化調整区域 | 学校区 | 岡南小学校(575m)・岡南中学校(750m) |
| 形状 | 間口 22.7m × 奥行 34.9m | 道路 | 西側長岡市道幅員約6.5m(消雪有)、東側長岡市道幅員約6m |
| 私道 | - | ||
| 所在階/階数 | - | 号室 | - |
|---|---|---|---|
| 販売価格 | 17,000,000円 | 方位 | 西 |
| 間取り |
6DK (和室:8畳、6畳) (洋室:8、8、8、11.5) DK10 |
||
| 専有面積 | - | バルコニー面積 | - |
| その他面積 | - | 駐車場 | - |
| 管理費 | - | 修繕積立金 | - |
| 現況 | 居住中 | ||
| 仲介手数料 | 627,000円 | ||
| 利用制限 | - | ||
| 設備 | 日当り良好、新築時図面あり、修繕記録あり、建物確認・完了検査済証あり、駐車3台以上可能、複層ガラス、システムキッチン、IHクッキングヒーター、食器洗浄乾燥機、追いだき機能付き、バス1坪以上、温水洗浄便座、トイレ2か所以上、シャワー付き洗面台、エアコンあり、オール電化、上水道、下水道、ウォークインクローゼット、全居室収納あり、外装リフォーム済み、田舎暮らし | ||
| 取引態様 | 一般 | ||
| 備考 | 2020年11月外壁塗装済み | ||
| 情報登録日 | 2025/10/17 | 次回更新予定日 | 2026/03/07 |
| 取引条件有効期限 | 2025/05/13 | ||
|
|
|
|
|
| TEL: | 0258-35-6682 |
|---|---|
| 所在地: | 新潟県長岡市曙1-1-7 |
| 交通: | |
| 営業時間: | 9:00~18:00/定休日: |
| 免許番号: | 新潟県知事(4)4781号 |
| 所属団体名: | 新潟県宅地建物取引業協会 長岡支部 |
| 取引態様: | 一般 |