新潟県長岡市古正寺町字中割10-7 中古一戸建て 6DK 13,350,000円の物件情報

人気の古正寺地区!2世帯向き住宅!スーパー徒歩5分!長岡西病院徒歩4分!三ツ郷屋児童公園前!

物件名/所在地 詳細 価格
古正寺町売家
新潟県長岡市古正寺町字中割10-7
  • 土地面積
    :196.15㎡ /59.33坪
  • 建物面積
    :158.97㎡ /48.08坪
  • 間取り
    :6DK
  • 築年月
    :1976年12月
13,350,000
  • 古正寺町売家
    株式会社 新日本地所
  • この物件を問い合わせる/無料
  • TEL: 0258-33-8166 0258-33-8166

物件画像

外観
間取り
物件画像
※画像クリックで拡大表示
外観
物件画像
※画像クリックで拡大表示
間取り
詳細画像
物件画像
間取り
物件画像
1階和室
物件画像
地積測量図
物件画像
三ツ郷屋児童公園
物件画像
1階8帖洋間
物件画像
1階南側8帖洋間
物件画像
1階南側DK
物件画像
2階南側8帖洋間
物件画像
2階中6帖洋間
物件画像
2階北側8帖洋間
物件画像
1階北側トイレ
物件画像
1階風呂
物件画像
1階北側DK
物件画像
印刷用地図


物件概要

人気の古正寺地区!2世帯向き住宅!スーパー徒歩5分!長岡西病院徒歩4分!三ツ郷屋児童公園前!
物件コード 00012-200109
物件名 古正寺町売家
交通 駅:上越新幹線 長岡駅から徒歩48分、バス:長岡西病院前から徒歩3分
物件所在地 新潟県長岡市古正寺町字中割10-7
物件種別 中古一戸建て
構造 木造 階建 地上2階建
建ぺい率/容積率 60%/200%
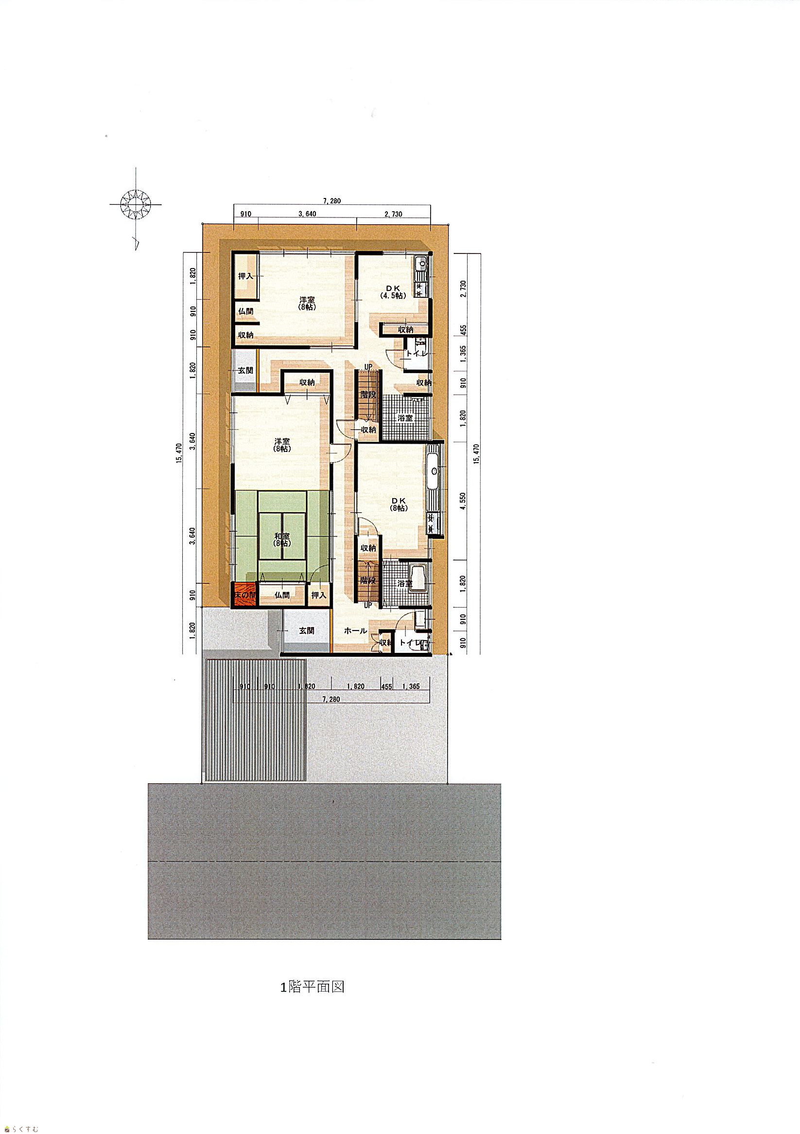
建物面積 1階 109.29㎡/ 2階 49.68㎡/ 計 158.97㎡ /48.08坪
土地面積 196.15㎡ /59.33坪
築年月 1976年12月(築49年)
入居(引き渡し)時期 随時入居(引き渡し)可
用途地域 第1種中高層住居専用地域 地目 宅地  (現状:宅地)
都市計画 市街化区域 学校区 大島小学校(750m)・大島中学校(251m)
形状 間口 9.09m × 奥行 21.58m 道路 長岡市道 日越46号線 6.0m
私道 - その他の制限 第2種高度地区
  • 古正寺町売家
    株式会社 新日本地所
  • この物件を問い合わせる/無料
  • TEL: 0258-33-8166 0258-33-8166

物件詳細情報

所在階/階数 - 号室 -
販売価格 13,350,000円 方位
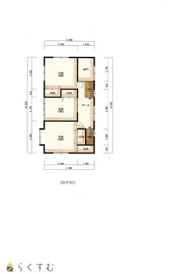
間取り 6DK (和室:8畳) (洋室:8、8、8、8、6)
DK8.DK4.5
専有面積 - バルコニー面積 -
その他面積 - 駐車場 -
管理費 - 修繕積立金 -
現況 空家
仲介手数料 506,550円
利用制限 -
設備 閑静な住宅街、スーパー近く、駐車3台以上可能、トイレ2か所以上、都市ガス、上水道、下水道、2世帯向き
取引態様 一般
備考 2005年大幅リホーム工事済。但し、浴槽1個所は、利用不可等によりリホーム工事要す。
エアコン及びクーラーは、利用可の製品は、無償譲渡。
雨水排水は、道路占用許可を取得し現在利用中(名義変更要す。)
取り扱い会社

株式会社 新日本地所

新潟県長岡市殿町1-3-3

情報登録日 2026/03/18 次回更新予定日 2026/04/19
取引条件有効期限 2026/05/31
  • 古正寺町売家
    株式会社 新日本地所
  • この物件を問い合わせる/無料
  • TEL: 0258-33-8166 0258-33-8166

この物件の地図・周辺情報・行政情報

この物件の周辺情報・行政情報を詳しく見る
【周辺情報】
物件の近くにあるコンビニや銀行・学校など、アイコン付のマップで詳しく表示できます!
【行政情報】
水道料や下水道料・ガス料金など、暮らしに関係のある情報を表示しています。

担当取扱い店舗情報

取扱い店舗画像
株式会社 新日本地所
TEL: 0258-33-8166
所在地: 新潟県長岡市殿町1-3-3
交通: 長岡駅より350m
営業時間: 9:00~17:00/定休日:土曜・日曜・祭日 但し3月は土曜営業
免許番号: 新潟県知事(14)第1068号
所属団体名: 新潟県宅地建物取引業協会 長岡支部
取引態様: 一般