| 人気の古正寺地区!2世帯向き住宅!スーパー徒歩5分!長岡西病院徒歩4分!三ツ郷屋児童公園前! | |||
| 物件コード | 00012-200109 | ||
|---|---|---|---|
| 物件名 | 古正寺町売家 | ||
| 交通 | 駅:上越新幹線 長岡駅から徒歩48分、バス:長岡西病院前から徒歩3分 | ||
| 物件所在地 | 新潟県長岡市古正寺町字中割10-7 | ||
| 物件種別 | 中古一戸建て | ||
| 構造 | 木造 | 階建 | 地上2階建 |
| 建ぺい率/容積率 | 60%/200% | ||
| 建物面積 | 1階 109.29㎡/ 2階 49.68㎡/ 計 158.97㎡ /48.08坪 | ||
| 土地面積 | 196.15㎡ /59.33坪 | ||
| 築年月 | 1976年12月(築49年) | ||
| 入居時期 | 随時入居(引き渡し)可 | ||
| 用途地域 | 第1種中高層住居専用地域 | 地目 | 宅地 (現状:宅地) |
| 都市計画 | 市街化区域 | 学校区 | 大島小学校(750m)・大島中学校(251m) |
| 形状 | 間口 9.09m × 奥行 21.58m | 道路 | 長岡市道 日越46号線 6.0m |
| 私道 | - | ||
| 所在階/階数 | - | 号室 | - |
|---|---|---|---|
| 販売価格 | 13,350,000円 | 方位 | 東 |
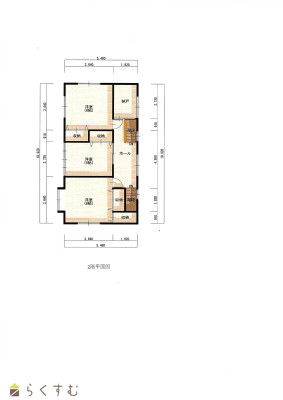
| 間取り |
6DK (和室:8畳) (洋室:8、8、8、8、6) DK8.DK4.5 |
||
| 専有面積 | - | バルコニー面積 | - |
| その他面積 | - | 駐車場 | - |
| 管理費 | - | 修繕積立金 | - |
| 現況 | 空家 | ||
| 仲介手数料 | 506,550円 | ||
| 利用制限 | - | ||
| 設備 | 閑静な住宅街、スーパー近く、駐車3台以上可能、トイレ2か所以上、都市ガス、上水道、下水道、2世帯向き | ||
| 取引態様 | 一般 | ||
| 備考 | 2005年大幅リホーム工事済。但し、浴槽1個所は、利用不可等によりリホーム工事要す。 エアコン及びクーラーは、利用可の製品は、無償譲渡。 雨水排水は、道路占用許可を取得し現在利用中(名義変更要す。) |
||
| 情報登録日 | 2026/03/18 | 次回更新予定日 | 2026/04/18 |
| 取引条件有効期限 | 2026/05/31 | ||
|
|
|
|
|
| TEL: | 0258-33-8166 |
|---|---|
| 所在地: | 新潟県長岡市殿町1-3-3 |
| 交通: | 長岡駅より350m |
| 営業時間: | 9:00~17:00/定休日:土曜・日曜・祭日 但し3月は土曜営業 |
| 免許番号: | 新潟県知事(14)第1068号 |
| 所属団体名: | 新潟県宅地建物取引業協会 長岡支部 |
| 取引態様: | 一般 |