物件掲載企業数:299|賃貸物件:3,601件|売買物件:3,317件|今週の登録物件:312
閲覧中のブラウザ(インターネットエクスプローラー)は非推奨ブラウザです。
物件が正しく表示されなかったり、正しく検索されない場合があります。最新のブラウザ(Google Chrome・Edgeなど)にてご利用お願いいたします。
  

新潟県長岡市栃尾山田62番地 中古一戸建て 10LDK 5,000,000円の物件情報

平屋(高床式)住宅。離れ部屋あり。付属建物車庫(3台分)付き。

物件名/所在地 詳細 価格
平屋(高床式)住宅~静寂に包まれる郊外の邸宅~
新潟県長岡市栃尾山田62番地
  • 土地面積
    :2,755.69㎡ /833.59坪
  • 建物面積
    :386.49㎡ /116.91坪
  • 間取り
    :10LDK
  • 築年月
    :1988年8月
5,000,000
  • 平屋(高床式)住宅~静寂に包まれる郊外の邸宅~
    SUMORE NAGAOKA KONOMA Real Estate co.,ltd.
  • この物件を問い合わせる/無料
  • TEL: 0258-89-7833

物件画像

外観 間取り
物件画像
※画像クリックで拡大表示
外観
物件画像
※画像クリックで拡大表示
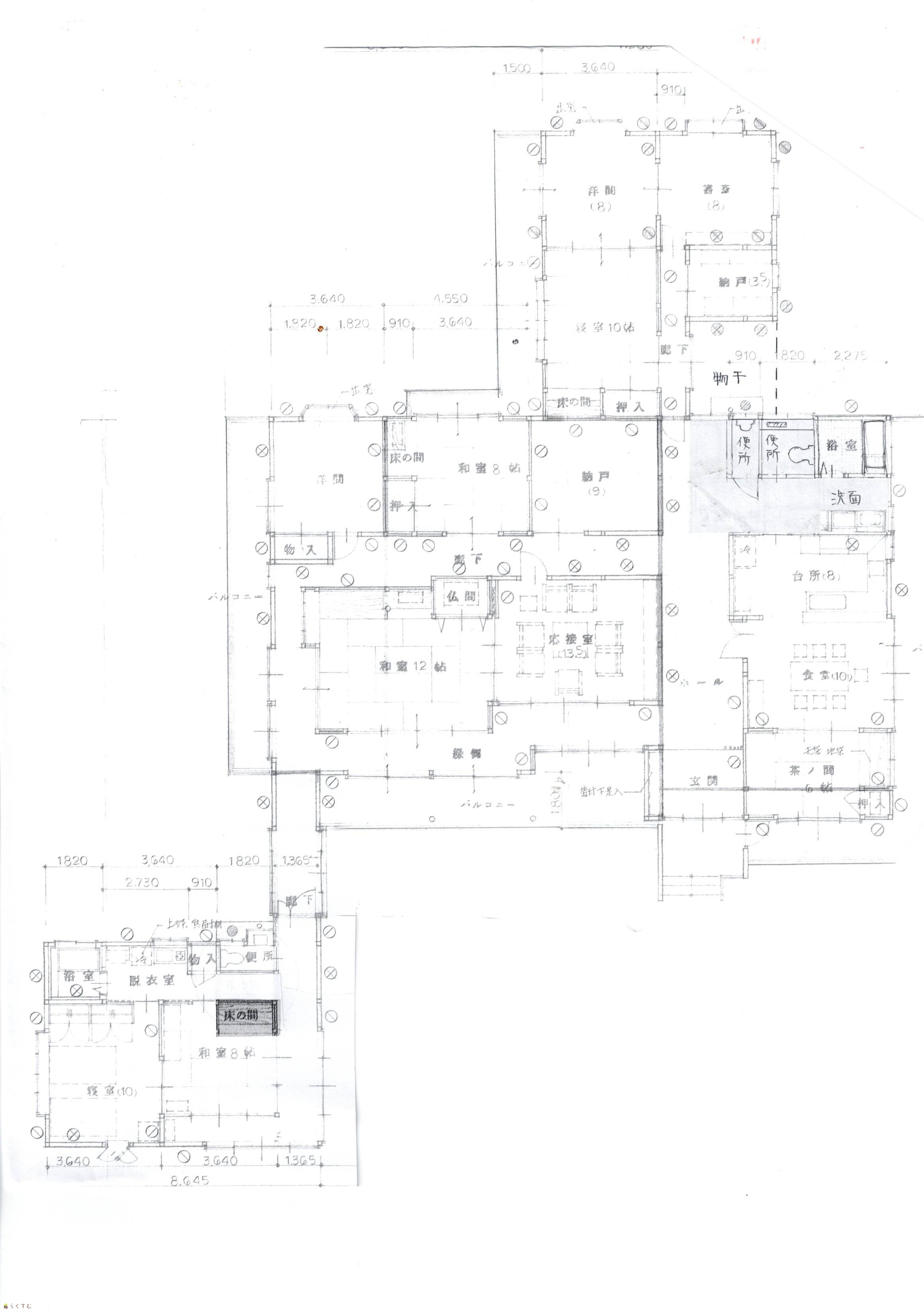
間取り
詳細画像


物件概要

落雪式屋根(離れ部屋は別)のため、雪下ろし必要ありません。
物件コード 00344-200017
物件名 平屋(高床式)住宅~静寂に包まれる郊外の邸宅~
交通 駅:信越線 見附駅から徒歩151分、バス:土ヶ谷入口から徒歩8分
物件所在地 新潟県長岡市栃尾山田62番地
物件種別 中古一戸建て
構造 木造鉄筋コン 階建 地上2階建
建ぺい率/容積率 70%/200%
建物面積 1階 28.87㎡/ 2階 357.62㎡/ 計 386.49㎡ /116.91坪
土地面積 2,755.69㎡ /833.59坪
築年月 1988年8月(築37年)
入居(引き渡し)時期 相談
用途地域 用途の指定のない地域 地目 宅地  (現状:一部 農地)
都市計画 非線引き都市計画区域 学校区 栃尾東小学校(1,838m)・刈谷田中学校(2,752m)
形状 - 道路 市道栃尾山田土ヶ谷本津川線(都市計画道路)
私道 - その他の制限 隣地、土砂災害警戒区域
  • 平屋(高床式)住宅~静寂に包まれる郊外の邸宅~
    SUMORE NAGAOKA KONOMA Real Estate co.,ltd.
  • この物件を問い合わせる/無料
  • TEL: 0258-89-7833

物件詳細情報

所在階/階数 - 号室 -
販売価格 5,000,000円 方位
間取り 10LDK (和室:8畳、6畳、6畳、12畳) (洋室:10、13.5、6、8、8、10)
LDK18
その他、納戸2部屋(9、3.5) 増築、屋根裏部屋、物干し バルコニーあり。
専有面積 - バルコニー面積 -
その他面積 - 駐車場 -
管理費 - 修繕積立金 -
現況 居住中
仲介手数料 330,000円
利用制限 -
設備 新築時図面あり、建物確認・完了検査済証あり、LDK15帖以上、駐車3台以上可能、駐車場融雪設備あり、南向き、温水洗浄便座、トイレ2か所以上、エアコンあり、LPG、上水道、浄化槽、2世帯向き、別荘、田舎暮らし、事業向け
取引態様 専任
備考 家族も趣味も、すべてを包み込む12LDKのゆとり,週末は森の音だけ。静寂に包まれる郊外の邸宅,都心の喧騒を離れて、広さと静けさを手に入れる,二世帯も、シェアハウスも。使い方はあなた次第,庭木、池、家庭菜園等、広々敷地。敷地内消雪用の井戸完備。大家族、シェアハウス、二世帯住宅、アトリエなど、用途に合わせてご利用ください。●内部写真はお問い合わせください●
取り扱い会社

SUMORE NAGAOKA KONOMA Real Estate co.,ltd.

新潟県長岡市坂之上町二丁目3番地9sumoreビル

情報登録日 2025/09/25 次回更新予定日 2025/10/23
取引条件有効期限 2025/12/31
  • 平屋(高床式)住宅~静寂に包まれる郊外の邸宅~
    SUMORE NAGAOKA KONOMA Real Estate co.,ltd.
  • この物件を問い合わせる/無料
  • TEL: 0258-89-7833

この物件の地図・周辺情報・行政情報

この物件の周辺情報・行政情報を詳しく見る
【周辺情報】
物件の近くにあるコンビニや銀行・学校など、アイコン付のマップで詳しく表示できます!
【行政情報】
水道料や下水道料・ガス料金など、暮らしに関係のある情報を表示しています。

担当取扱い店舗情報

取扱い店舗画像
SUMORE NAGAOKA KONOMA Real Estate co.,ltd.
TEL: 0258-89-7833
所在地: 新潟県長岡市坂之上町二丁目3番地9sumoreビル
交通: JR長岡駅
営業時間: 9:00~18:00/定休日:日・祝日(事前予約受付しています)
免許番号: 新潟県知事(1)第5700号 この会社の情報を詳しく見る
所属団体名: 公社新潟県宅地建物取引協会 長岡支部
取引態様: 専任
ホームページ: https://sumore.co.jp/