物件掲載企業数:301|賃貸物件:3,262件|売買物件:3,243件|今週の登録物件:248
閲覧中のブラウザ(インターネットエクスプローラー)は非推奨ブラウザです。
物件が正しく表示されなかったり、正しく検索されない場合があります。最新のブラウザ(Google Chrome・Edgeなど)にてご利用お願いいたします。
  

新潟県長岡市豊1丁目630番地2 投資物件・その他 48,000,000円の物件情報

オーナーチェンジ物件(一棟一括賃貸中)

物件名/所在地 詳細 価格
表面利回り
長岡市豊1丁目 売店舗
新潟県長岡市豊1丁目630番地2
  • 土地面積
    :661.26㎡ /200.03坪
  • 建ぺい率
    :60%
  • 容積率
    :200%
48,000,000
8.8%
(満室想定時)
  • 長岡市豊1丁目 売店舗
    SUMORE NAGAOKA KONOMA Real Estate co.,ltd.
  • この物件を問い合わせる/無料
  • TEL: 0258-89-7833

物件画像

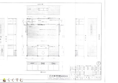
外観 間取り
物件画像
※画像クリックで拡大表示
外観
物件画像
※画像クリックで拡大表示
間取り
詳細画像


物件概要

現状有姿引渡し。公簿面積売買。
物件コード 00344-200012
物件名 長岡市豊1丁目 売店舗
交通 駅:信越線 長岡駅から徒歩27分、バス:パルス前から徒歩5分
物件所在地 新潟県長岡市豊1丁目630番地2
物件種別 投資物件・その他
物件区分 その他
構造 鉄骨 階建 地上1階建
建ぺい率/容積率 60%/200%
建物面積 -
土地面積 661.26㎡ /200.03坪
築年月 1989年9月(築36年)
入居(引き渡し)時期 随時入居(引き渡し)可
用途地域 第1種中高層住居専用地域 地目 宅地
都市計画 市街化区域 学校区 川崎東小学校(223m)・東北中学校(279m)
形状 間口 18.72m × 奥行 35.32m 道路 西側 長岡市道
私道 - その他の制限 -
  • 長岡市豊1丁目 売店舗
    SUMORE NAGAOKA KONOMA Real Estate co.,ltd.
  • この物件を問い合わせる/無料
  • TEL: 0258-89-7833

物件詳細情報

所在階/階数 1階/1階 号室 -
販売価格 48,000,000円 方位 -
表面利回り(満室想定時) 8.8% 満室想定年収 424,000円 (想定月収: 352,000円 )
現行利回り 8.8% 現行年間年収 424,000円
住戸数 -
間取り -
専有面積 - バルコニー面積 -
その他面積 - 駐車場 賃料に含む
管理費 - 修繕積立金 -
現況 賃貸中
仲介手数料 1,815,000円
消雪電気料は実費
利用制限 ペット:不可
設備 駐車場(近隣含む)、公営水道、下水道、事業向け
取引態様 専属専任
備考 -
取り扱い会社

SUMORE NAGAOKA KONOMA Real Estate co.,ltd.

新潟県長岡市坂之上町二丁目3番地9sumoreビル

情報登録日 2025/09/24 次回更新予定日 2026/06/08
取引条件有効期限 2024/12/24
  • 長岡市豊1丁目 売店舗
    SUMORE NAGAOKA KONOMA Real Estate co.,ltd.
  • この物件を問い合わせる/無料
  • TEL: 0258-89-7833

この物件の地図・周辺情報・行政情報

この物件の周辺情報・行政情報を詳しく見る
【周辺情報】
物件の近くにあるコンビニや銀行・学校など、アイコン付のマップで詳しく表示できます!
【行政情報】
水道料や下水道料・ガス料金など、暮らしに関係のある情報を表示しています。
ローソン 長岡川崎町店(コンビニ)まで770m
セブン-イレブン 長岡永田店(コンビニ)まで790m
良食生活館 川崎店(スーパー)まで130m
原信 川崎店(スーパー)まで410m
長岡永田郵便局(郵便局)まで720m

※カメラのアイコンがある場合は、マウスをポイントするとその施設の画像がご覧いただけます。


担当取扱い店舗情報

取扱い店舗画像
SUMORE NAGAOKA KONOMA Real Estate co.,ltd.
TEL: 0258-89-7833
所在地: 新潟県長岡市坂之上町二丁目3番地9sumoreビル
交通: JR長岡駅
営業時間: 9:00~18:00/定休日:日・祝日(事前予約受付しています)
免許番号: 新潟県知事(1)第5700号 この会社の情報を詳しく見る
所属団体名: 公社新潟県宅地建物取引協会 長岡支部
取引態様: 専属専任
ホームページ: https://sumore.co.jp/