| 現状有姿引渡し。公簿面積売買。 | |||
| 物件コード | 00344-200012 | ||
|---|---|---|---|
| 物件名 | 長岡市豊1丁目 売店舗 | ||
| 交通 | 駅:信越線 長岡駅から徒歩27分、バス:パルス前から徒歩5分 | ||
| 物件所在地 | 新潟県長岡市豊1丁目630番地2 | ||
| 物件種別 | 投資物件・その他 | ||
| 物件区分 | その他 | ||
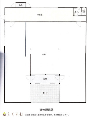
| 構造 | 鉄骨 | 階建 | 地上1階建 |
| 建ぺい率/容積率 | 60%/200% | ||
| 建物面積 | - | ||
| 土地面積 | 661.26㎡ /200.03坪 | ||
| 築年月 | 1989年9月(築36年) | ||
| 入居時期 | 随時入居(引き渡し)可 | ||
| 用途地域 | 第1種中高層住居専用地域 | 地目 | 宅地 |
| 都市計画 | 市街化区域 | 学校区 | 川崎東小学校(223m)・東北中学校(279m) |
| 形状 | 間口 18.72m × 奥行 35.32m | 道路 | 西側 長岡市道 |
| 私道 | - | ||
| 所在階/階数 | 1階/1階 | 号室 | - |
|---|---|---|---|
| 販売価格 | 48,000,000円 | 方位 | - |
| 表面利回り (満室想定時) |
8.8% | 満室想定年収 | 424,000円 (想定月収: 352,000円 ) |
| 現行利回り | 8.8% | 現行年間年収 | 424,000円 |
| 住戸数 | - | ||
| 間取り | - | ||
| 専有面積 | - | バルコニー面積 | - |
| その他面積 | - | 駐車場 | 賃料に含む |
| 管理費 | - | 修繕積立金 | - |
| 現況 | 賃貸中 | ||
| 仲介手数料 | 1,815,000円 | ||
| 利用制限 | ペット:不可 | ||
| 設備 | 駐車場(近隣含む)、公営水道、下水道、事業向け | ||
| 取引態様 | 専属専任 | ||
| 備考 | - | ||
| 情報登録日 | 2025/09/24 | 次回更新予定日 | 2026/06/05 |
| 取引条件有効期限 | 2024/12/24 | ||
|
|
|
|
|
| TEL: | 0258-89-7833 |
|---|---|
| 所在地: | 新潟県長岡市坂之上町二丁目3番地9sumoreビル |
| 交通: | JR長岡駅 |
| 営業時間: | 9:00~18:00/定休日:日・祝日(事前予約受付しています) |
| 免許番号: | 新潟県知事(1)第5700号 |
| 所属団体名: | 公社新潟県宅地建物取引協会 長岡支部 |
| 取引態様: | 専属専任 |