物件掲載企業数:301|賃貸物件:3,261件|売買物件:3,251件|今週の登録物件:296
閲覧中のブラウザ(インターネットエクスプローラー)は非推奨ブラウザです。
物件が正しく表示されなかったり、正しく検索されない場合があります。最新のブラウザ(Google Chrome・Edgeなど)にてご利用お願いいたします。
  

新潟県長岡市東新町1丁目510番75 投資物件・その他 23,000,000円の物件情報

日当たり良好、各戸駐車縦列2台可能

物件名/所在地 詳細 価格
表面利回り
【東新町1丁目】 売アパート
新潟県長岡市東新町1丁目510番75
  • 土地面積
    :212.66㎡ /64.32坪
  • 建ぺい率
    :60%
  • 容積率
    :200%
23,000,000
13.1%
(満室想定時)
  • 【東新町1丁目】 売アパート
    株式会社ミライ’s R Estate
  • この物件を問い合わせる/無料
  • TEL: 0258-94-4545

物件画像

外観 間取り
物件画像
※画像クリックで拡大表示
外観
物件画像
※画像クリックで拡大表示
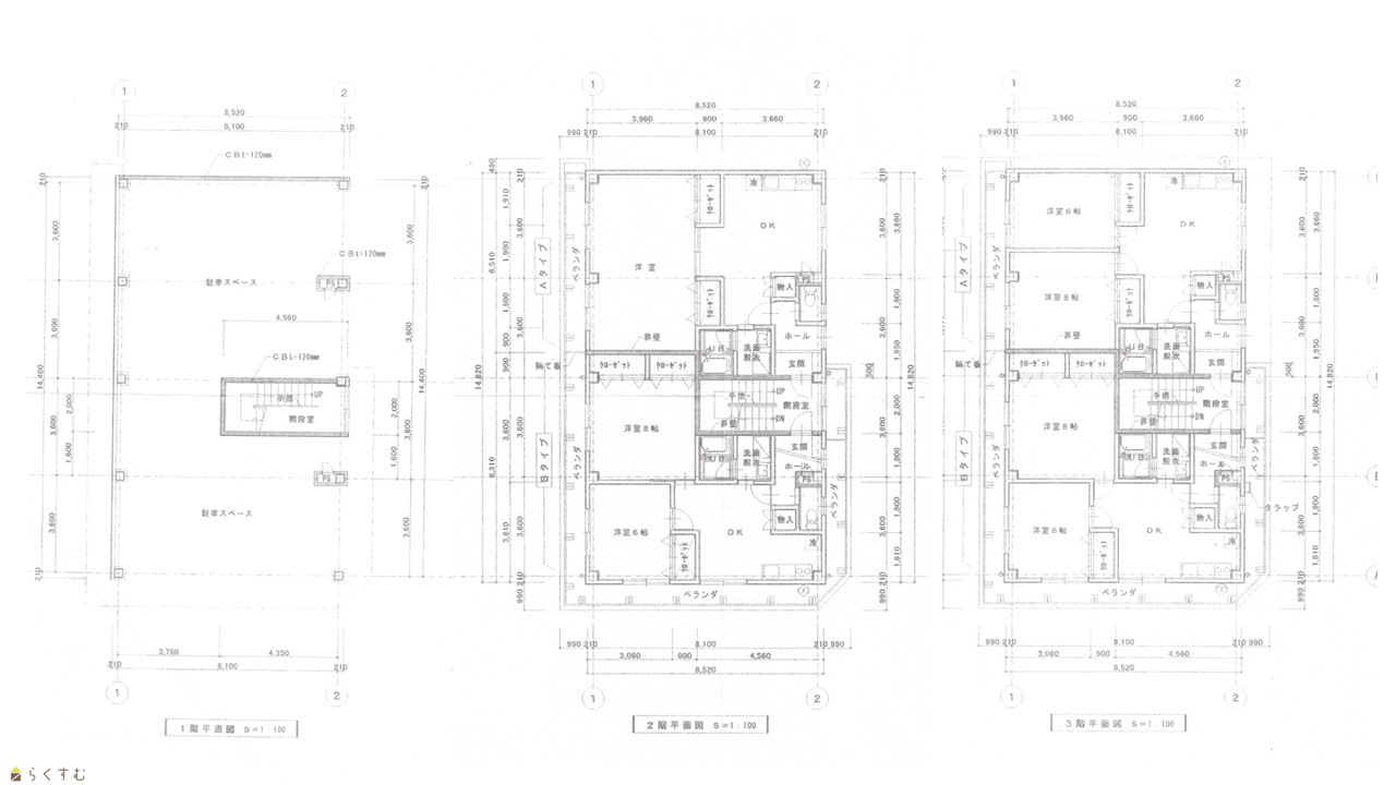
間取り
詳細画像


物件概要

物件コード 00322-200070
物件名 【東新町1丁目】 売アパート
交通 駅:信越線 長岡駅から徒歩21分、バス:新町1丁目から徒歩5分
物件所在地 新潟県長岡市東新町1丁目510番75
物件種別 投資物件・その他
物件区分 1棟売りマンション・アパート
構造 鉄骨 階建 地上3階建
建ぺい率/容積率 60%/200%
建物面積 1階 114.7㎡/ 2階 110.02㎡/ 3階 126.43㎡/ 計 351.15㎡ /106.22坪
土地面積 212.66㎡ /64.32坪
築年月 1978年12月(築47年)
入居(引き渡し)時期 相談
用途地域 第1種住居地域 地目 宅地
都市計画 市街化区域 学校区 新町小学校(487m)・北中学校(1,579m)
形状 - 道路 -
私道 - その他の制限 第3種高度地区
  • 【東新町1丁目】 売アパート
    株式会社ミライ’s R Estate
  • この物件を問い合わせる/無料
  • TEL: 0258-94-4545

物件詳細情報

所在階/階数 - 号室 -
販売価格 23,000,000円 方位 -
表面利回り(満室想定時) 13.1% 満室想定年収 3,024,000円 (想定月収: 252,000円 )
現行利回り 13.1% 現行年間年収 3,024,000円
住戸数 4
間取り -
専有面積 50㎡ /15.12坪 ~ 60㎡ /18.15坪 バルコニー面積 -
その他面積 - 駐車場 -
管理費 - 修繕積立金 -
現況 賃貸中
仲介手数料 825,000円
利用制限 ペット:不可、楽器:不可
設備 角地、公営水道、都市ガス、下水道
取引態様 一般
備考 -
取り扱い会社

株式会社ミライ’s R Estate

新潟県長岡市福住2-1-24高野ビル1階

情報登録日 2026/03/26 次回更新予定日 2026/06/05
取引条件有効期限 2026/09/26
  • 【東新町1丁目】 売アパート
    株式会社ミライ’s R Estate
  • この物件を問い合わせる/無料
  • TEL: 0258-94-4545

この物件の地図・周辺情報・行政情報

この物件の周辺情報・行政情報を詳しく見る
【周辺情報】
物件の近くにあるコンビニや銀行・学校など、アイコン付のマップで詳しく表示できます!
【行政情報】
水道料や下水道料・ガス料金など、暮らしに関係のある情報を表示しています。
ファミリーマート 長岡新町二丁目店(コンビニ)までm
ローソン 長岡石内一丁目店(コンビニ)までm
セブン-イレブン 長岡中島7丁目店(コンビニ)までm

※カメラのアイコンがある場合は、マウスをポイントするとその施設の画像がご覧いただけます。


担当取扱い店舗情報

取扱い店舗画像
株式会社ミライ’s R Estate
TEL: 0258-94-4545
所在地: 新潟県長岡市福住2-1-24高野ビル1階
交通: 長岡駅
営業時間: 9:00~18:00/定休日:土・日・祝
免許番号: 新潟県知事(1)第5634号 この会社の情報を詳しく見る
所属団体名: 公社 新潟県宅地建物取引協会 長岡支部
取引態様: 一般