| 物件コード | 00322-200070 | ||
|---|---|---|---|
| 物件名 | 【東新町1丁目】 売アパート | ||
| 交通 | 駅:信越線 長岡駅から徒歩21分、バス:新町1丁目から徒歩5分 | ||
| 物件所在地 | 新潟県長岡市東新町1丁目510番75 | ||
| 物件種別 | 投資物件・その他 | ||
| 物件区分 | 1棟売りマンション・アパート | ||
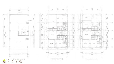
| 構造 | 鉄骨 | 階建 | 地上3階建 |
| 建ぺい率/容積率 | 60%/200% | ||
| 建物面積 | 1階 114.7㎡/ 2階 110.02㎡/ 3階 126.43㎡/ 計 351.15㎡ /106.22坪 | ||
| 土地面積 | 212.66㎡ /64.32坪 | ||
| 築年月 | 1978年12月(築47年) | ||
| 入居時期 | 相談 | ||
| 用途地域 | 第1種住居地域 | 地目 | 宅地 |
| 都市計画 | 市街化区域 | 学校区 | 新町小学校(487m)・北中学校(1,579m) |
| 形状 | - | 道路 | - |
| 私道 | - | ||
| 所在階/階数 | - | 号室 | - |
|---|---|---|---|
| 販売価格 | 23,000,000円 | 方位 | - |
| 表面利回り (満室想定時) |
13.1% | 満室想定年収 | 3,024,000円 (想定月収: 252,000円 ) |
| 現行利回り | 13.1% | 現行年間年収 | 3,024,000円 |
| 住戸数 | 4 | ||
| 間取り | - | ||
| 専有面積 | 50㎡ /15.12坪 ~ 60㎡ /18.15坪 | バルコニー面積 | - |
| その他面積 | - | 駐車場 | - |
| 管理費 | - | 修繕積立金 | - |
| 現況 | 賃貸中 | ||
| 仲介手数料 | 825,000円 | ||
| 利用制限 | ペット:不可、楽器:不可 | ||
| 設備 | 角地、公営水道、都市ガス、下水道 | ||
| 取引態様 | 一般 | ||
| 備考 | - | ||
| 情報登録日 | 2026/03/26 | 次回更新予定日 | 2026/06/05 |
| 取引条件有効期限 | 2026/09/26 | ||
|
|
|
|
| TEL: | 0258-94-4545 |
|---|---|
| 所在地: | 新潟県長岡市福住2-1-24高野ビル1階 |
| 交通: | 長岡駅 |
| 営業時間: | 9:00~18:00/定休日:土・日・祝 |
| 免許番号: | 新潟県知事(1)第5634号 |
| 所属団体名: | 公社 新潟県宅地建物取引協会 長岡支部 |
| 取引態様: | 一般 |