物件掲載企業数:301|賃貸物件:3,261件|売買物件:3,251件|今週の登録物件:296
閲覧中のブラウザ(インターネットエクスプローラー)は非推奨ブラウザです。
物件が正しく表示されなかったり、正しく検索されない場合があります。最新のブラウザ(Google Chrome・Edgeなど)にてご利用お願いいたします。
  

新潟県長岡市東坂之上町3丁目2-1 中古マンション 5LDK 5,500,000円の物件情報

♪長岡駅中心地まで徒歩5分♪ ゆったり5LDK+S

物件名/所在地 詳細 価格
【東坂之上】 中古マンション CASA東坂之上 101号
101号室
新潟県長岡市東坂之上町3丁目2-1
  • 専有面積
    :103.02㎡ /31.16坪
  • 間取り
    :5LDK
  • 築年月
    :1988年8月
5,500,000
  • 【東坂之上】 中古マンション CASA東坂之上 101号
    株式会社ミライ’s R Estate
  • この物件を問い合わせる/無料
  • TEL: 0258-94-4545

物件画像

外観 間取り
物件画像
※画像クリックで拡大表示
外観
物件画像
※画像クリックで拡大表示
間取り
詳細画像


物件概要

物件コード 00322-200062
物件名 【東坂之上】 中古マンション CASA東坂之上 101号
交通 駅:上越新幹線 長岡駅から徒歩5分、バス:スズラン通りから徒歩2分
物件所在地 新潟県長岡市東坂之上町3丁目2-1
物件種別 中古マンション
構造 鉄筋コン 階建 地上6階建
建ぺい率/容積率 80%/400%
建物面積 -
土地面積 -
築年月 1988年8月(築37年)
入居(引き渡し)時期 相談
用途地域 商業地域 地目 宅地
都市計画 市街化区域 学校区 阪之上小学校(562m)・東中学校(1,214m)
形状 - 道路 公道
私道 - その他の制限 -
  • 【東坂之上】 中古マンション CASA東坂之上 101号
    株式会社ミライ’s R Estate
  • この物件を問い合わせる/無料
  • TEL: 0258-94-4545

物件詳細情報

所在階/階数 1階/6階 号室 101号室
販売価格 5,500,000円 方位 北西
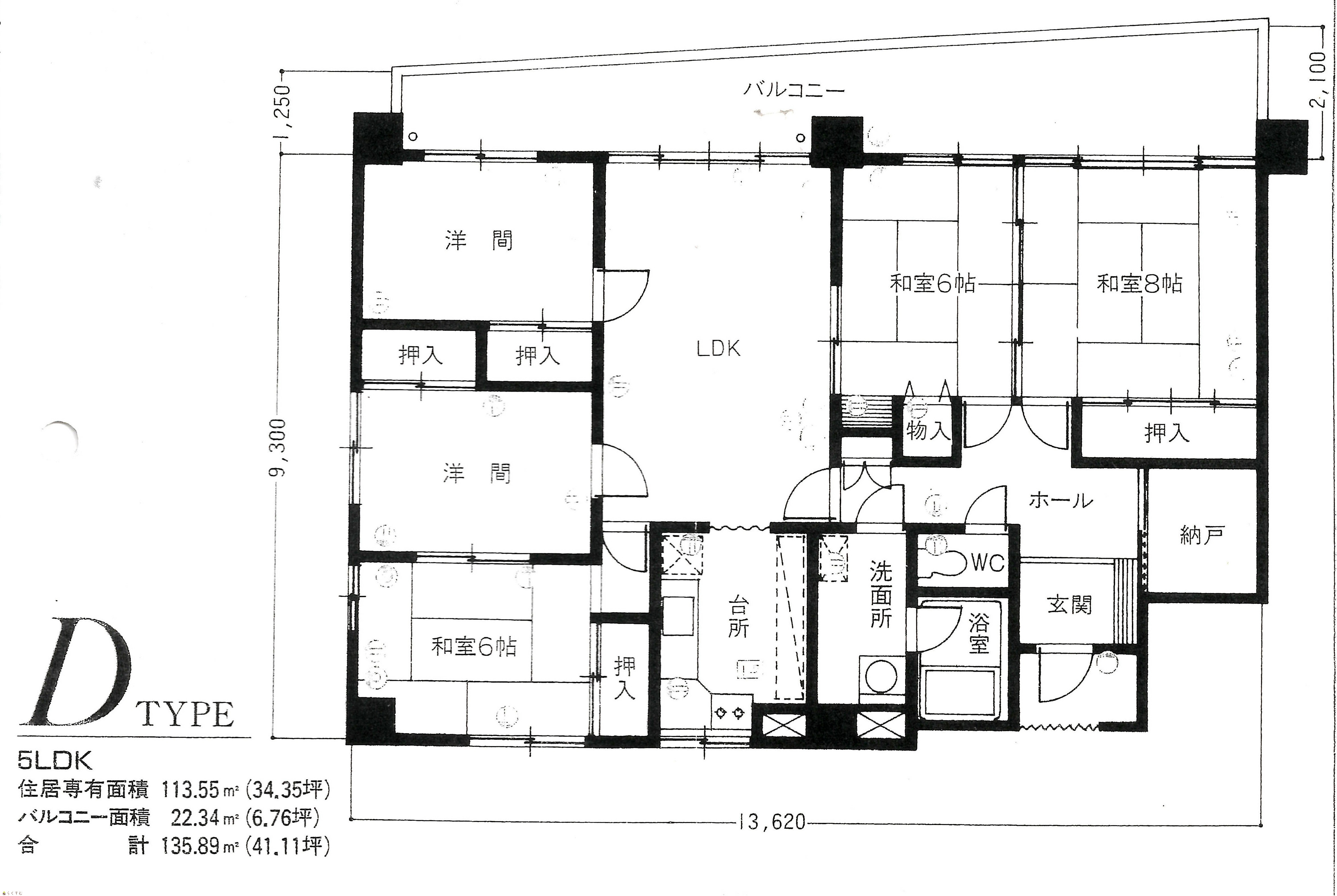
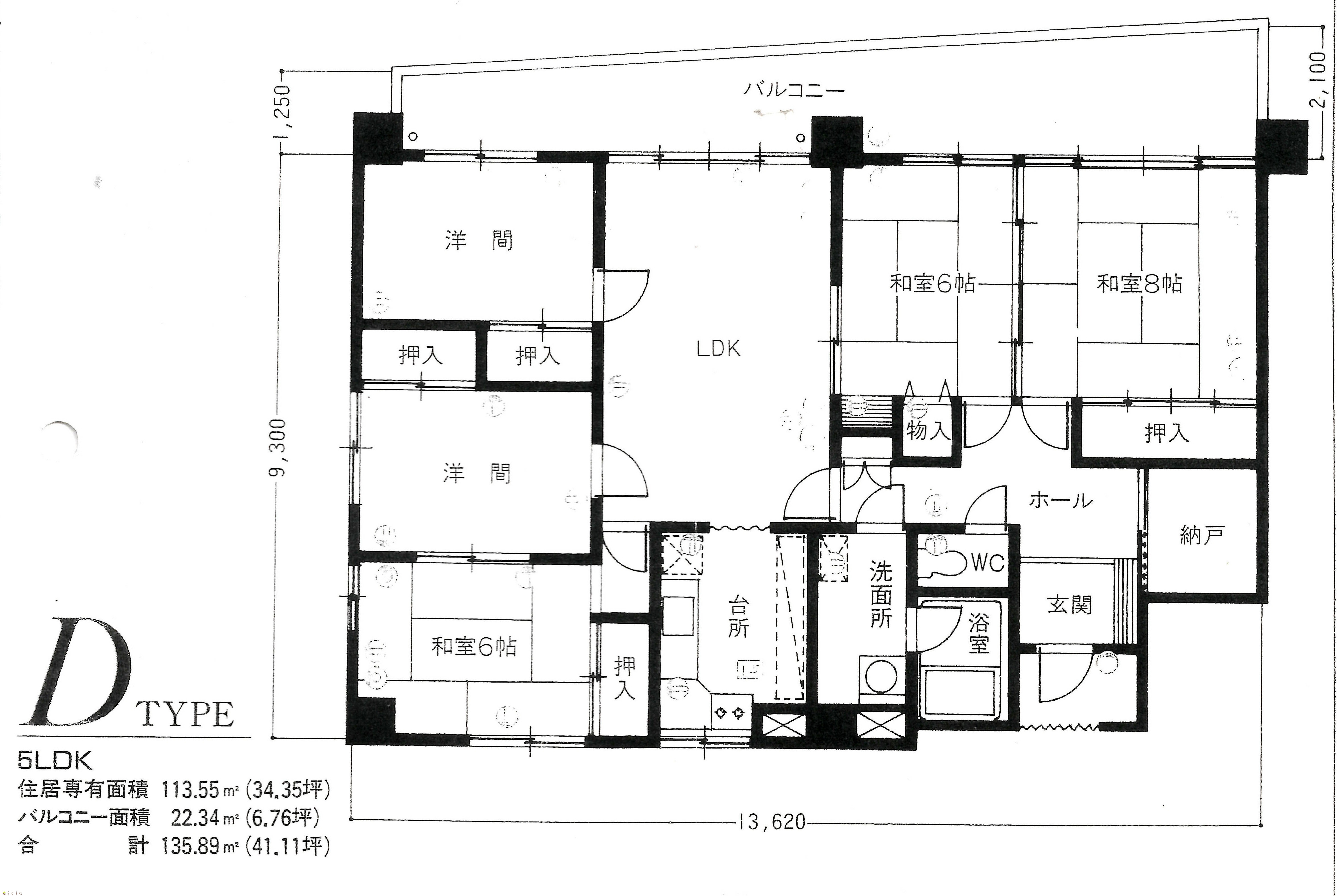
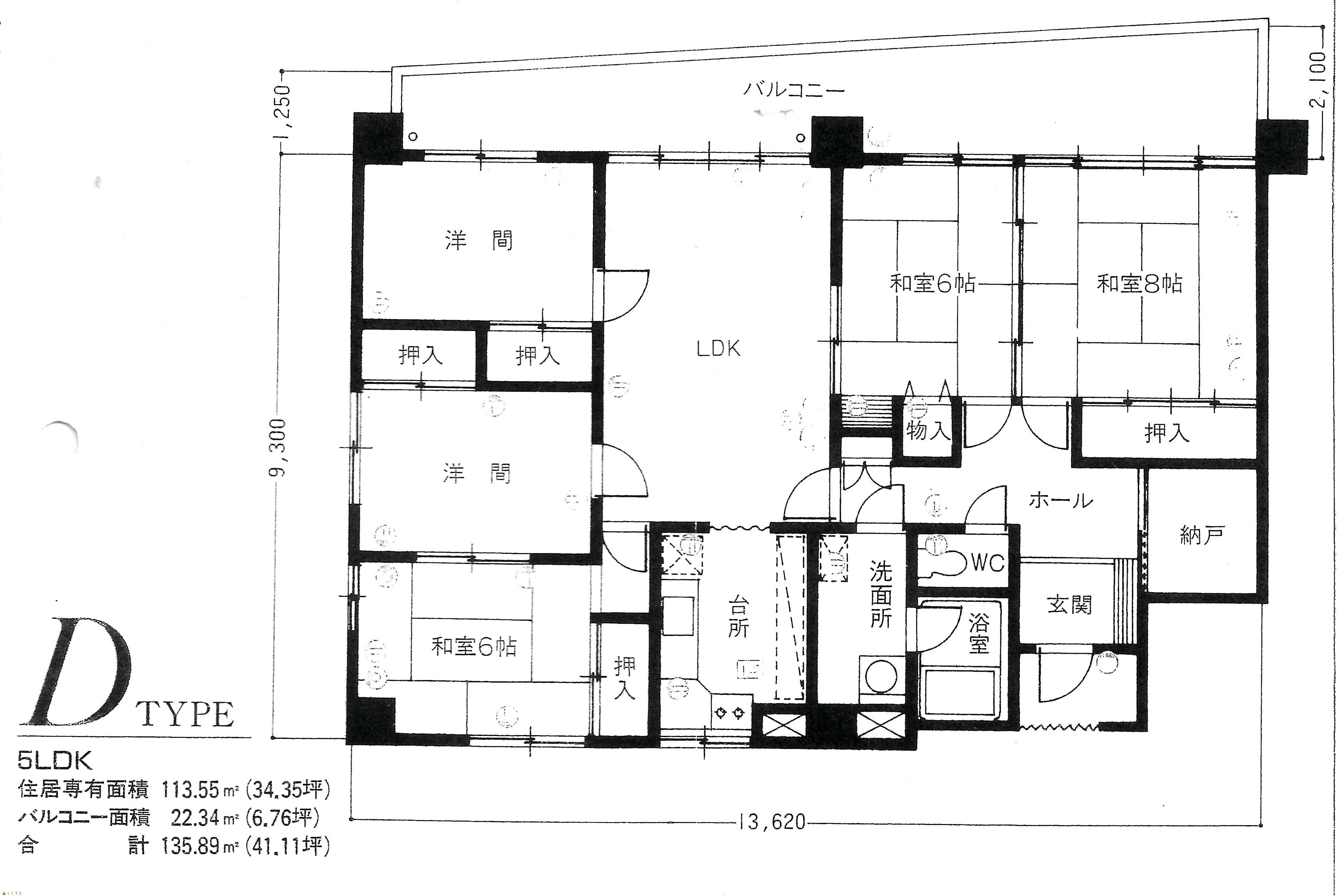
間取り 5LDK
5LDK+S(納戸)
専有面積 103.02㎡ /31.16坪 バルコニー面積 22.34㎡ /6.75坪
その他面積 - 駐車場 -
管理費 21000 修繕積立金 8500
現況 空家
仲介手数料 330,000円
利用制限 ペット:不可、楽器:不可
設備 角部屋、最寄駅近く、洗濯機置き場、エレベーター、LDK15帖以上、和室あり、都市ガス、公営水道、下水道、シューズBOX
取引態様 一般
備考 ※現況有姿渡し
取り扱い会社

株式会社ミライ’s R Estate

新潟県長岡市福住2-1-24高野ビル1階

情報登録日 2025/11/21 次回更新予定日 2026/06/05
取引条件有効期限 2026/05/11
  • 【東坂之上】 中古マンション CASA東坂之上 101号
    株式会社ミライ’s R Estate
  • この物件を問い合わせる/無料
  • TEL: 0258-94-4545

この物件の地図・周辺情報・行政情報

この物件の周辺情報・行政情報を詳しく見る
【周辺情報】
物件の近くにあるコンビニや銀行・学校など、アイコン付のマップで詳しく表示できます!
【行政情報】
水道料や下水道料・ガス料金など、暮らしに関係のある情報を表示しています。
ローソン 長岡駅大手口店(コンビニ)まで240m

※カメラのアイコンがある場合は、マウスをポイントするとその施設の画像がご覧いただけます。


担当取扱い店舗情報

取扱い店舗画像
株式会社ミライ’s R Estate
TEL: 0258-94-4545
所在地: 新潟県長岡市福住2-1-24高野ビル1階
交通: 長岡駅
営業時間: 9:00~18:00/定休日:土・日・祝
免許番号: 新潟県知事(1)第5634号 この会社の情報を詳しく見る
所属団体名: 公社 新潟県宅地建物取引協会 長岡支部
取引態様: 一般