| 物件コード | 00322-200062 | ||
|---|---|---|---|
| 物件名 | 【東坂之上】 中古マンション CASA東坂之上 101号 | ||
| 交通 | 駅:上越新幹線 長岡駅から徒歩5分、バス:スズラン通りから徒歩2分 | ||
| 物件所在地 | 新潟県長岡市東坂之上町3丁目2-1 | ||
| 物件種別 | 中古マンション | ||
| 構造 | 鉄筋コン | 階建 | 地上6階建 |
| 建ぺい率/容積率 | 80%/400% | ||
| 建物面積 | - | ||
| 土地面積 | - | ||
| 築年月 | 1988年8月(築37年) | ||
| 入居時期 | 相談 | ||
| 用途地域 | 商業地域 | 地目 | 宅地 |
| 都市計画 | 市街化区域 | 学校区 | 阪之上小学校(562m)・東中学校(1,214m) |
| 形状 | - | 道路 | 公道 |
| 私道 | - | ||
| 所在階/階数 | 1階/6階 | 号室 | 101号室 |
|---|---|---|---|
| 販売価格 | 5,500,000円 | 方位 | 北西 |
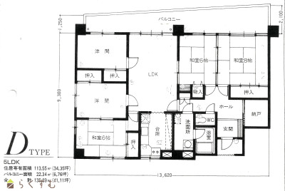
| 間取り |
5LDK 5LDK+S(納戸) |
||
| 専有面積 | 103.02㎡ /31.16坪 | バルコニー面積 | 22.34㎡ /6.75坪 |
| その他面積 | - | 駐車場 | - |
| 管理費 | 21000 | 修繕積立金 | 8500 |
| 現況 | 空家 | ||
| 仲介手数料 | 330,000円 | ||
| 利用制限 | ペット:不可、楽器:不可 | ||
| 設備 | 角部屋、最寄駅近く、洗濯機置き場、エレベーター、LDK15帖以上、和室あり、都市ガス、公営水道、下水道、シューズBOX | ||
| 取引態様 | 一般 | ||
| 備考 | ※現況有姿渡し | ||
| 情報登録日 | 2025/11/21 | 次回更新予定日 | 2026/06/05 |
| 取引条件有効期限 | 2026/05/11 | ||
|
|
|
|
|
| TEL: | 0258-94-4545 |
|---|---|
| 所在地: | 新潟県長岡市福住2-1-24高野ビル1階 |
| 交通: | 長岡駅 |
| 営業時間: | 9:00~18:00/定休日:土・日・祝 |
| 免許番号: | 新潟県知事(1)第5634号 |
| 所属団体名: | 公社 新潟県宅地建物取引協会 長岡支部 |
| 取引態様: | 一般 |