物件掲載企業数:297|賃貸物件:3,610件|売買物件:3,333件|今週の登録物件:272
閲覧中のブラウザ(インターネットエクスプローラー)は非推奨ブラウザです。
物件が正しく表示されなかったり、正しく検索されない場合があります。最新のブラウザ(Google Chrome・Edgeなど)にてご利用お願いいたします。
  

新潟県新潟市中央区弁天3丁目3番17万代アーバン日東 中古マンション 1R 7,000,000円の物件情報

新潟駅徒歩5分!2つの窓から光が差し込む開放感のあるワンルーム。

物件名/所在地 詳細 価格
万代アーバン日東
※号室
新潟県新潟市中央区弁天3丁目3番17万代アーバン日東
  • 専有面積
    :37.44㎡ /11.32坪
  • 間取り
    :1R
  • 築年月
    :1989年10月
7,000,000
  • 万代アーバン日東
    有限会社 ブライトサクセス
  • この物件を問い合わせる/無料
  • TEL: 0258-35-2220

物件画像

外観 間取り
物件画像
※画像クリックで拡大表示
外観
物件画像
※画像クリックで拡大表示
間取り
詳細画像
動画


物件概要

新潟駅徒歩5分の好立地で通勤・通学に便利 。万代弁天エリアで買い物・飲食店も充実 。12.8帖の広々ワンルームで家具配置もしやすい 。ベランダに面した窓が2つあり、開放感たっぷり 。眺望良好で、日中は明るく夜景も楽しめる 。単身の方・初めての一人暮らし・アクセス重視の方におすすめ
物件コード 00320-200210
物件名 万代アーバン日東
交通 駅:上越新幹線 新潟駅から徒歩9分、バス:弁天二丁目から徒歩4分
物件所在地 新潟県新潟市中央区弁天3丁目3番17万代アーバン日東
物件種別 中古マンション
構造 鉄骨鉄筋コン 階建 地上11階建
建ぺい率/容積率 80%/600%
建物面積 計 37.44㎡ /11.32坪
土地面積 -
築年月 1989年10月(築36年)
入居(引き渡し)時期 相談
用途地域 商業地域 地目 宅地
都市計画 市街化区域 学校区 南万代小学校(649m)・宮浦中学校(850m)
形状 - 道路 -
私道 - その他の制限 道路斜線制限 隣地斜線制限 準防火地域 駐車場整備地区
  • 万代アーバン日東
    有限会社 ブライトサクセス
  • この物件を問い合わせる/無料
  • TEL: 0258-35-2220

物件詳細情報

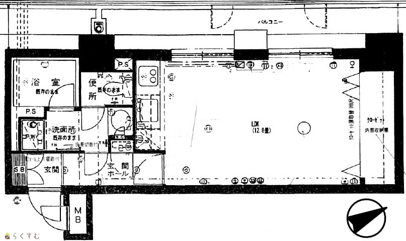
所在階/階数 6階/11階 号室 ※号室
販売価格 7,000,000円 方位 北西
間取り 1R
LDK12.8
専有面積 37.44㎡ /11.32坪 バルコニー面積 13.77㎡ /4.16坪
その他面積 - 駐車場 -
管理費 月額8620円 修繕積立金 月額8800円
現況 空家
仲介手数料 330,000円
利用制限 -
設備 10階建て以上、2階以上、日当り良好、洗濯機置き場、エレベーター、宅配BOX、全室フローリング、駐輪場、3口コンロ、エアコン、内装リフォーム済み
取引態様 一般
備考 管理会社:日本ハウズイング株式会社
取り扱い会社

有限会社 ブライトサクセス

新潟県長岡市新町1-1-2

情報登録日 2025/12/23 次回更新予定日 2026/01/13
取引条件有効期限 2026/10/09
  • 万代アーバン日東
    有限会社 ブライトサクセス
  • この物件を問い合わせる/無料
  • TEL: 0258-35-2220

この物件の地図・周辺情報・行政情報

この物件の周辺情報・行政情報を詳しく見る
【周辺情報】
物件の近くにあるコンビニや銀行・学校など、アイコン付のマップで詳しく表示できます!
【行政情報】
水道料や下水道料・ガス料金など、暮らしに関係のある情報を表示しています。

担当取扱い店舗情報

取扱い店舗画像
有限会社 ブライトサクセス
TEL: 0258-35-2220
所在地: 新潟県長岡市新町1-1-2
交通: 長岡駅
営業時間: 午前10時00分~午後6時 /定休日:オンラインサービス:午前9時30分~午後9時
免許番号: 新潟県知事(1)第5629号 この会社の情報を詳しく見る
所属団体名: 公社 新潟県宅地建物取引協会 新潟支部
取引態様: 一般
ホームページ: https://bright-success.net/