| 新潟駅徒歩5分の好立地で通勤・通学に便利 。万代弁天エリアで買い物・飲食店も充実 。12.8帖の広々ワンルームで家具配置もしやすい 。ベランダに面した窓が2つあり、開放感たっぷり 。眺望良好で、日中は明るく夜景も楽しめる 。単身の方・初めての一人暮らし・アクセス重視の方におすすめ | |||
| 物件コード | 00320-200210 | ||
|---|---|---|---|
| 物件名 | 万代アーバン日東 | ||
| 交通 | 駅:上越新幹線 新潟駅から徒歩9分、バス:弁天二丁目から徒歩4分 | ||
| 物件所在地 | 新潟県新潟市中央区弁天3丁目3番17万代アーバン日東 | ||
| 物件種別 | 中古マンション | ||
| 構造 | 鉄骨鉄筋コン | 階建 | 地上11階建 |
| 建ぺい率/容積率 | 80%/600% | ||
| 建物面積 | 計 37.44㎡ /11.32坪 | ||
| 土地面積 | - | ||
| 築年月 | 1989年10月(築36年) | ||
| 入居時期 | 相談 | ||
| 用途地域 | 商業地域 | 地目 | 宅地 |
| 都市計画 | 市街化区域 | 学校区 | 南万代小学校(649m)・宮浦中学校(850m) |
| 形状 | - | 道路 | - |
| 私道 | - | ||
| 所在階/階数 | 6階/11階 | 号室 | ※号室 |
|---|---|---|---|
| 販売価格 | 7,000,000円 | 方位 | 北西 |
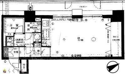
| 間取り |
1R LDK12.8 |
||
| 専有面積 | 37.44㎡ /11.32坪 | バルコニー面積 | 13.77㎡ /4.16坪 |
| その他面積 | - | 駐車場 | - |
| 管理費 | 月額8620円 | 修繕積立金 | 月額8800円 |
| 現況 | 空家 | ||
| 仲介手数料 | 330,000円 | ||
| 利用制限 | - | ||
| 設備 | 10階建て以上、2階以上、日当り良好、洗濯機置き場、エレベーター、宅配BOX、全室フローリング、駐輪場、3口コンロ、エアコン、内装リフォーム済み | ||
| 取引態様 | 一般 | ||
| 備考 | 管理会社:日本ハウズイング株式会社 | ||
| 情報登録日 | 2025/12/23 | 次回更新予定日 | 2026/01/13 |
| 取引条件有効期限 | 2026/10/09 | ||
|
|
|
|
| TEL: | 0258-35-2220 |
|---|---|
| 所在地: | 新潟県長岡市新町1-1-2 |
| 交通: | 長岡駅 |
| 営業時間: | 午前10時00分~午後6時 /定休日:オンラインサービス:午前9時30分~午後9時 |
| 免許番号: | 新潟県知事(1)第5629号 |
| 所属団体名: | 公社 新潟県宅地建物取引協会 新潟支部 |
| 取引態様: | 一般 |