物件掲載企業数:297|賃貸物件:3,610件|売買物件:3,333件|今週の登録物件:272
閲覧中のブラウザ(インターネットエクスプローラー)は非推奨ブラウザです。
物件が正しく表示されなかったり、正しく検索されない場合があります。最新のブラウザ(Google Chrome・Edgeなど)にてご利用お願いいたします。
  

新潟県上越市寺町3丁目6-38 中古一戸建て 5DK 1,000,000円の物件情報

高田駅より徒歩4分! 5DKの戸建です! 土地は借地。

物件名/所在地 詳細 価格
寺町3丁目 中古戸建
新潟県上越市寺町3丁目6-38
  • 土地面積
    :344.34㎡ /104.16坪
  • 建物面積
    :120.65㎡ /36.49坪
  • 間取り
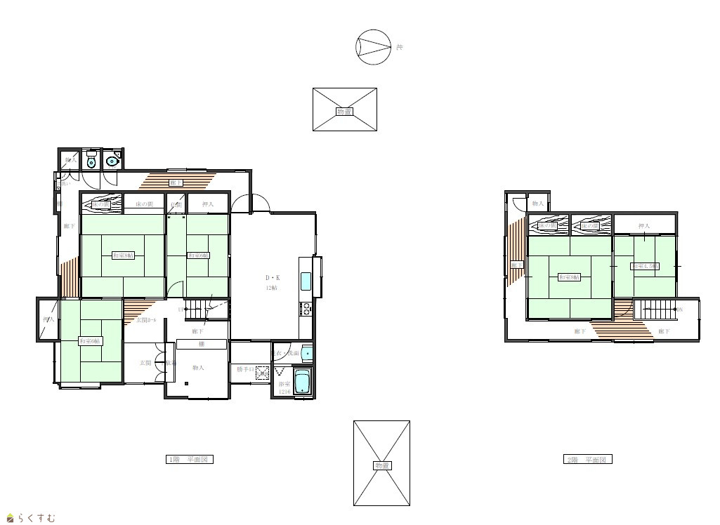
    :5DK
  • 築年月
    :1930年4月
1,000,000
  • 寺町3丁目 中古戸建
    越乃エステート株式会社
  • この物件を問い合わせる/無料
  • TEL: 025-520-6623

物件画像

外観 間取り
物件画像
※画像クリックで拡大表示
外観
物件画像
※画像クリックで拡大表示
間取り
詳細画像


物件概要

浴室及び玄関・居間6帖もリフォーム済み。
物件コード 00250-200076
物件名 寺町3丁目 中古戸建
交通 駅:妙高はねうまライン 高田駅から徒歩4分、バス:高田駅前から徒歩4分
物件所在地 新潟県上越市寺町3丁目6-38
物件種別 中古一戸建て
構造 木造 階建 地上2階建
建ぺい率/容積率 60%/200%
建物面積 1階 80.99㎡/ 2階 39.66㎡/ 計 120.65㎡ /36.49坪
土地面積 344.34㎡ /104.16坪
築年月 1930年4月(築95年)
入居(引き渡し)時期 随時入居(引き渡し)可
用途地域 第1種中高層住居専用地域 地目 宅地  (現状:宅地)
都市計画 市街化区域 学校区 大町小学校(637m)・城北中学校(1,135m)
形状 間口 16.6m × 奥行 20.7m 道路 上越市道 幅員7.5m(歩道2.1m含む) 消雪パイプ有り
私道 - その他の制限 準防火地域
  • 寺町3丁目 中古戸建
    越乃エステート株式会社
  • この物件を問い合わせる/無料
  • TEL: 025-520-6623

物件詳細情報

所在階/階数 - 号室 -
販売価格 1,000,000円 方位
間取り 5DK (和室:8畳、6畳、6畳、8畳、4.5畳)
DK12帖
物置2棟有(未登記)
専有面積 - バルコニー面積 -
その他面積 - 駐車場 -
管理費 - 修繕積立金 -
現況 空家
仲介手数料 330,000円
建物の固定資産税(年間) 4,621円
利用制限 -
設備 日当り良好、駐車2台可能、南向き、ガスコンロ設置可能、追いだき機能付き、エアコンあり、都市ガス、上水道、床下収納、内装リフォーム済み
取引態様 専任
備考 ・土地は旧法借地権(期間:30年) 地代(月額)17,360円。
・トイレは簡易水洗(年4回汲取り 費用約計40,000円/年)。
・玄関前に消雪用ポンプ有り。
取り扱い会社

越乃エステート株式会社

新潟県上越市春日野1丁目7番4号オフィスYAMADA-B号

情報登録日 2025/12/08 次回更新予定日 2026/01/13
取引条件有効期限 2026/03/09
  • 寺町3丁目 中古戸建
    越乃エステート株式会社
  • この物件を問い合わせる/無料
  • TEL: 025-520-6623

この物件の地図・周辺情報・行政情報

この物件の周辺情報・行政情報を詳しく見る
【周辺情報】
物件の近くにあるコンビニや銀行・学校など、アイコン付のマップで詳しく表示できます!
【行政情報】
水道料や下水道料・ガス料金など、暮らしに関係のある情報を表示しています。
ローソン 上越高田駅前店(コンビニ)まで490m
イチコ 幸店(スーパー)まで850m
(医)知命堂病院(病院)まで680m
高田駅前郵便局(郵便局)まで400m

※カメラのアイコンがある場合は、マウスをポイントするとその施設の画像がご覧いただけます。


担当取扱い店舗情報

取扱い店舗画像
越乃エステート株式会社
TEL: 025-520-6623
所在地: 新潟県上越市春日野1丁目7番4号オフィスYAMADA-B号
交通: 春日山駅より徒歩8分
営業時間: 9:00~17:00/定休日:水・日
免許番号: 新潟県知事(1)第5592号 この会社の情報を詳しく見る
所属団体名: 公益社団法人 全日本不動産協会 新潟県本部
取引態様: 専任
ホームページ: https://koshino-e.com