| 浴室及び玄関・居間6帖もリフォーム済み。 | |||
| 物件コード | 00250-200076 | ||
|---|---|---|---|
| 物件名 | 寺町3丁目 中古戸建 | ||
| 交通 | 駅:妙高はねうまライン 高田駅から徒歩4分、バス:高田駅前から徒歩4分 | ||
| 物件所在地 | 新潟県上越市寺町3丁目6-38 | ||
| 物件種別 | 中古一戸建て | ||
| 構造 | 木造 | 階建 | 地上2階建 |
| 建ぺい率/容積率 | 60%/200% | ||
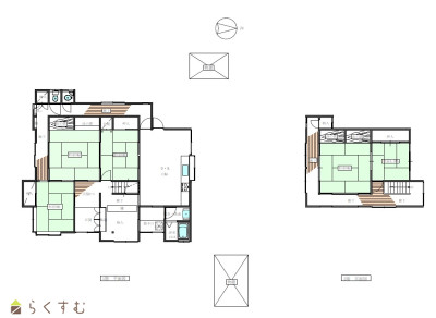
| 建物面積 | 1階 80.99㎡/ 2階 39.66㎡/ 計 120.65㎡ /36.49坪 | ||
| 土地面積 | 344.34㎡ /104.16坪 | ||
| 築年月 | 1930年4月(築95年) | ||
| 入居時期 | 随時入居(引き渡し)可 | ||
| 用途地域 | 第1種中高層住居専用地域 | 地目 | 宅地 (現状:宅地) |
| 都市計画 | 市街化区域 | 学校区 | 大町小学校(637m)・城北中学校(1,135m) |
| 形状 | 間口 16.6m × 奥行 20.7m | 道路 | 上越市道 幅員7.5m(歩道2.1m含む) 消雪パイプ有り |
| 私道 | - | ||
| 所在階/階数 | - | 号室 | - |
|---|---|---|---|
| 販売価格 | 1,000,000円 | 方位 | 東 |
| 間取り |
5DK (和室:8畳、6畳、6畳、8畳、4.5畳) DK12帖 物置2棟有(未登記) |
||
| 専有面積 | - | バルコニー面積 | - |
| その他面積 | - | 駐車場 | - |
| 管理費 | - | 修繕積立金 | - |
| 現況 | 空家 | ||
| 仲介手数料 | 330,000円 | ||
| 利用制限 | - | ||
| 設備 | 日当り良好、駐車2台可能、南向き、ガスコンロ設置可能、追いだき機能付き、エアコンあり、都市ガス、上水道、床下収納、内装リフォーム済み | ||
| 取引態様 | 専任 | ||
| 備考 | ・土地は旧法借地権(期間:30年) 地代(月額)17,360円。 ・トイレは簡易水洗(年4回汲取り 費用約計40,000円/年)。 ・玄関前に消雪用ポンプ有り。 |
||
| 情報登録日 | 2025/12/08 | 次回更新予定日 | 2026/01/13 |
| 取引条件有効期限 | 2026/03/09 | ||
|
|
|
|
| TEL: | 025-520-6623 |
|---|---|
| 所在地: | 新潟県上越市春日野1丁目7番4号オフィスYAMADA-B号 |
| 交通: | 春日山駅より徒歩8分 |
| 営業時間: | 9:00~17:00/定休日:水・日 |
| 免許番号: | 新潟県知事(1)第5592号 |
| 所属団体名: | 公益社団法人 全日本不動産協会 新潟県本部 |
| 取引態様: | 専任 |