物件掲載企業数:301|賃貸物件:3,261件|売買物件:3,251件|今週の登録物件:245
閲覧中のブラウザ(インターネットエクスプローラー)は非推奨ブラウザです。
物件が正しく表示されなかったり、正しく検索されない場合があります。最新のブラウザ(Google Chrome・Edgeなど)にてご利用お願いいたします。
  

新潟県長岡市関原町1丁目4578 中古一戸建て 6LDK 16,800,000円の物件情報

【駐車4台分のインナーガレージ・倉庫付き】二世帯におすすめのゆとりある邸宅 ■2階・3階にLDK×2 ■床暖・壁掛けパネルヒーター完備 ■学校・商業施設・国道近く

物件名/所在地 詳細 価格
長岡市関原町 売家
新潟県長岡市関原町1丁目4578
  • 土地面積
    :390.73㎡ /118.19坪
  • 建物面積
    :324.38㎡ /98.12坪
  • 間取り
    :6LDK
  • 築年月
    :1998年10月
16,800,000
  • 長岡市関原町 売家
    新潟土地建物販売センター 株式会社
  • この物件を問い合わせる/無料
  • TEL: 0258-89-8245

物件画像

外観 間取り
物件画像
※画像クリックで拡大表示
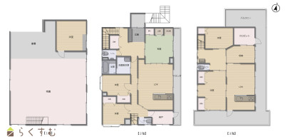
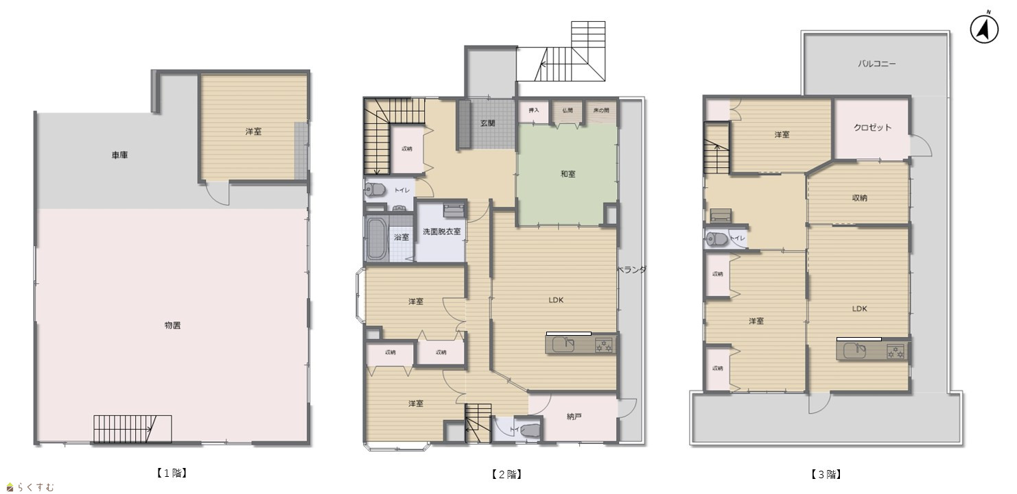
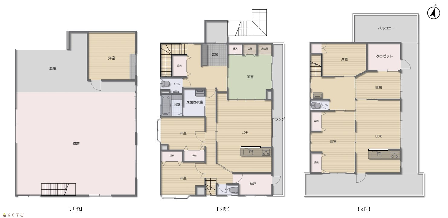
角地で陽当たり◎広い庭と大きな家が魅力の3階建て住宅。
物件画像
※画像クリックで拡大表示
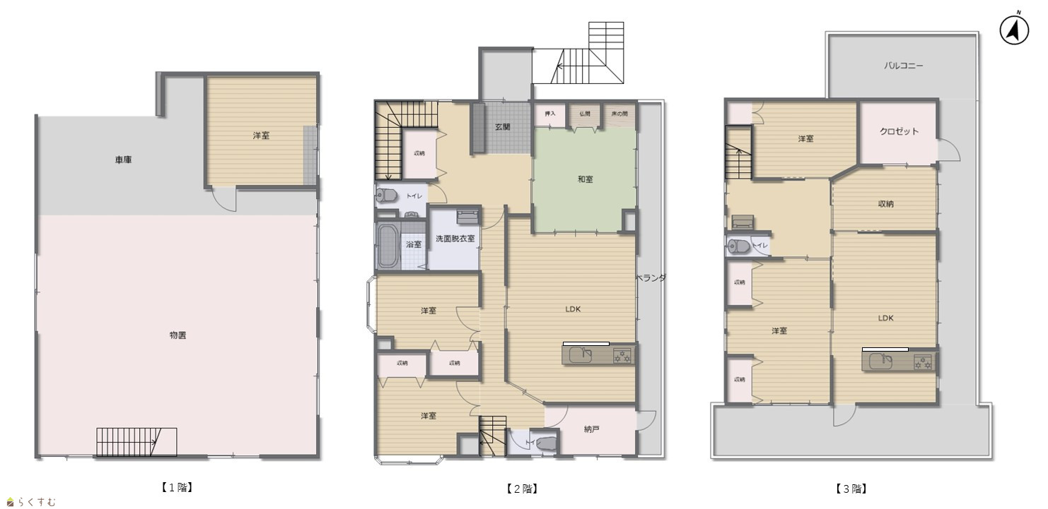
間取り図は現況を優先します。
詳細画像


物件概要

2階・3階にLDKを備えた二世帯住宅にぴったりな3階建て住宅。1階は駐車4台分のガレージや倉庫があり、商業施設・学校徒歩圏内、国道8号線も近く利便性抜群です。お気軽にお問い合わせください♪
物件コード 00239-200612
物件名 長岡市関原町 売家
交通 駅:上越新幹線 長岡駅から徒歩92分、バス:関原1丁目から徒歩2分
物件所在地 新潟県長岡市関原町1丁目4578
物件種別 中古一戸建て
構造 鉄骨 階建 地上3階建
建ぺい率/容積率 70%/200%
建物面積 1階 124.73㎡/ 2階 118.11㎡/ 3階 81.54㎡/ 計 324.38㎡ /98.12坪
土地面積 390.73㎡ /118.19坪
築年月 1998年10月(築27年)
入居(引き渡し)時期 相談
用途地域 第1種住居地域 地目 宅地
都市計画 市街化区域 学校区 関原小学校(600m)・関原中学校(700m)
形状 間口 18.6m × 奥行 18.9m 道路 北側6.0m公道、西側6.0m公道
私道 - その他の制限 斜線制限(道路・隣地・北側)/第二種高度地区/第三種高度地区/日影制限/法22条
  • 長岡市関原町 売家
    新潟土地建物販売センター 株式会社
  • この物件を問い合わせる/無料
  • TEL: 0258-89-8245

物件詳細情報

所在階/階数 - 号室 -
販売価格 16,800,000円 方位
間取り 6LDK
専有面積 - バルコニー面積 -
その他面積 - 駐車場 -
管理費 - 修繕積立金 -
現況 空家
仲介手数料 620,400円
利用制限 -
設備 角地、高台に立地、日当り良好、閑静な住宅街、スーパー近く、駐車3台以上可能、システムキッチン、カウンターキッチン、3口コンロ、追いだき機能付き、バス1坪以上、温水洗浄便座、トイレ2か所以上、シャワー付き洗面台、エアコンあり、床暖房、LPG、上水道、下水道、ウォークインクローゼット、シューズBOX、内装リフォーム済み、外装リフォーム済み、2世帯向き、事業向け
取引態様 専任
備考 【教育機関】
関原小学校 約600m 徒歩約8分
関原中学校 約700m 徒歩約9分

【交通機関】
上越新幹線 長岡駅 車約19分
越後交通 関原1丁目 徒歩約2分

【お引渡し条件】
※売主契約不適合責任免責

【備考】
※間口と奥行は測量図に基づく寸法の為、実際の寸法と異なる可能性があります
※用途地域:第一種住居地域/第一種中高層住居専用地域
※鉄骨吹付断熱材は石綿含有調査実施済(含有無)
※契約後、売主負担で残置処分実施

◇リフォーム内容◇
■外壁・屋根塗装:2022年8月
■2F南側トイレ:時期不詳

―物件情報―
・高台3階建てで長岡花火も望めます
・開放感のある角地で陽当たりも風通しも良好
・広々としたお庭でガーデニングや家庭菜園を楽しめます
・閑静な住宅地の落ち着いた環境です
取り扱い会社

新潟土地建物販売センター 株式会社

新潟県長岡市台町1-7-331階

情報登録日 2026/03/01 次回更新予定日 2026/06/06
取引条件有効期限 2026/12/31
  • 長岡市関原町 売家
    新潟土地建物販売センター 株式会社
  • この物件を問い合わせる/無料
  • TEL: 0258-89-8245

この物件の地図・周辺情報・行政情報

この物件の周辺情報・行政情報を詳しく見る
【周辺情報】
物件の近くにあるコンビニや銀行・学校など、アイコン付のマップで詳しく表示できます!
【行政情報】
水道料や下水道料・ガス料金など、暮らしに関係のある情報を表示しています。
原信 関原店(スーパー)まで40m
ウエルシア長岡関原店 (調剤薬局)(ドラッグストア)まで220m

※カメラのアイコンがある場合は、マウスをポイントするとその施設の画像がご覧いただけます。


担当取扱い店舗情報

取扱い店舗画像
新潟土地建物販売センター 株式会社
TEL: 0258-89-8245
所在地: 新潟県長岡市台町1-7-331階
交通: 長岡駅
営業時間: 9:00~18:00/定休日:なし
免許番号: 新潟県知事(3)第5151号 この会社の情報を詳しく見る
所属団体名: 公社 新潟県宅地建物取引協会 新潟支部
取引態様: 専任
ホームページ: https://niigata-tochitate.jp/