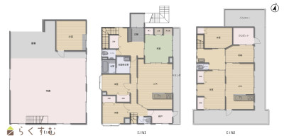
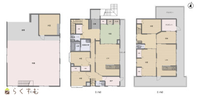
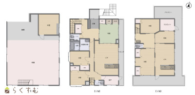
| 2階・3階にLDKを備えた二世帯住宅にぴったりな3階建て住宅。1階は駐車4台分のガレージや倉庫があり、商業施設・学校徒歩圏内、国道8号線も近く利便性抜群です。お気軽にお問い合わせください♪ | |||
| 物件コード | 00239-200612 | ||
|---|---|---|---|
| 物件名 | 長岡市関原町 売家 | ||
| 交通 | 駅:上越新幹線 長岡駅から徒歩92分、バス:関原1丁目から徒歩2分 | ||
| 物件所在地 | 新潟県長岡市関原町1丁目4578 | ||
| 物件種別 | 中古一戸建て | ||
| 構造 | 鉄骨 | 階建 | 地上3階建 |
| 建ぺい率/容積率 | 70%/200% | ||
| 建物面積 | 1階 124.73㎡/ 2階 118.11㎡/ 3階 81.54㎡/ 計 324.38㎡ /98.12坪 | ||
| 土地面積 | 390.73㎡ /118.19坪 | ||
| 築年月 | 1998年10月(築27年) | ||
| 入居時期 | 相談 | ||
| 用途地域 | 第1種住居地域 | 地目 | 宅地 |
| 都市計画 | 市街化区域 | 学校区 | 関原小学校(600m)・関原中学校(700m) |
| 形状 | 間口 18.6m × 奥行 18.9m | 道路 | 北側6.0m公道、西側6.0m公道 |
| 私道 | - | ||
| 所在階/階数 | - | 号室 | - |
|---|---|---|---|
| 販売価格 | 18,800,000円 | 方位 | 東 |
| 間取り | 6LDK | ||
| 専有面積 | - | バルコニー面積 | - |
| その他面積 | - | 駐車場 | - |
| 管理費 | - | 修繕積立金 | - |
| 現況 | 空家 | ||
| 仲介手数料 | 686,400円 | ||
| 利用制限 | - | ||
| 設備 | 角地、高台に立地、日当り良好、閑静な住宅街、スーパー近く、駐車3台以上可能、システムキッチン、カウンターキッチン、3口コンロ、追いだき機能付き、バス1坪以上、温水洗浄便座、トイレ2か所以上、シャワー付き洗面台、エアコンあり、床暖房、LPG、上水道、下水道、ウォークインクローゼット、シューズBOX、内装リフォーム済み、外装リフォーム済み、2世帯向き、事業向け | ||
| 取引態様 | 専任 | ||
| 備考 | 【教育機関】 関原小学校 約600m 徒歩約8分 関原中学校 約700m 徒歩約9分 【交通機関】 上越新幹線 長岡駅 車約19分 越後交通 関原1丁目 徒歩約2分 【お引渡し条件】 ※売主契約不適合責任免責 【備考】 ※間口と奥行は測量図に基づく寸法の為、実際の寸法と異なる可能性があります ※用途地域:第一種住居地域/第一種中高層住居専用地域 ※鉄骨吹付断熱材は石綿含有調査実施済(含有無) ※契約後、売主負担で残置処分実施 ◇リフォーム内容◇ ■外壁・屋根塗装:2022年8月 ■2F南側トイレ:時期不詳 ―物件情報― ・高台3階建てで長岡花火も望めます ・開放感のある角地で陽当たりも風通しも良好 ・広々としたお庭でガーデニングや家庭菜園を楽しめます ・閑静な住宅地の落ち着いた環境です |
||
| 情報登録日 | 2025/12/12 | 次回更新予定日 | 2026/03/07 |
| 取引条件有効期限 | 2026/12/31 | ||
|
|
|
|
| TEL: | 0258-89-8245 |
|---|---|
| 所在地: | 新潟県長岡市台町1-7-331階 |
| 交通: | 長岡駅 |
| 営業時間: | 9:00~18:00/定休日:なし |
| 免許番号: | 新潟県知事(3)第5151号 |
| 所属団体名: | 公社 新潟県宅地建物取引協会 新潟支部 |
| 取引態様: | 専任 |