物件掲載企業数:299|賃貸物件:3,623件|売買物件:3,326件|今週の登録物件:206
閲覧中のブラウザ(インターネットエクスプローラー)は非推奨ブラウザです。
物件が正しく表示されなかったり、正しく検索されない場合があります。最新のブラウザ(Google Chrome・Edgeなど)にてご利用お願いいたします。
  

新潟県上越市春日山町3丁目地内 新築一戸建て 4LDK 26,800,000円の物件情報

物件名/所在地 詳細 価格
Lega春日山MODEL HOUSU
新潟県上越市春日山町3丁目地内
  • 土地面積
    :185.29㎡ /56.05坪
  • 建物面積
    :118.5㎡ /35.84坪
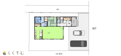
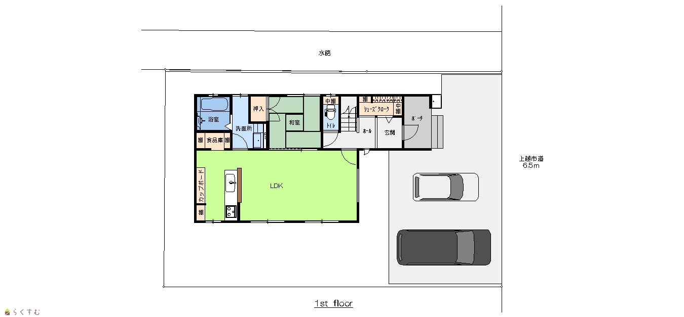
  • 間取り
    :4LDK
  • 築年月
    :2025年10月
26,800,000
  • Lega春日山MODEL HOUSU
    日成商事株式会社
  • この物件を問い合わせる/無料
  • TEL: 025-524-6441

物件画像

外観 間取り
物件画像
※画像クリックで拡大表示
外観
物件画像
※画像クリックで拡大表示
間取り
詳細画像


物件概要

物件コード 00238-200036
物件名 Lega春日山MODEL HOUSU
交通 駅:妙高はねうまライン 春日山駅から徒歩11分、バス:春日山駅入口から徒歩4分
物件所在地 新潟県上越市春日山町3丁目地内
物件種別 新築一戸建て
構造 木造 階建 地上2階建
建ぺい率/容積率 60%/200%
建物面積 1階 62.11㎡/ 2階 56.39㎡/ 計 118.5㎡ /35.84坪
土地面積 185.29㎡ /56.05坪
築年月 2025年10月完成予定
入居(引き渡し)時期 随時入居(引き渡し)可
用途地域 準工業地域 地目 宅地
都市計画 市街化区域 学校区 高志小学校(441m)・春日中学校(850m)
形状 間口 10m × 奥行 8m 道路 東側6.5M上越市道
私道 - その他の制限 -
  • Lega春日山MODEL HOUSU
    日成商事株式会社
  • この物件を問い合わせる/無料
  • TEL: 025-524-6441

物件詳細情報

所在階/階数 - 号室 -
販売価格 26,800,000円 方位
間取り 4LDK
専有面積 - バルコニー面積 -
その他面積 - 駐車場 -
管理費 - 修繕積立金 -
現況 空家
仲介手数料 なし
利用制限 -
設備 整形地、前面道路6m以上、日当り良好、閑静な住宅街、LDK15畳以上、駐車場3台以上、TVインターホン、システムキッチン、IHクッキングヒーター、食器洗浄乾燥機、追いだき機能付き、バス1坪以上、シャワー付き洗面台、エアコン、都市ガス、上水道、下水道、ウォークインクローゼット、シューズインクローゼット、即引き渡し可能
取引態様 売主
備考 -
取り扱い会社

日成商事株式会社

新潟県上越市木田1-8-11

情報登録日 2025/09/29 次回更新予定日 2025/11/08
取引条件有効期限 2026/01/06
  • Lega春日山MODEL HOUSU
    日成商事株式会社
  • この物件を問い合わせる/無料
  • TEL: 025-524-6441

この物件の地図・周辺情報・行政情報

この物件の周辺情報・行政情報を詳しく見る
【周辺情報】
物件の近くにあるコンビニや銀行・学校など、アイコン付のマップで詳しく表示できます!
【行政情報】
水道料や下水道料・ガス料金など、暮らしに関係のある情報を表示しています。

担当取扱い店舗情報

取扱い店舗画像
日成商事株式会社
TEL: 025-524-6441
所在地: 新潟県上越市木田1-8-11
交通: 妙高はねうまライン春日山駅徒歩10分
営業時間: 平日9:00~18:30 土9:00~18:00/定休日:日曜、祝日
免許番号: 新潟県知事(15)第861号 この会社の情報を詳しく見る
所属団体名: 公社 新潟県宅地建物取引協会 上越支部
取引態様: 売主
ホームページ: http://www.nissey.jp/